The UK's Largest Customer Review Website for the Property Industry
The UK's Largest Customer Review Website for the Property Industry
Back to Property Listings
Spencer Road, Southsea
** STUNNING NEW BUILD DEVELOPMENT IN REQUESTED SEAFRONT POSITION WITH PARKING **
We are absolutely delighted to offer Rose Garden Walk, courtesy of Olive Homes. A new development of 6 Luxury Homes in one of Southseas most desired locations, this exceptional opportunity nestled off Eastern Parade offers a HIGH END SPECIFICATION within a stones throw of Southsea seafront.
With prices ranging from £775,000 - £950,000, each home offers subtle differences whist maintaining meticulous attention to detail, befitting the prestigious location. Offering 3/4 bedrooms, 2/3 bathrooms, open plan kitchens, bi-fold doors to rear gardens and quality fitted appliances, this is a joy to behold.
With the homes being new build, you benefit from highly efficient heating system, glazing and lighting throughout. The properties also boast OFF STREET PARKING, such a huge bonus in central Southsea. These really are a quite wonderful opportunity to own a substantial, luxury home in one of the areas prime post codes.
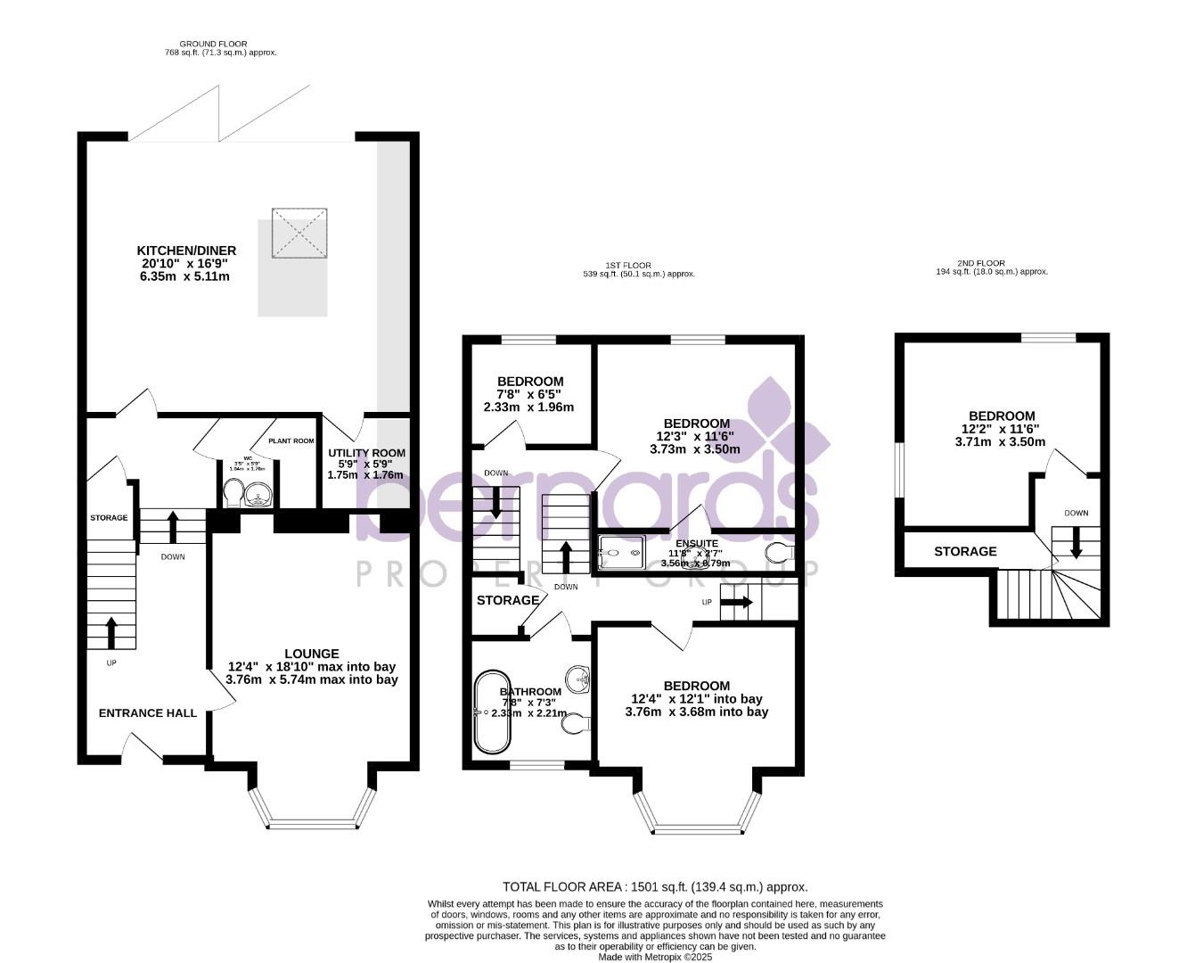
Ground Floor -
Lounge - 5.74m'' x 3.76m'' (18'10'' x 12'4'') -
Wc / Plant Room -
Kitchen / Diner - 6.35m'' x 5.11m'' (20'10'' x 16'9'') -
Utility Room - 1.75m'' x 1.75m'' (5'9'' x 5'9'') -
First Floor -
Bedroom 1 - 3.73m'' x 3.51m'' (12'3'' x 11'6'') -
En-Suite Shower Room -
Bedroom 2 - 3.76m'' x 3.68m'' (12'4'' x 12'1'') -
Bedroom 3 - 2.34m'' x 1.96m'' (7'8'' x 6'5'') -
Bathroom - 2.34m'' x 2.21m'' (7'8'' x 7'3'') -
Second Floor -
Bedroom 4 - 3.71m'' x 3.51m'' (12'2'' x 11'6'') -
Anti-Money Laundering (Aml) - Bernards Estate agents have a legal obligation to complete anti-money laundering checks. The AML check should be completed in branch. Please call the office to book an AML check if you would like to make an offer on this property. Please note the AML check includes taking a copy of the two forms of identification for each purchaser. A proof of address and proof of name document is required. Please note we cannot put forward an offer without the AML check being completed
Council Tax Band F - BAND F
Offer Check Procedure - - If you are considering making an offer for this or any other property we are marketing, please make early contact with your local office to enable us to verify your buying position. Our Sellers expect us to report on a Buyer's proceedability whenever we submit an offer. Thank you.
Property Tenure - Freehold
Removal Quotes - As part of our drive to assist clients with all aspects of the moving process, we have sourced a reputable removal company. Please ask a member of our sales team for further details and a quotation.
Solicitor - Choosing the right conveyancing solicitor is extremely important to ensure that you obtain an effective yet cost-efficient solution. The lure of supposedly cheaper on-line "conveyancing warehouse" style services can be very difficult to ignore but this is a route fraught with problems that we strongly urge you to avoid. A local, established and experienced conveyancer will safeguard your interests and get the job done in a timely manner. Bernards can recommend several local firms of solicitors who have the necessary local knowledge and will provide a personable service. Please ask a member of our sales team for further details.
Bernards Mortgage & Protection - We have a team of advisors covering all our offices, offering a comprehensive range of mortgages from across the market and various protection products from a panel of lending insurers. Our fee is competitively priced, and we can help advise and arrange mortgages and protection for anyone, regardless of who they are buying and selling through.
If you're looking for advice on borrowing power, what interest rates you are eligible for, submitting an agreement in principle, placing the full mortgage application, and ways to protect your health, home, and income, look no further!

This property is marketed by

Bernards Estate Agents - Southsea - Portsmouth, Southsea, PO5
4.8/5 Rating
(1190) reviews
Agent Statistics (Based on 1190 Reviews) :