The UK's Largest Customer Review Website for the Property Industry
The UK's Largest Customer Review Website for the Property Industry
Back to Property Listings
Pavilion Way, Edgware
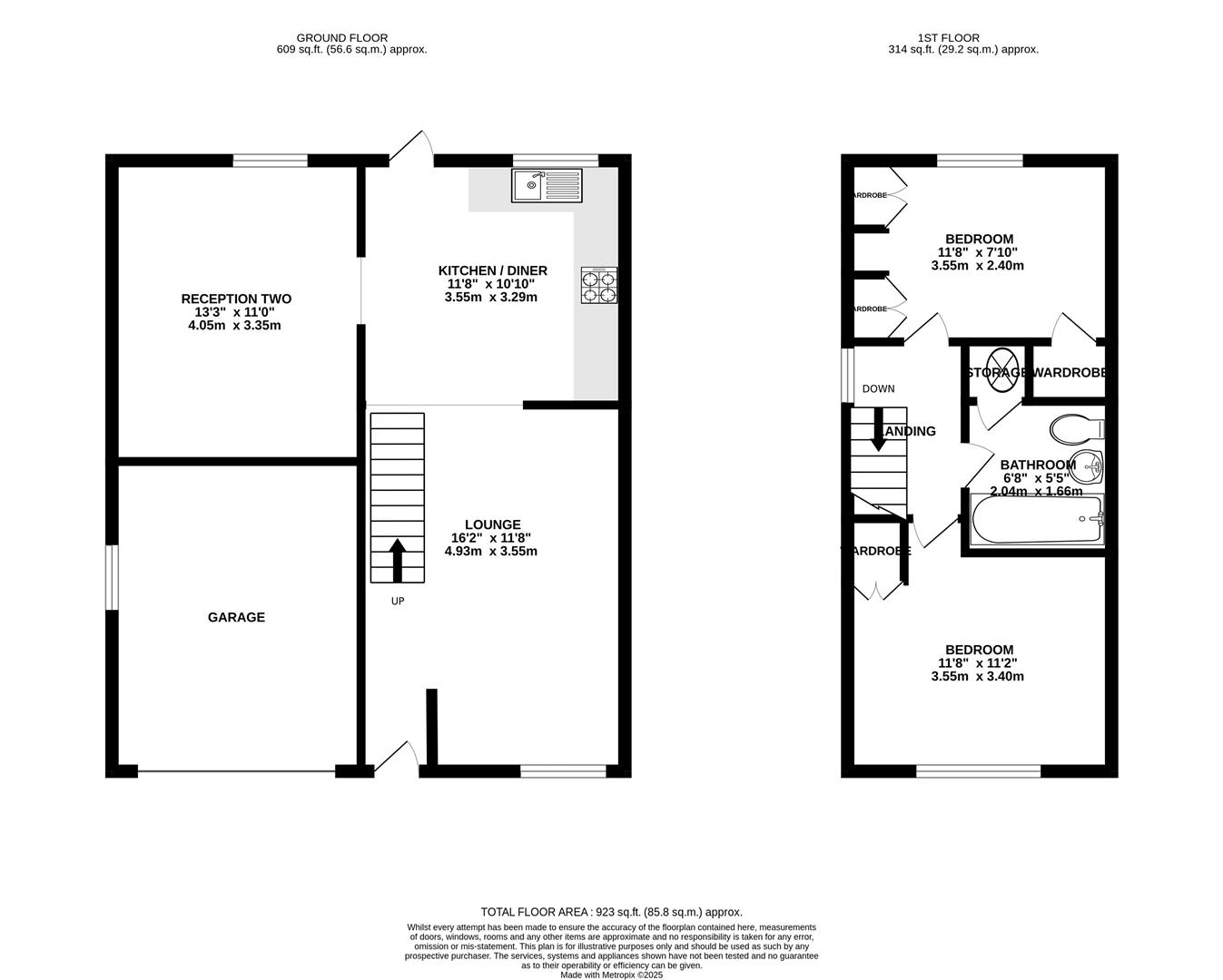
An extended Two Double Bedroom, Two Reception family home with garage via own drive and potential to extend further S.T.P.P.
Accomodation comprises Two Double Bedrooms, two reception rooms and a modern kitchen diner.
Features include garage via own drive, extra wide garden plot and potential to extend S.T.P.P.
Call vendor's sole agents Benjamin Stevens now to arrange a viewing!
Lounge - 4.93m x 3.51m (16'2 x 11'6) -
Kitchen / Diner - 3.51m x 3.30m (11'6 x 10'10) -
Reception Two - 4.04m x 3.35m (13'3 x 11') -
Bedroom One - 3.56m x 3.40m (max) (11'8 x 11'2 (max)) -
Bedroom Two - 3.56m c 2.39m (11'8 c 7'10) -
Family Bathroom -
Garage -

Agent Statistics (Based on 817 Reviews) :