The UK's Largest Customer Review Website for the Property Industry
The UK's Largest Customer Review Website for the Property Industry
Back to Property Listings
Methuen Road, Southsea
**THREE BEDROOM TERRACED HOUSE**CHAIN FREE**
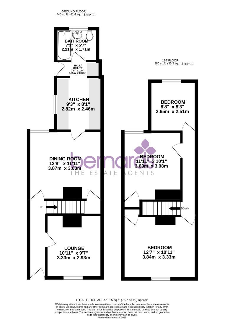
We are delighted to bring to market this three bedroom terraced house located in the sought after area of Eastney. The property has undergone some recent renovation works and is an ideal for first time buyers.
Upon entry you are greeted with a living room at the front of the house and a dining room which leads onto a fully fitted kitchen. The three piece bathroom is at the back of the house and has a shower over bath. Both the bathroom and kitchen were renovated in the last five years. A south facing garden completes the ground floor.
Upstairs you have two good size double bedrooms with built in storage and a single bedroom which completes the accommodation.
The property is close to local shops and amenities and has plenty to offer any new buyer. An opportunity not to be missed.
Lounge - 3.33 x 2.93 (10'11" x 9'7") -
Dining Room - 3.87 x 3.63 (12'8" x 11'10") -
Kitchen - 2.82 x 2.46 (9'3" x 8'0") -
Bathroom - 2.21 x 1.71 (7'3" x 5'7") -
Bedroom One - 3.84 x 3.33 (12'7" x 10'11") -
Bedroom Two - 3.63 x 3.08 (11'10" x 10'1") -
Bedroom Three - 2.65 x 2.51 (8'8" x 8'2") -
Anti-Money Laundering (Aml) - Bernards Estate agents have a legal obligation to complete anti-money laundering checks. The AML check should be completed in branch. Please call the office to book an AML check if you would like to make an offer on this property. Please note the AML check includes taking a copy of the two forms of identification for each purchaser. A proof of address and proof of name document is required. Please note we cannot put forward an offer without the AML check being completed
Bernards Mortgage & Protection - We have a team of advisors covering all our offices, offering a comprehensive range of mortgages from across the market and various protection products from a panel of lending insurers. Our fee is competitively priced, and we can help advise and arrange mortgages and protection for anyone, regardless of who they are buying and selling through.
If you're looking for advice on borrowing power, what interest rates you are eligible for, submitting an agreement in principle, placing the full mortgage application, and ways to protect your health, home, and income, look no further!
Offer Check Procedure - - If you are considering making an offer for this or any other property we are marketing, please make early contact with your local office to enable us to verify your buying position. Our Sellers expect us to report on a Buyer's proceedability whenever we submit an offer. Thank you.
Removal Quotes - As part of our drive to assist clients with all aspects of the moving process, we have sourced a reputable removal company. Please ask a member of our sales team for further details and a quotation.
Solicitor - Choosing the right conveyancing solicitor is extremely important to ensure that you obtain an effective yet cost-efficient solution. The lure of supposedly cheaper on-line "conveyancing warehouse" style services can be very difficult to ignore but this is a route fraught with problems that we strongly urge you to avoid. A local, established and experienced conveyancer will safeguard your interests and get the job done in a timely manner. Bernards can recommend several local firms of solicitors who have the necessary local knowledge and will provide a personable service. Please ask a member of our sales team for further details.

This property is marketed by

Bernards Estate Agents - Southsea - Portsmouth, Southsea, PO5
4.8/5 Rating
(1189) reviews
Agent Statistics (Based on 1189 Reviews) :