The UK's Largest Customer Review Website for the Property Industry
The UK's Largest Customer Review Website for the Property Industry
Back to Property Listings
High Street, Thames Ditton
Rawlinson and Webber are delighted to present this charming, locally listed one-bedroom cottage, brimming with potential and ideally situated on Thames Ditton High Street, within the village's sought-after Conservation Area.
Perfectly positioned close to local shops, highly rated schools, popular pubs and restaurants, Thames Ditton Station, and the historic Hampton Court Palace, this property offers both convenience and character in equal measure.
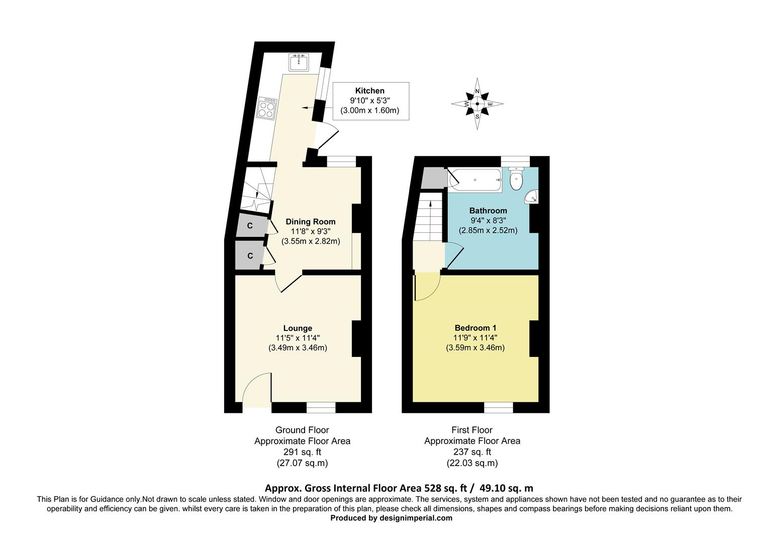
The ground floor features a welcoming front-facing lounge, a separate dining room with staircase access, and a fitted kitchen to the rear. Upstairs comprises a spacious double bedroom and a generously sized bathroom.
Externally, the property benefits from a private rear garden with a brick-built storage cupboard. While now requiring some modernisation, the cottage presents an exciting opportunity for buyers to add their own style and create a truly bespoke home in a highly sought-after location.
Offered with no onward chain. Early viewings are highly recommended.

This property is marketed by

Rawlinson & Webber - East Molesey, East Molesey, KT8
4.9/5 Rating
(258) reviews
Agent Statistics (Based on 258 Reviews) :