The UK's Largest Customer Review Website for the Property Industry
The UK's Largest Customer Review Website for the Property Industry
Back to Property Listings
Bertie Road, Southsea
** STUNNING EXTENDED HOME IN MILTON CUL-DE-SAC IDEAL FOR FIRST TIME BUYER **
We are delighted to bring to market this exceptional home in Bertie Road. Transformed in recent times, the current owners have created a special property that will certainly grab your attention the moment you walk through the front door.
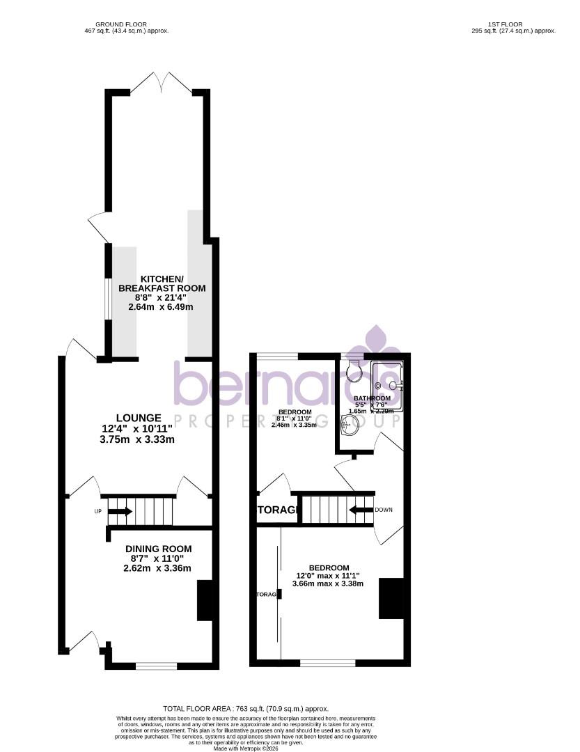
The ground floor comprises two reception areas, currently used as a dining area and lounge area respectively. The lounge spills into a fabulous extended kitchen breakfast room with double doors into a low maintenance westerly aspect rear garden, ideal for those sunny evenings and weekends.
On the first floor you will find a generous double bedroom with built in wardrobe space, a 2nd bedroom currently set up as a 'work from home' space and an eye catching shower room which completes the set.
The location is requested with it being a sul-de-sac road and offering good links to central areas and not too far from the beach. This really is a great opportunity for a FIRST TIME BUYER to enjoy a wonderful home for years to come.
Ground Floor -
Dining Room - 3.35m'' x 2.62m'' (11'0'' x 8'7'') -
Lounge - 3.76m'' x 3.33m'' (12'4'' x 10'11'') -
Kitchen / Breakfast Room - 6.50m'' x 2.64m'' (21'4'' x 8'8'') -
First Floor -
Bedroom 1 - 3.66m'' x 3.38m'' (12'0'' x 11'1'') -
Bedroom 2 - 3.35m'' x 2.46m'' (11'0'' x 8'1'') -
Bathroom - 2.29m'' x 1.65m'' (7'6'' x 5'5'' ) -
Anti-Money Laundering (Aml) - Bernards Estate agents have a legal obligation to complete anti-money laundering checks. The AML check should be completed in branch. Please call the office to book an AML check if you would like to make an offer on this property. Please note the AML check includes taking a copy of the two forms of identification for each purchaser. A proof of address and proof of name document is required. Please note we cannot put forward an offer without the AML check being completed
Council Tax Band B - BAND B
Offer Check Procedure - - If you are considering making an offer for this or any other property we are marketing, please make early contact with your local office to enable us to verify your buying position. Our Sellers expect us to report on a Buyer's proceedability whenever we submit an offer. Thank you.
Property Tenure - Freehold
Removal Quotes - As part of our drive to assist clients with all aspects of the moving process, we have sourced a reputable removal company. Please ask a member of our sales team for further details and a quotation.
Solicitor - Choosing the right conveyancing solicitor is extremely important to ensure that you obtain an effective yet cost-efficient solution. The lure of supposedly cheaper on-line "conveyancing warehouse" style services can be very difficult to ignore but this is a route fraught with problems that we strongly urge you to avoid. A local, established and experienced conveyancer will safeguard your interests and get the job done in a timely manner. Bernards can recommend several local firms of solicitors who have the necessary local knowledge and will provide a personable service. Please ask a member of our sales team for further details.
Bernards Mortgage & Protection - We have a team of advisors covering all our offices, offering a comprehensive range of mortgages from across the market and various protection products from a panel of lending insurers. Our fee is competitively priced, and we can help advise and arrange mortgages and protection for anyone, regardless of who they are buying and selling through.
If you're looking for advice on borrowing power, what interest rates you are eligible for, submitting an agreement in principle, placing the full mortgage application, and ways to protect your health, home, and income, look no further!

This property is marketed by

Bernards Estate Agents - Southsea - Portsmouth, Southsea, PO5
4.8/5 Rating
(1190) reviews
Agent Statistics (Based on 1190 Reviews) :