The UK's Largest Customer Review Website for the Property Industry
The UK's Largest Customer Review Website for the Property Industry
Back to Property Listings
Belgravia Road, Portsmouth
Bernard's are delighted to introduce to the rental market, this very well presented, three bedroom, mid-terrace property situated on Belgravia Road, in close proximity to many local amenities.
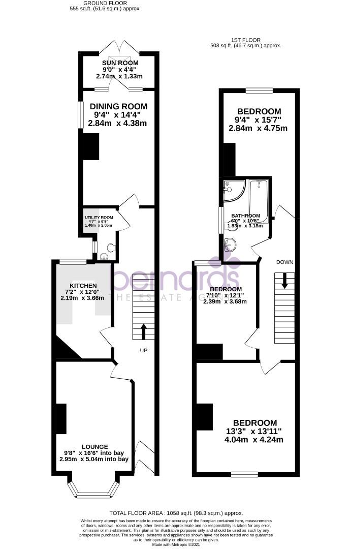
On entry to the property, you are greeted by a large, bright and airy lounge, which is flooded with natural light from the bay window.
The kitchen is finished to a good standard and has ample work surface space. The ground floor also includes a utility/w.c and is completed by a spacious dining room, and sun room which includes double doors into the garden.
The rear garden is an excellent space and is low maintenance
Moving to the first floor, you have three bedrooms and a modern four piece master bathroom
This wonderful property would make an excellent family home, with its excellent size and fantastic level of finish, we strongly recommend booking an early viewing to avoid disappointment
Lounge - 2.95m x 5.03m into bay (9'8" x 16'6" into bay ) -
Kitchen - 2.18m x 3.66m (7'2" x 12') -
Utility/Wc - 1.40m x 2.06m (4'7" x 6'9") -
Dining Room - 2.84m x 4.37m (9'4" x 14'4") -
Sun Room - 2.74m x 1.32m (9' x 4'4") -
Bedroom One - 4.04m x 4.24m (13'3" x 13'11") -
Bedroom Two - 4.75m x 2.84m (15'7" x 9'4") -
Bedroom Three - 2.39m x 3.68m (7'10" x 12'1") -
Bathroom - 1.83m x 3.18m (6' x 10'5") -
Council Tax Band C -
Removal Quotes - As part of our drive to assist clients with all aspects of the moving process, we have sourced a reputable removal company. Please ask a member of our sales team for further details and a quotation.
Right To Rent - Each applicant will be subject to the right to rent checks. This is a government requirement since February 2016. We are required to check and take a copy of the original version of acceptable documentation in order to adhere to the Right to rent checks. This will be carried out at referencing stage. Please speak to a member of staff for acceptable Identification.
Tenant Fees Act 2019 - As well as paying the rent, you may also be required to make the following permitted payments.
For properties in England, the Tenant Fees Act 2019 means that in addition to rent, lettings agents can only charge tenants (or anyone acting on the tenant's behalf) the following permitted payments:
· Holding deposits (a maximum of 1 week's rent);
· Deposits (a maximum deposit of 5 weeks' rent for annual rent below £50,000, or 6 weeks' rent for annual rental of £50,000 and above);
· Payments to change a tenancy agreement eg. change of sharer (capped at £50 or, if higher, any reasonable costs);
· Payments associated with early termination of a tenancy (capped at the landlord's loss or the agent's reasonably incurred costs);
· Where required, utilities (electricity, gas or other fuel, water, sewerage), communication services (telephone, internet, cable/satellite television), TV licence;
· Council tax (payable to the billing authority);
· Interest payments for the late payment of rent (up to 3% above Bank of England's annual percentage rate);
· Reasonable costs for replacement of lost keys or other security devices;
· Contractual damages in the event of the tenant's default of a tenancy agreement; and
· Any other permitted payments under the Tenant Fees Act 2019 and regulations applicable at the relevant time.

This property is marketed by

Bernards Estate Agents - Portsmouth, Portsmouth, PO2
4.9/5 Rating
(1190) reviews
Agent Statistics (Based on 1190 Reviews) :