The UK's Largest Customer Review Website for the Property Industry
The UK's Largest Customer Review Website for the Property Industry
Back to Property Listings
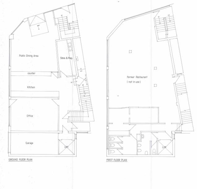
Belgrave Gate, City Centre
An exceptional opportunity has become available to lease a newly refurbished commercial property in a highly desirable location, ideally situated between Belgrave Road and Leicester City Centre. This property offers a total of circa 6600 sqft of usable space, evenly split across the ground floor and basement.
This property has been completely stripped back to its skeleton and undergone a comprehensive refurbishment, making it an ideal blank canvas for new tenants to complete their own cosmetic fit-out. The space has been entirely rewired, with modern installations including CCTV, a fire alarm panel, an alarm system, and dedicated wiring for speakers. The property has also been newly plumbed and freshly plaster boarded throughout, providing a pristine foundation for further customisation. In addition, new air conditioning units have been installed for optimal comfort, and all windows have been replaced with energy-efficient double glazing, complete with electronic shutters for added security and convenience. This property is ready to be transformed into a functional and stylish space tailored to your needs, with additional storage and office space
Additionally, the property comes with a dedicated area for the disposal of commercial waste, ensuring practicality for business operations. Its location in a vibrant area with high footfall makes it an ideal choice for hospitality, retail, office, or service-based businesses seeking visibility and accessibility. Please note, it is the tenant`s responsibility to apply for and obtain any necessary operating licenses through the Leicester City Council. This includes any required permits or approvals for the intended use of the property.
Don`t miss the chance to secure this outstanding commercial space. Contact us today to arrange a viewing and take the next step in establishing or expanding your business.
Notice
All photographs are provided for guidance only.
Council Tax
Leicester City Council, Business Rates
Utilities
Electric: Unknown
Gas: Unknown
Water: Unknown
Sewerage: Unknown
Broadband: Unknown
Telephone: Unknown
Other Items
Heating: Not Specified
Garden/Outside Space: No
Parking: No
Garage: No

Agent Statistics (Based on 3 Reviews) :