The UK's Largest Customer Review Website for the Property Industry
The UK's Largest Customer Review Website for the Property Industry
Back to Property Listings
Baileys Road, Southsea
** 4 BEDROOM INVESTMENT PROPERTY OFFERED CHAIN FREE AND IN A PRIME LOCATION **
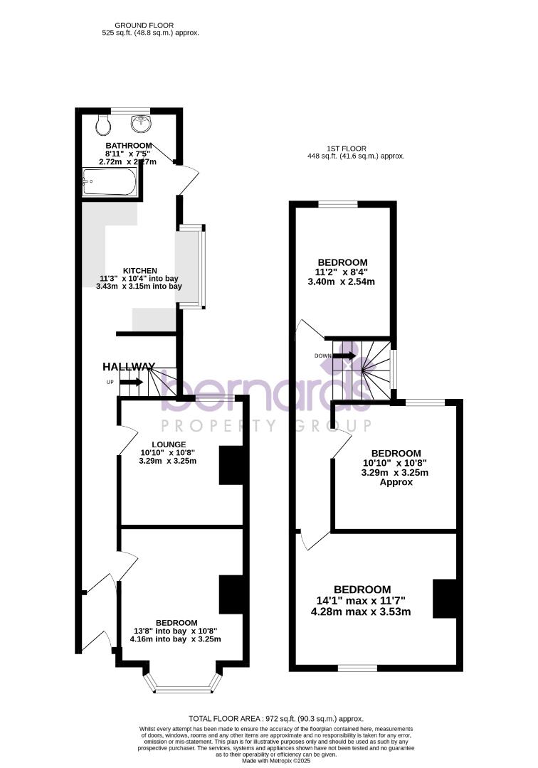
We are delighted to bring to market this deceptively large chain free house in Baileys Road. The home has been a superb rental property for many years and currently achieves £24,376 gross per annum with utility bills included, operating as a fully licenced HMO.
The ground floor holds the first bedroom at the front of the property, and follows through to a communal lounge area, modern kitchen and bathroom at the rear before the garden. Three further generous double bedrooms can be found upstairs.
The location is hugely popular with it being centrally located and offering good links to the station, university and all Portsmouth & Southsea has to offer. With it being offered chain free, this is a great opportunity that can't be turned away and we urge a viewing a the earliest opportunity.
Bedroom - 4.16 x 3.25 (13'7" x 10'7") -
Lounge - 3.29 x 3.25 (10'9" x 10'7") -
Kitchen - 3.43 x 3.15 (11'3" x 10'4") -
Bathroom - 2.72 x 2.27 (8'11" x 7'5") -
Bedroom - 4.28 x 3.53 (14'0" x 11'6") -
Bedroom - 3.29 x 3.25 (10'9" x 10'7") -
Bedroom - 3.40 x 2.54 (11'1" x 8'3") -
Anti-Money Laundering (Aml) - Bernards Estate agents have a legal obligation to complete anti-money laundering checks. The AML check should be completed in branch. Please call the office to book an AML check if you would like to make an offer on this property. Please note the AML check includes taking a copy of the two forms of identification for each purchaser. A proof of address and proof of name document is required. Please note we cannot put forward an offer without the AML check being completed
Bernards Mortgage & Protection - We have a team of advisors covering all our offices, offering a comprehensive range of mortgages from across the market and various protection products from a panel of lending insurers. Our fee is competitively priced, and we can help advise and arrange mortgages and protection for anyone, regardless of who they are buying and selling through.
If you're looking for advice on borrowing power, what interest rates you are eligible for, submitting an agreement in principle, placing the full mortgage application, and ways to protect your health, home, and income, look no further!
Council Tax Band B - Portsmouth City Council: BAND B
Offer Check Procedure - - If you are considering making an offer for this or any other property we are marketing, please make early contact with your local office to enable us to verify your buying position. Our Sellers expect us to report on a Buyer's proceedability whenever we submit an offer. Thank you.
Removal Quotes - As part of our drive to assist clients with all aspects of the moving process, we have sourced a reputable removal company. Please ask a member of our sales team for further details and a quotation.
Solicitor - Choosing the right conveyancing solicitor is extremely important to ensure that you obtain an effective yet cost-efficient solution. The lure of supposedly cheaper on-line "conveyancing warehouse" style services can be very difficult to ignore but this is a route fraught with problems that we strongly urge you to avoid. A local, established and experienced conveyancer will safeguard your interests and get the job done in a timely manner. Bernards can recommend several local firms of solicitors who have the necessary local knowledge and will provide a personable service. Please ask a member of our sales team for further details.
Property Tenure - Freehold

This property is marketed by

Bernards Estate Agents - Southsea - Portsmouth, Southsea, PO5
4.8/5 Rating
(1189) reviews
Agent Statistics (Based on 1189 Reviews) :