The UK's Largest Customer Review Website for the Property Industry
The UK's Largest Customer Review Website for the Property Industry
Back to Property Listings
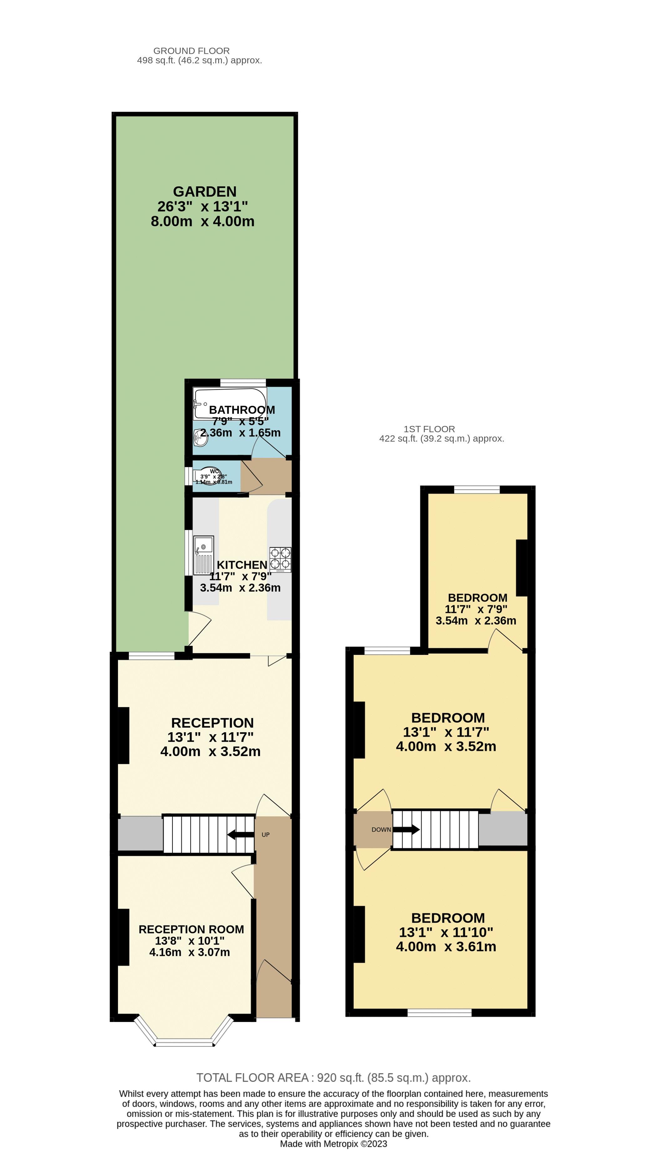
York Road, Waltham Cross, Herts, EN8
Castles market this chain free Victorian three bedroom end of terrace house. Benefits from two reception rooms, side/rear access and ample communal off street parking. Situated close to Waltham Cross train station and shopping centre.
Entrance:
Side access to rear garden; front door to hall
Hallway:
Door to reception 1 and 2, stairs to first floor
Reception 1: - 13' 5'' x 10' 4'' (4.09m x 3.15m)
into bay and into alcove
Reception 2/Diner: - 12' 2'' x 12' 9'' (3.71m x 3.88m)
Door to kitchen
Kitchen: - 12' 2'' x 8' 1'' (3.71m x 2.46m)
Door to rear garden; access to lobby
Lobby
Door to bathroom and separate toilet
Bathroom: - 7' 3'' x 5' 6'' (2.21m x 1.68m)
Separate wc: - 4' 6'' x 2' 8'' (1.37m x 0.81m)
Landing:
Access to bedrooms 1 and 2, loft hatch
Bedroom 1: - 13' 8'' x 11' 5'' (4.16m x 3.48m)
Bedroom 2: - 13' 3'' x 12' 3'' (4.04m x 3.73m)
into alcove; door to bedroom 3
Bedroom 3: - 11' 7'' x 7' 8'' (3.53m x 2.34m)
into alcove: (Access via bedroom 2)
Rear Garden:
Shed, side gate to alley

This property is marketed by

Castles Estate Agents (London) - Waltham Abbey, Waltham Abbey, EN9
5/5 Rating
(941) reviews
Agent Statistics (Based on 941 Reviews) :