The UK's Largest Customer Review Website for the Property Industry
The UK's Largest Customer Review Website for the Property Industry
Back to Property Listings
Yates Avenue, Rugby
This three-bedroom house presents an excellent opportunity for families and individuals alike. The property boasts a spacious layout, featuring two reception rooms that provide ample space for relaxation and entertaining guests. One of the standout features of this home is the large garden, which not only offers a serene outdoor space for gardening or play but also includes a convenient gate that leads directly onto the picturesque Viaduct Cycle Way. This access to the cycle path is perfect for those who enjoy outdoor activities, whether it be cycling, walking, or simply appreciating the beauty of nature.
The property also benefits from a driveway, ensuring that parking is never a concern. With the potential to personalise and make it your own, this house is a blank canvas waiting for your creative touch. In summary, this residence on Yates Avenue is a wonderful blend of comfort, convenience, and potential, making it an ideal choice for anyone looking to settle in Rugby. Don't miss the chance to explore this lovely home and envision the possibilities it holds.
Driveway -
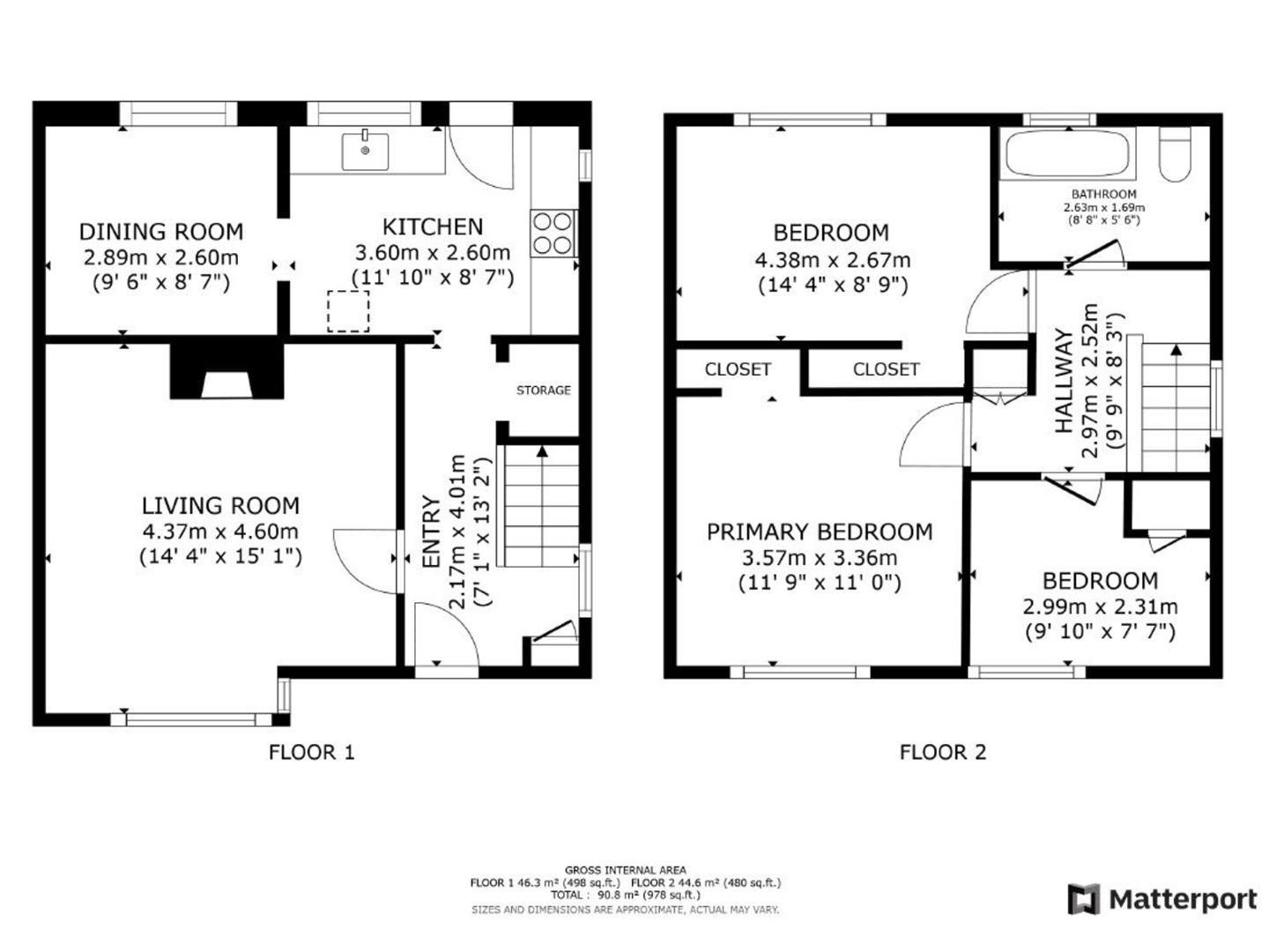
Hallway - 2.17m x 4.01m (7'1" x 13'1") -
Living Room - 4.37m x 4.60m (14'4" x 15'1") -
Kitchen - 3.60m x 2.60m (11'9" x 8'6" ) -
Dining Room - 2.89m x 2.60m (9'5" x 8'6") -
Rear Garden -
Landing - 2.97m x 2.52m (9'8" x 8'3" ) -
Main Bathroom - 2.63m x 1.69m (8'7" x 5'6" ) -
Bedroom One - 3.57m x 3.36m (11'8" x 11'0" ) -
Bedroom Two - 4.38m x 2.67m (14'4" x 8'9" ) -
Bedroom Three - 2.99m x 2.31m (9'9" x 7'6" ) -
Loft -
About Rugby - Rugby is a market town in Warwickshire, England, on the River Avon. The town has a population of 70,628 (2011 census[1]) making it the second largest town in the county. The enclosing Borough of Rugby has a population of 100,500 (2011 census). Rugby is 13 miles (21 km) east of Coventry, on the eastern edge of Warwickshire, near the borders with Northamptonshire and Leicestershire. The town is credited with being the birthplace of rugby football.
Rugby Borough Council - Rugby Borough Council,
Town Hall,
Evreux Way,
Rugby
CV21 2RR

Agent Statistics (Based on 724 Reviews) :