The UK's Largest Customer Review Website for the Property Industry
The UK's Largest Customer Review Website for the Property Industry
Back to Property Listings
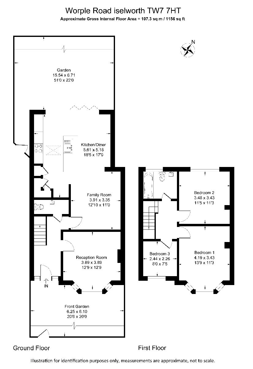
Worple Road, Old Isleworth
The Property Partnership are delighted to present this most attractive three-bedroom family house. Finished to an exemplary standard and offered to the market as a wonderful newly refurbished home with the potential to add a fourth bedroom/luxury principal suite.
This appealing house has been significantly updated in recent years, to provide wonderful open plan living and an easy to maintain landscaped garden. With light, spacious rooms throughout, the ground floor comprises a welcoming entrance hall, cloakroom/useful utility room, beautifully light full width kitchen dining room come family room with a full range of patio doors onto a raised patio area. The first floor provides two double bedrooms, a good sized single and a lovely family bathroom, while the loft space offers potential buyers to add an addition fourth bedroom/luxury principal suite, subject to planning consent. This property enjoys lovely front and rear gardens, with the latter enjoying a south westerly aspect ensuring unrestricted sunshine late into the summer evenings.
Worple Road is located in the heart of Old Isleworth, and just moments from excellent local schools and the independent shops and restaurants of South Street. The Thames path is to be found at the end of the road, providing a most pleasant amble to the riverside pubs of old Isleworth or into near by Richmond via Richmond Lock.
Offered to the market chain free, we would encourage all interested parties to join us for a tour of the property, the charms of which we have only very briefly summarised here.
Tenure: Freehold
Garden details: Front Garden, Rear Garden

This property is marketed by

Property Partnership - Richmond Office, Twickenham, TW1
5/5 Rating
(105) reviews
Agent Statistics (Based on 105 Reviews) :