The UK's Largest Customer Review Website for the Property Industry
The UK's Largest Customer Review Website for the Property Industry
Back to Property Listings
Woodlands Corner, Lilford Road, Blackburn
Nestled in the desirable area of Woodlands Corner on Lilford Road, Blackburn, this exclusive first-floor apartment presents an excellent opportunity for both first-time buyers and seasoned investors alike. With two well-proportioned bedrooms, this property offers ample space for comfortable living.
The apartment features a modern bathroom and kitchen ensuring convenience and comfort for its residents. One of the standout attributes of this property is the availability of private parking which adds to the overall appeal and practicality of the home.
This property is available with no chain and no delay, making it an attractive option for those looking to move in swiftly. The exclusive gated development enhances the living experience, providing a sense of community while maintaining a level of privacy.
Whether you are seeking a new home or a promising investment opportunity, this apartment at Woodlands Corner is sure to meet your needs. With its prime location and desirable features, it is a property not to be missed.
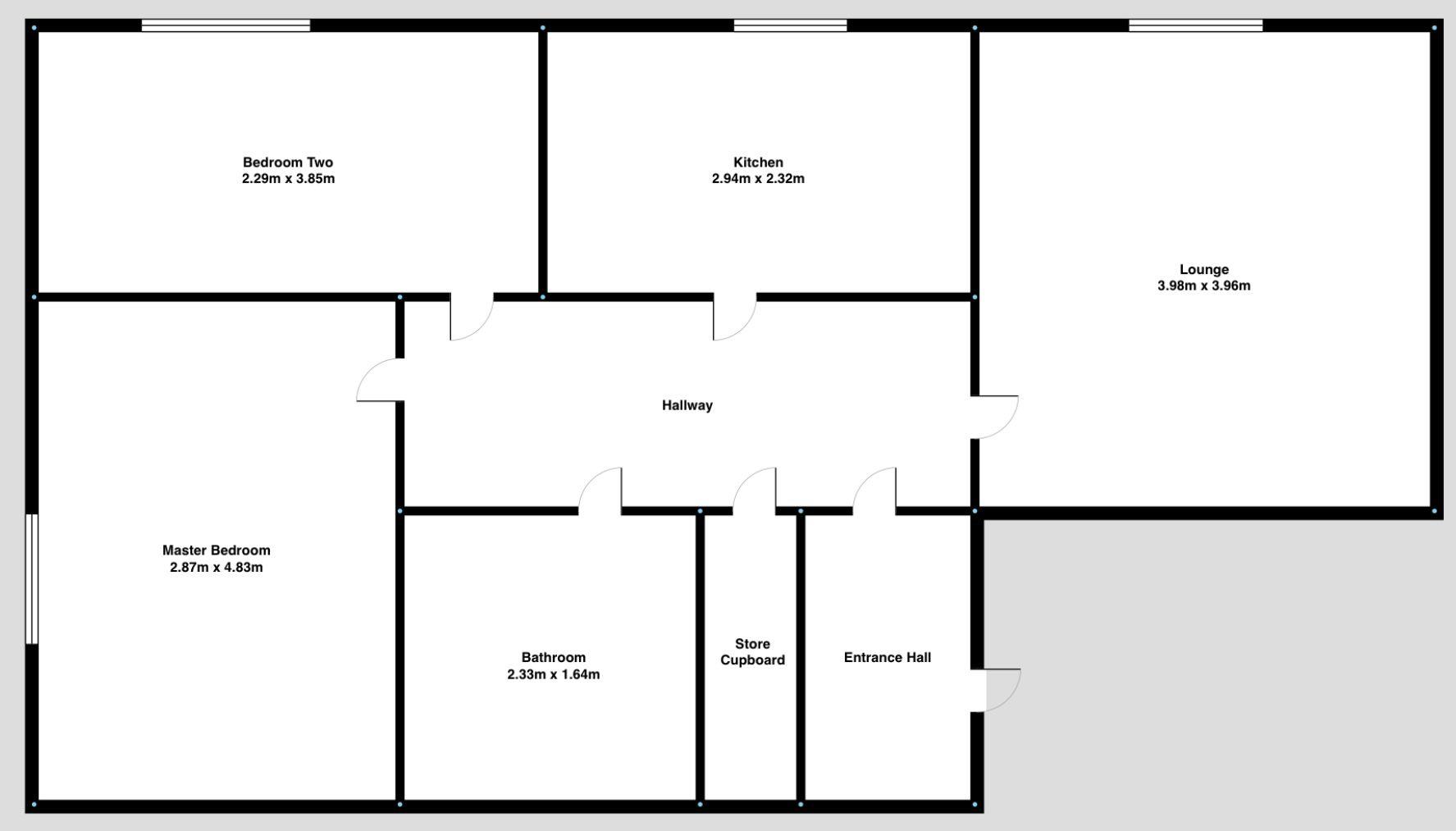
Lounge - 3.98 x 3.96 (13'0" x 12'11") - Spacious reception room comprising of laminate flooring, ceiling coving, wood glazed window with openers, ceiling light, ample plug sockets and electric storage heater.
Kitchen - 2.94 x 2.32 (9'7" x 7'7") - Fully fitted kitchen with, fitted wall and base units with contrasting work surfaces, tiled splash backs, ample plug sockets, fitted oven, hob and extractor fan, integral fridge freezer and washing machine. The kitchen receives ample light from the wood glazed windows.
Master Bedroom - 2.87 x 4.33 (9'4" x 14'2") - Spacious master bedroom comprising of laminate flooring, UPVC double glazed window with openers, ceiling light, ample plug sockets and electric storage heater.
Bedroom Two - 2.29x 3.84 (7'6"x 12'7") - A good sized second bedroom comprising of laminate flooring, wood glazed window with openers, ceiling light and electric storage heater.
Bathroom - 2.33 x 1.64 (7'7" x 5'4") - Three piece bathroom comprising of WC, wash basin, bath with shower over head, shower screen, mirror, towel radiator, extractor fan and vinyl flooring.

Agent Statistics (Based on 13 Reviews) :