The UK's Largest Customer Review Website for the Property Industry

Back to Property Listings

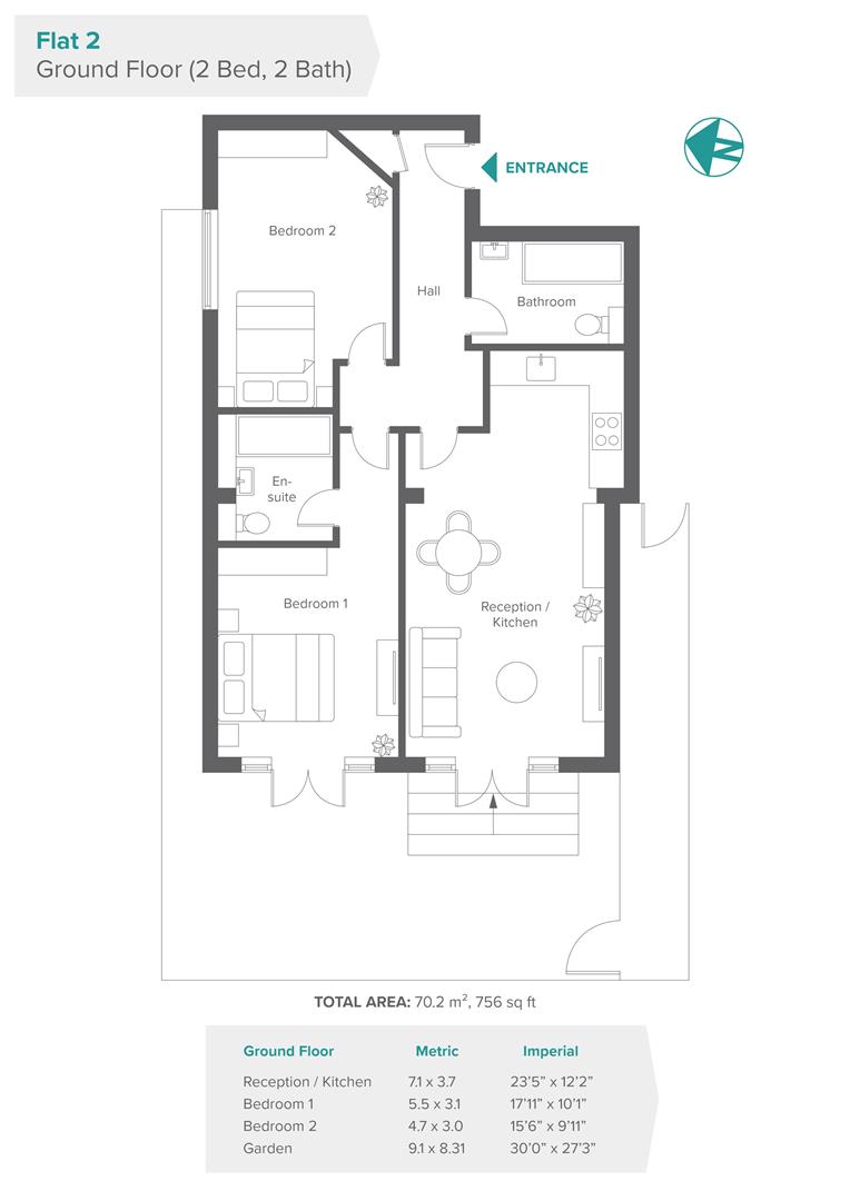
Sold STC £725,000

2 Bedroom Flat House to Rent

Woodgrange Avenue, Ealing

Key Features

  • Private garden
  • 6 year PCC Building Warranty from ABC Warranty
  • Parking permit applicable to this unit
  • Bespoke Fitted joinery
  • Two bathrooms
  • Share of freehold with 999 year lease

Full Description

NOW READY TO MOVE IN. Woodgrange Residences is a boutique new development of just 5 exclusive apartments in a beautifully restored period building, situated two minutes from Ealing Common station.

This 2 bedroom, 2 bathroom apartment has a private landscaped garden, with outside power and lighting, patio for entertaining and a carefully designed lawn and planting area.

Each apartment has been thoughtfully designed with style and original period features are complemented by Crittal style Aluminium windows, bespoke fitted joinery, and a considered interior palette that exudes understated luxury.

Every detail has been considered with a design-led approach throughout. Contemporary, super matt fitted kitchens come with integrated appliances including Bosch ovens and hobs, Integrated dishwashers, tall fridge freezers with Quartz worktops and splashbacks.

Lighting includes integrated under-mount LED lighting to kitchen cabinets and trendy pendant downlighting to the dining area.

The apartments have been designed full of technical innovations. Included are modern video intercom systems and flats are pre-wired for SKY + and Virgin.

The modern bathrooms offer neutral yet modern tones, with matt porcelain Terrazzo floors, Fired Earth slimline matt wall tiles, brushed brass shower and fittings, wall-hung vanity units, and a luxurious freestanding bath to the ensuite.

The added touches are abundant in this development including engineered wood flooring and matt black screwless sockets, switches and ironmongery. Bedrooms have super soft carpets throughout and stylish headboards.

Moments from Ealing Common and Ealing Broadway, it offers a vibrant cafe culture and a great selection of boutique shops, bars, and eateries along with tube stations that are within walking distance.

Under section 21 of the Estate Agency Act 1979, the seller declares a personal interest with this firm.

2[16]- garden.jpg