The UK's Largest Customer Review Website for the Property Industry
The UK's Largest Customer Review Website for the Property Industry
Back to Property Listings
Woodberry Close, Caversham
Masons are proud to offer to the market this extended & well presented three bedroom semi-detached family house, situated in a sought-after Caversham location, within walking distance to Caversham & Reading centres, along with Reading mainline station. The property offers versatile living accommodation with a 14ft living room into bay window, a 13ft dining room, 17ft conservatory, a 20ft kitchen breakfast room & downstairs cloakroom. Further benefits include a 14ft master bedroom, a family bathroom with, off road parking & garage and a well tended garden. Viewing recommended.
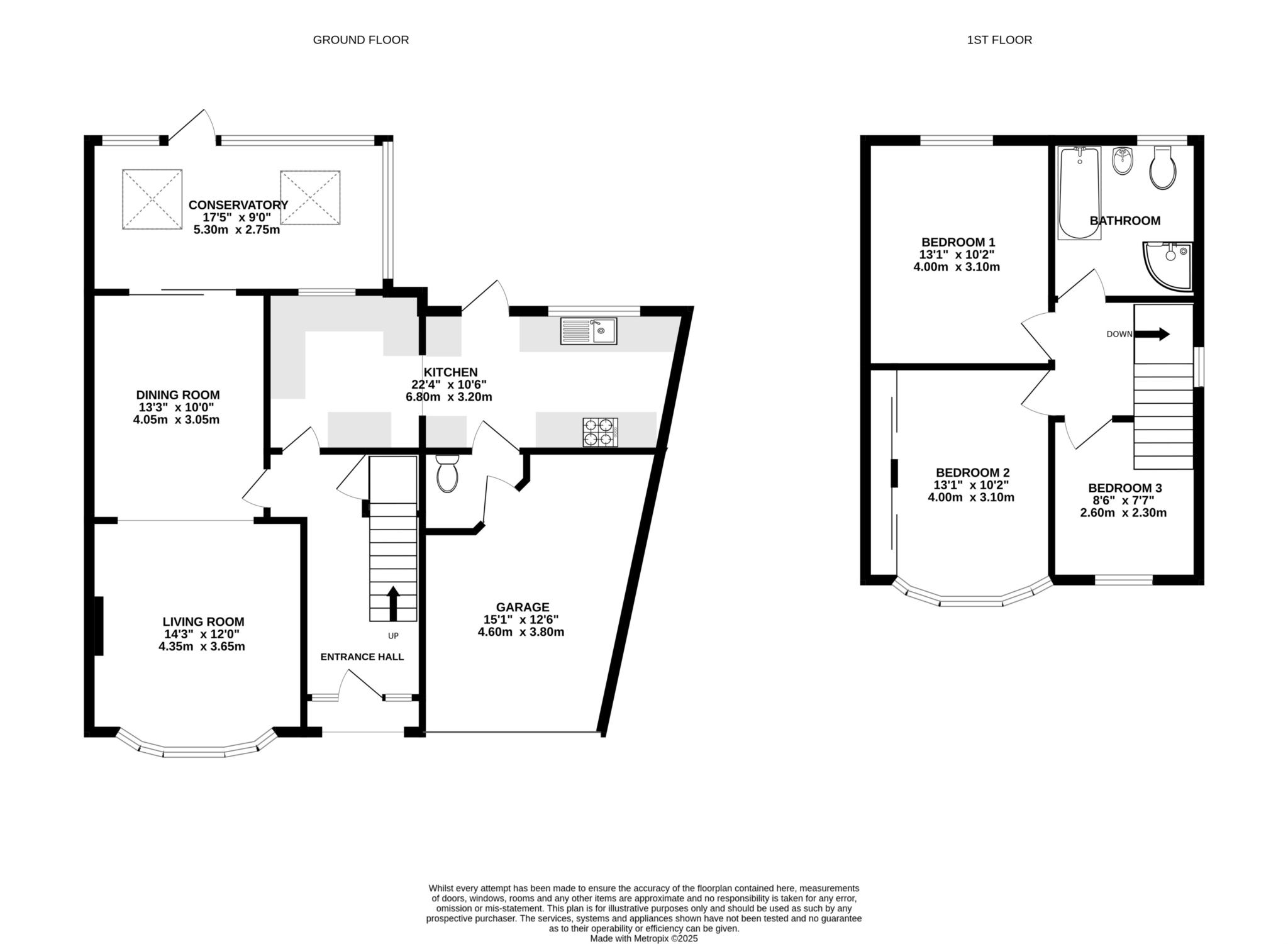
Entrance hall has the stairs to the first floor and doors to:
Living room 14`3" x 12`0" into bay window, opening to:
Dining room: 13`3" x 10`0" sliding doors opening to:
Conservatory: 17`5" x 9`0" door opening to the garden.
Kitchen breakfast room: 22`4" x 10`6" double glazed rear aspect, a range of eye and base level units with roll edge tops and tiled surround, sink & drainer, integrated oven, hob & extractor and space and plumbing for additional appliances.
Cloakroom: a low level wc.
Garage: 15`1 x 12`6" light & power with up & over door.
First floor landing has doors to:
Bedroom 1: 14`9" x 10`2" into double glazed bay window, built-in wardrobes.
Bedroom 2: 13`1" x 10`2" double glazed rear aspect.
Bedroom 3: 8`62 x 7`7" double glazed front aspect.
Bathroom: double glazed rear aspect, a panel enclosed bath, a shower cubicle, low level wc and wash basin.
Outside: To the front there is off road parking for two cars, garage and access to the front door. To the rear is a lovely feature of the property with its mature and well tended garden which is mainly laid to lawn with a great variety of plants, shrubs, flowers & trees, along with a large patio area to enjoy the sun. A separate area at the back of the garden contains the greenhouse and the shed.
Notice
Whilst every care has been taken in the preparation of these particulars, and they are believed to be correct, they are not warranted and intending purchasers/lessees should satisfy themselves as to the correctness of the information given.Please note we have not tested any apparatus, fixtures, fittings, or services. Interested parties must undertake their own investigation into the working order of these items. All measurements are approximate and photographs provided for guidance only.
Council Tax
Reading Borough Council, Band E
Utilities
Electric: Unknown
Gas: Unknown
Water: Unknown
Sewerage: Unknown
Broadband: Unknown
Telephone: Unknown
Other Items
Heating: Gas Central Heating
Garden/Outside Space: Yes
Parking: Yes
Garage: Yes

Agent Statistics (Based on 72 Reviews) :