The UK's Largest Customer Review Website for the Property Industry
The UK's Largest Customer Review Website for the Property Industry
Back to Property Listings
Wolsey Road, North Oxford
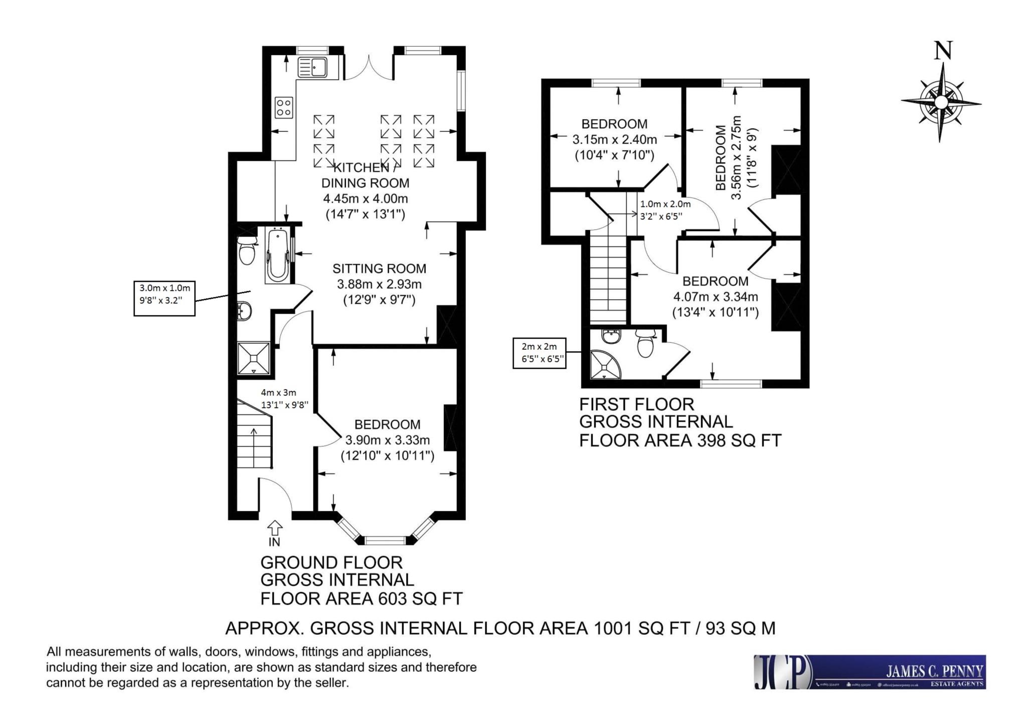
An exquisitely presented four double bedroom property in a desirable area of North Oxford with an HMO licence and accommodation comprising on the ground floor; entrance hall, large open plan kitchen/dining/sitting room with access to the rear garden, bedroom and bathroom with separate bath and shower. On the first floor there are three further bedrooms (one ensuite). To the exterior of this superb property there is a landscaped rear garden which is mainly laid to lawn with a patio and off-street parking to the front.
Wolsey Road is a popular residential side road in North Oxford, located off Banbury Road, north of fashionable Summertown. Easy access is offered to Summertown`s comprehensive range of amenities which include everyday shops, doctors and dentist surgeries, banks, library, boutique shops and excellent restaurants and caf?s.
For the more active, there are health centres, Virgin Active and Ferry Leisure, both including swimming facilities. Golf is available at North Oxford Golf Club and tennis at North Oxford Tennis Club. For those wanting to enjoy the local environment can take a leisurely walk along the River Thames through Port Meadow.
Nearby Oxford centre provides a wider range of shopping facilities, culture and the arts. The city is home to the world renowned University, Colleges and other educational institutions. North Oxford is well located for access to major road and rail networks which offer excellent services to London, the south and the Midlands.
The property is presented furnished.
EPC Rating C.
Directions
From the Central North Oxford Office of James C. Penny Estate Agents, proceed north along Walton Street, turning right into St Bernard`s Road at the mini roundabout. Continue to the end of the road and turn left onto Woodstock Road, heading north for approximately 1 mile and turning right onto Squitchey Lane. At the end of Squitchey Lane turn left onto Banbury Road and take the second turning on the right into Carlton Road. Continue along Carlton Road as it changes into Wolsey Road, the property can be found part way down on the left hand, opposite the entrance to Scott Road.
Notice
All photographs are provided for guidance only.
Redress scheme provided by: The Property Ombudsman (D03165)
Council Tax
Oxford City Council, Band C
Utilities
Electric: Mains Supply
Gas: Mains Supply
Water: Mains Supply
Sewerage: Mains Supply
Broadband: Unknown
Telephone: Unknown
Other Items
Heating: Gas Central Heating
Garden/Outside Space: Yes
Parking: Yes
Garage: No

This property is marketed by

James C. Penny Estate Agents - Central North Oxford, Oxford, OX2
4.1/5 Rating
(45) reviews
Agent Statistics (Based on 45 Reviews) :