The UK's Largest Customer Review Website for the Property Industry
The UK's Largest Customer Review Website for the Property Industry
Back to Property Listings
Wolfa Street, Derby
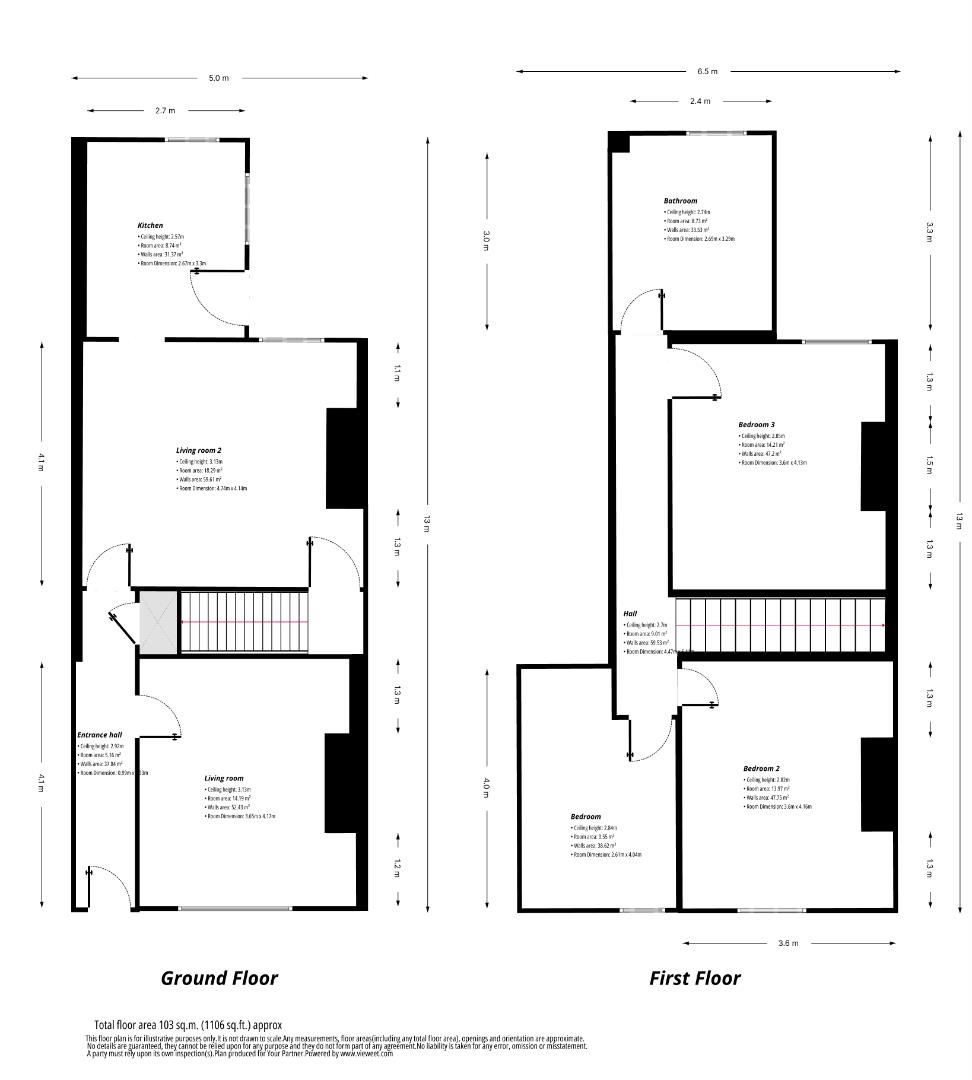
Nestled on the charming Wolfa Street in Derby, this delightful terraced house offers a perfect blend of character and modern living. Built in 1900, the property boasts a generous living space of 1,109 square feet, making it an ideal home for families or professionals seeking comfort and convenience.
Upon entering, you are greeted by two inviting reception rooms, perfect for entertaining guests or enjoying quiet evenings with family. The layout is both practical and welcoming, allowing for a seamless flow between spaces. The fully furnished interior is complemented by integrated appliances in the kitchen, ensuring that you have everything you need at your fingertips.
The property features three well-proportioned bedrooms, providing ample space for rest and relaxation. The bathroom is thoughtfully designed, catering to the needs of modern living while maintaining a sense of charm.
Situated in a vibrant area of Derby, this home is conveniently located near local amenities, schools, and transport links, making it an excellent choice for those who value accessibility. Whether you are looking to settle down or invest, this terraced house on Wolfa Street presents a wonderful opportunity to embrace a comfortable lifestyle in a historic setting. Don't miss the chance to make this lovely property your own.

Agent Statistics (Based on 0 Reviews) :