The UK's Largest Customer Review Website for the Property Industry
The UK's Largest Customer Review Website for the Property Industry
Back to Property Listings
Winston Road, Exmouth
Offered for sale with NO ONWARD CHAIN, and situated in a popular residential location convenient for local bus stops and Brixington shops, this two-bedroom semi-detached bungalow benefits from a driveway and level gardens.
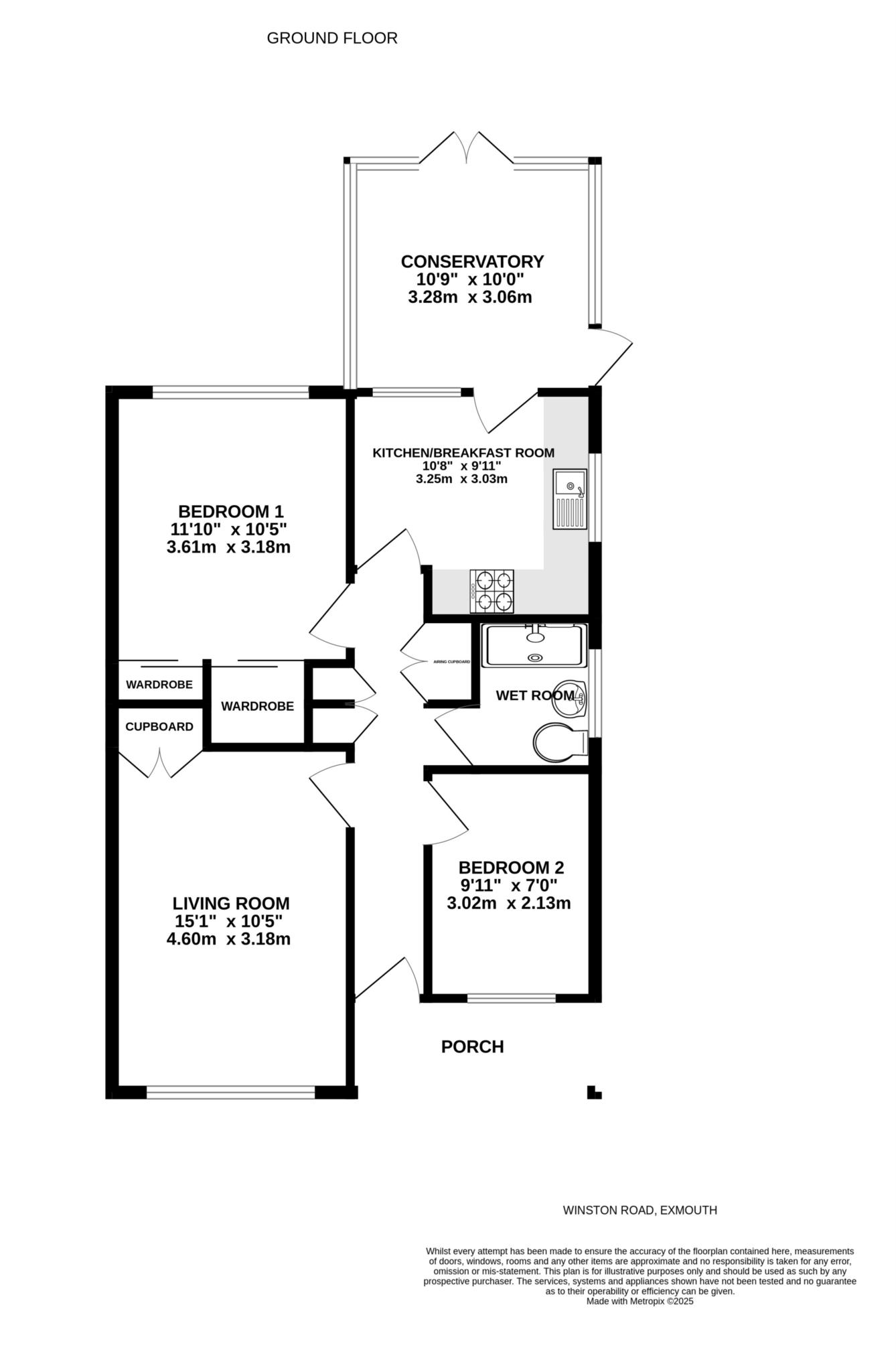
The property is gas centrally heated (via a combi boiler) and uPVC double glazed throughout. Accommodation comprises a living room, kitchen/breakfast room, uPVC double-glazed conservatory, two bedrooms, and a wet room.
To the rear is a level garden featuring a good-sized garden shed, with potential for additional off-road parking accessed via double gates separating the front and rear gardens.
Early viewing is highly recommended to fully appreciate the accommodation and location on offer.
Accommodation
Step up to uPVC double glazed front entrance door beneath pitched and tiled storm canopy, leading to:
Entrance Hall
Radiator. Access to insulated and part boarded loft space. Airing cupboard housing the gas fire Combi boiler that supplies the central heating and domestic hot water. 2 useful storage cupboards. Smoke alarm. Doors leading to kitchen / breakfast room, both bedrooms, wet room and:
Living Room - 15'1" (4.6m) x 10'5" (3.18m)
uPVC double glazed window to front. Radiator. Useful built - in storage cupboard.
Kitchen / Breakfast Room - 10'8" (3.25m) x 9'11" (3.02m)
uPVC double glazed window to side. Range of cupboard and drawer storage units with roll edged work surfaces and tiled splash backs. Stainless steel single sink and drainer unit with mixer tap. The electric cooker, washing machine and fridge / freezer in situ are included in the sale. Radiator. uPVC double glazed door with uPVC double glazed window adjacent leading to:
Conservatory - 10'2" (3.1m) x 10'0" (3.05m)
uPVC double glazed windows to 3 sides. uPVC double glazed French doors to rear and uPVC double glaze external door to side both, leading to the rear garden. Wall mounted electric heater.
Bedroom 1 - 11'10" (3.61m) x 10'5" (3.18m)
uPVC double glazed window to rear. Range of built - in wardrobes to one wall. Radiator.
Bedroom 2 - 9'11" (3.02m) x 7'0" (2.13m)
uPVC double glazed window to front. Radiator.
Wet Room
Obscure uPVC double glazed window to side. White suite of low level WC and wall mounted wash hand basin. Thermostatically controlled shower unit with fitted seat and low splash screen door. Splashback`s to walls. Heated towel rail.
Externally
The property enjoys good sized and level gardens. To the front, the open plan Front Garden is laid to lawn with shrub bed border, providing year round interest and colour. A driveway provides of road parking. Outside lighting.
Rear Garden
There is a good sized, enclosed and level Rear Garden which is laid mainly to lawn with shrub and herbaceous beds and borders that provide year round interest and colour. A concrete patio area to the side is ideal for outdoor dining and sitting during the fine weather. Timber panelled fence and hedge boundaries. Outside water tap. Good sized timber garden shed. Front pedestrian access to side of property, via double timber garden gates, giving access for further off road parking.
Tenure
The property is FREEHOLD
Services
All mains services are connected. The property is on a water meter. Council Tax Band B
Mortgage Assistance
We are pleased to recommend Meredith Morgan Taylor, who would be pleased to help no matter which estate agent you finally buy through. For a free initial chat please contact us on 01395 222350 to arrange an appointment
Your home may be repossessed if you do not keep up repayments on your mortgage
Meredith Morgan Taylor Ltd is an appointed representative of The Openwork Partnership, a trading style of Openwork Ltd which is authorised and regulated by the Financial Conduct Authority (FCA).
Agents Note
These are draft particulars and are awaiting vendors verification.
Directions
From our prominent Town Centre office, proceed onto Salterton Road and turn left at the first set of traffic lights signposted Exeter. Proceed down the hill having Phear Park on your right hand side and turn right at the mini roundabout and straight ahead at the second mini roundabout into Withycombe Village Road. At the double roundabout, turn right, then left into St Johns Road. Continue along, passing Bassetts Farm school on your right, taking the next left into York Close. Turn right into Winston Road. The property will be found towards the end of the road, on the right, clearly identified by our For Sale sign.
what3words /// duke.twice.edits
Notice
Please note we have not tested any apparatus, fixtures, fittings, or services. Interested parties must undertake their own investigation into the working order of these items. All measurements are approximate and photographs provided for guidance only.
Utilities
Electric: Mains Supply
Gas: Mains Supply
Water: Mains Supply
Sewerage: Mains Supply
Broadband: Unknown
Telephone: Unknown
Other Items
Heating: Gas Central Heating
Garden/Outside Space: Yes
Parking: Yes
Garage: No

Agent Statistics (Based on 744 Reviews) :