The UK's Largest Customer Review Website for the Property Industry
The UK's Largest Customer Review Website for the Property Industry
Back to Property Listings
Wing Road, Manton, Rutland
Cedar Cottage is a unique and deceptively spacious two-bedroom home, offering off-road parking and a range of outbuildings, all set on a generous plot on the edge of the sought-after Rutland village of Manton.
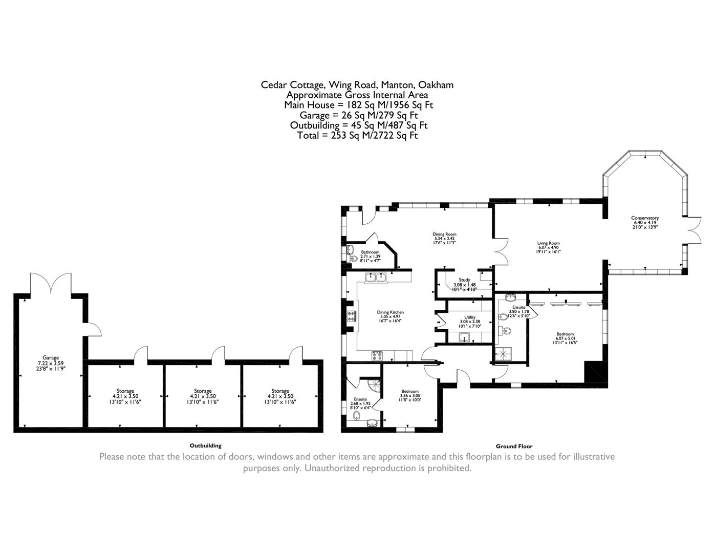
Accommodation - You enter Cedar Cottage through a central hallway that provides access to all main areas. On either side are two double bedrooms, both with en-suite shower rooms. The principal bedroom also includes built-in wardrobes.
The well-proportioned dining kitchen sits at the centre of the property with a range of fitted units, integrated appliances, space for further appliances, and an AGA. Next to it is a utility room offering extra storage and space for white goods.
An open arch connects the kitchen to a vaulted dining room with beautiful views over the garden and countryside beyond plus a door to the patio. Double doors lead from the dining area into a spacious living room, which flows into a conservatory. The conservatory has a French door opening out to the rear patio and garden. The accommodation also includes a useful study area and a separate WC.
Outside - Externally, the property sits on a generous, wrap-around plot of around half of an acre with extensive countryside views over the Chater Valley. The front has a large gravel driveway providing off-road parking and access to a single garage, workshop, and stables/storage buildings. There is pedestrian access to either side of the house that lead to the south-west facing rear garden. The garden itself is mainly laid to lawn with a patio sitting directly off the living accommodation. There is an array of well-established planting and specimen trees providing year-round interest and a wonderful degree of privacy.
Location - The property is located in the pretty village of Manton overlooking Rutland Water and close to the popular county towns of Stamford, Oakham and Uppingham. The area is particularly well served by plenty of popular schooling in both the state and private sectors. Manton is accessible to a number of major centres including Peterborough, Corby, Kettering, Leicester, Melton Mowbray, Nottingham and Grantham offering mainline train services to many London stations. Rutland Water and the surrounding countryside offers a wide range of outdoor pursuits including cycling, sailing, walking, birdwatching and horse riding.
Services & Council Tax - The property is offered to the market with all mains water, electricity and gas-fired central heating. The property currently has a private septic tank but is due to be replaced by the current owners by a new sewage treatment system.
Rutland County Council - Tax Band A
Tenure - Freehold

This property is marketed by

James Sellicks Estate Agents - London office, London, SW1A
5/5 Rating
(283) reviews
Agent Statistics (Based on 283 Reviews) :