The UK's Largest Customer Review Website for the Property Industry
The UK's Largest Customer Review Website for the Property Industry
Back to Property Listings
Windleaves Road, Castle Bromwich
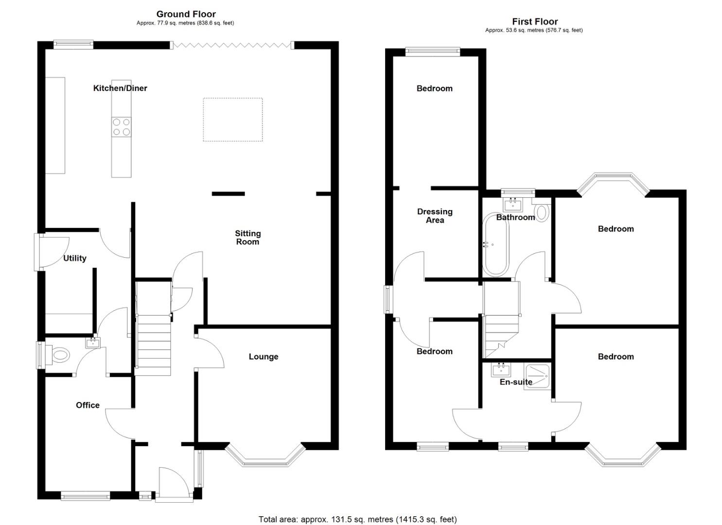
This extremely well presented four bedroom property briefly comprises porch, hallway, lounge, kitchen/diner/family room, utility room, office/playroom, downstairs w/c, four bedrooms, jack and jill shower room and family bathroom. There is an enclosed rear garden and a driveway the the front. This property must be viewed to appreciate the size and standard of property on offer and would make a lovely family home.
Approach - Via a tarmaced driveway with ample off road parking.
Porch - Double glazed door to front, double glazed window to side and spot lights to ceiling.
Hallway - Stairs to first floor accommodation, storage cupboard, underfloor heating and two wall light points.
Lounge - 3.76m max into bay x 3.25m max into recess (12'4 m - Double glazed bay window to front, underfloor heating and ceiling light point.
Office/Playroom - Double glazed window to front, underfloor heating and spotlights to ceiling.
Utility - Double glazed door to rear garden, space for white goods, cupboard concealing wall mounted central heating boiler and ceiling light point.
Downstairs W/C - Double glazed window to side, low level W/C, wash and basin with vanity below, underfloor heating and spot lights to ceiling.
Kitchen/Diner/Family Room - 7.54m x 6.83m (24'09 x 22'5) - Double glazed bifold door and window to rear, sky lantern, wall base and drawer units, island with induction hob with storage below, sink with drainer and mixer tap, breakfast bar, integrated oven, microwave oven, dishwasher and fridge freezer and four ceiling light points.
Landing - Loft access with loft ladder, partially boarded loft and ceiling light point.
Bedroom One - 3.76m max into bay x 3.12m (12'4 max into bay x 10 - Double glazed bay window to front, radiator and ceiling light point.
Bedroom Two - 4.04m max into bay x 3.12m (13'3 max into bay x 10 - Double glazed bay window to rear, radiator and ceiling light point.
Bedroom Three - 5.54m x 2.06m (18'2 x 6'9) - Double glazed window to rear, radiator and spot lights to ceiling.
Bedroom Four - 3.07m x 2.06m (10'1 x 6'9) - Double glazed window to front, radiator and spot lights to ceiling.
Family Bathroom - Double glazed window to rear, low level W/C, hand wash basin, freestanding bath with hand shower over and spot lights to ceiling
Jack And Jill Ensuite - Double glazed window to front, shower enclosure, hand wash basin with storage below, radiator and spot lights to ceiling.
Rear Garden - Mainly laid to lawn, paved patio area, gated side access to front and enclosed to neighbouring boundaries.
Further Information - We endeavour to make our sales particulars accurate and reliable, however they do not constitute or form part of an offer or any contract and none is to be relied upon as statements of representation or fact. Any services, systems and appliances listed in this specification have not been tested by Chambers Estate & Letting Agents and we make no guarantee as to their operating ability or efficiency. All measurements have been taken as a guide only to prospective buyers and may not be correct. Potential buyers are advised to re-check measurements and test any appliances. A buyer should ensure that a legal representative confirms all the matters relating to this title including boundaries and any other important matters.
Money Laundering Regulations:intending purchasers will be required to provide proof of identification at offer stage, a sale cannot be agreed without this.
Council Tax Band - C
EPC Rating - C

This property is marketed by

Chambers Estate & Letting Agents - Water Orton, Birmingham, B46
4.9/5 Rating
(266) reviews
Agent Statistics (Based on 266 Reviews) :