The UK's Largest Customer Review Website for the Property Industry
The UK's Largest Customer Review Website for the Property Industry
Back to Property Listings
Wincanton Croft, Birmingham
This beautifully presented family home offers generous accommodation across two floors and is ideally situated for access to excellent local amenities, nearby schools, and convenient transport links including motorway connections.Recently refurbished throughout, the property combines fresh, contemporary interiors with a practical layout ideal for growing families.
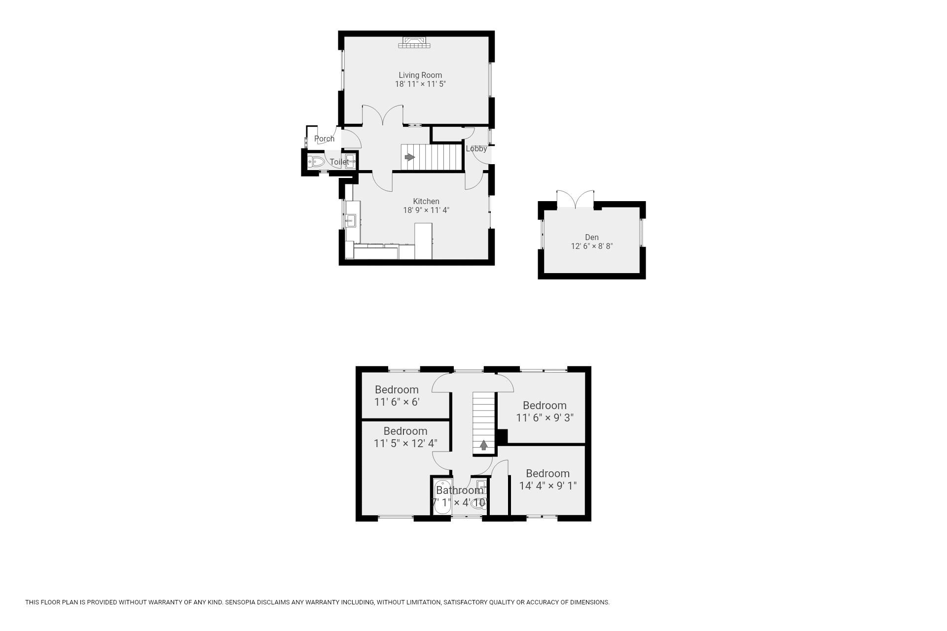
Approached via a private front garden, the home opens into an entrance porch leading through to a welcoming hallway that sets the tone for the space to come.The dual-aspect lounge is a superbly proportioned room enjoying plenty of natural light, creating a bright and relaxing setting for everyday living and entertaining alike. Across the hall, the modern kitchen diner provides a real hub of the home, offering ample space for family meals with a range of shaker-style units, marble-effect worktops, a breakfast bar, and useful pantry storage. Sliding doors open directly onto the rear garden, seamlessly blending indoor and outdoor living.A ground-floor cloakroom/WC adds further practicality to the layout.
Upstairs, there are four well-sized bedrooms, each comfortably accommodating bedroom furniture. The principal bedroom is particularly generous, while the remaining rooms offer flexibility for use as children’s bedrooms, a home office, or guest accommodation. The family bathroom has been tastefully updated with a bath and shower over, modern tiling, and a fitted vanity unit.
Outside, the rear garden has been designed for low maintenance, featuring a paved patio area ideal for outdoor dining and a brick-built store providing extra storage space. Parking is available to the rear of the property.
This attractive and deceptively spacious home offers fantastic value for money and is ready to move straight into. Early viewing is strongly recommended to appreciate both the quality of finish and the space on offer.BUYERS:Identity Verification Fee - We are required by law to conduct anti-money laundering checks on all those buying a property as part of our due diligence. As agents acting on behalf of the seller, we are required to verify the identity of all purchasers once an offer has been accepted, subject to contract. The initial checks are carried out on our behalf by Lifetime Legal . A non-refundable administration fee of £40 + VAT (£48 including VAT) applies which covers the cost of obtaining relevant data and any manual checks and monitoring which might be required. This fee will need to be paid by you in advance of us issuing a memorandum of sale, directly to Lifetime Legal, and is non-refundable.

This property is marketed by

Paul Carr Estate Agents - Walmley, Sutton Coldfield, B76
4.3/5 Rating
(1942) reviews
Agent Statistics (Based on 1942 Reviews) :