The UK's Largest Customer Review Website for the Property Industry
The UK's Largest Customer Review Website for the Property Industry
Back to Property Listings
Willoughby Close, Exmouth
A very well presented purpose built 1 double bedroom ground floor flat offering a good size and easy to maintain sunny garden and an allocated parking space. Offered for sale with NO ONWARD CHAIN. The accommodation which is double glazed and benefits from modern electric heating offers accommodation comprising an entrance lobby, lounge/dining room, modern kitchen and bathroom/WC. Externally there are gardens to the front and rear and an allocated parking space located close by.
Accommodation
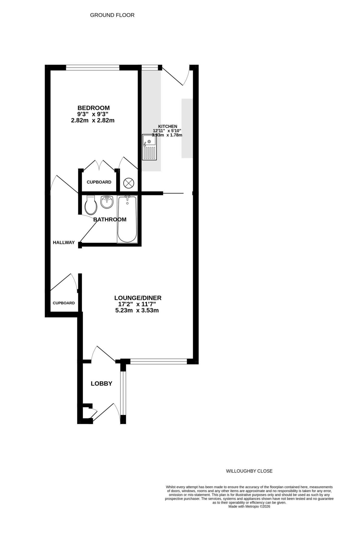
Ground Floor
Double glazed entrance door to:
Lobby
Double glazed window. Built-in cupboard. Glazed inner door to:
Lounge/Dining Room - 11'7" (3.53m) x 17'2" (5.23m) Max
Maximum measurement into the dining area. Double glazed window to the front. 3 Electric wall heaters. TV aerial point. Sliding door to:
Kitchen - 12'11" (3.94m) x 5'10" (1.78m)
Double glazed window and door to the rear garden. Fitted with a modern range of base cupboard and drawer units with wall mounted units over. Work top surfaces with tiled splash back. Single drainer sink unit. Breakfast bar. Plumbing for washing machine. Space for slimline dishwasher. Space for fridge/freezer. Electric heater.
Inner Hallway
Large built-in storage cupboard. Electric heater. Doors to:
Bedroom - 9'3" (2.82m) x 9'3" (2.82m)
Double glazed window to the rear with an open outlook. Built-in airing cupboard. Built-in wardrobe. Electric wall heater.
Bathroom/WC
Modern suite comprising panelled bath. Built-in shower over. Tiled splashback. Pedestal wash hand basin. Tiled splashback. Close-coupled WC. Extractor fan. Heated towel rail.
Externally
To the front of the property is an area of lawn with a pathway to the entrance door and a paved sitting area located adjoining the front of the property.
The rear garden is a particular feature of the property and is of a good size and enjoys a sunny aspect. The garden backs onto a green area and is designed with ease of maintenance in mind. A good size composite deck leads down to a lower decked area with the remainder of the garden having a slate chipping covering. Outside water tap. Electric power point. Gate to the rear. Useful garden store.
Allocated Parking
The property has an allocated parking space.
Tenure
The property is LEASEHOLD. We understand the property is held on 999 year lease from 1976. The property pays a peppercorn ground rent.
Services
All mains services except gas are connected. Council Tax Band A
Mortgage Assistance
We are pleased to recommend Meredith Morgan Taylor, who would be pleased to help no matter which estate agent you finally buy through. For a free initial chat please contact us on 01395 222350 to arrange an appointment
Your home may be repossessed if you do not keep up repayments on your mortgage
Meredith Morgan Taylor Ltd is an appointed representative of The Openwork Partnership, a trading style of Openwork Ltd which is authorised and regulated by the Financial Conduct Authority (FCA).
Agents Note
Please note these are draft particulars and are awaiting vendors verification.
Directions
From our prominent Town Centre office, proceed into Exeter Road and take a right hand turning into Hulham Road signposted Honiton and Ottery St Mary. Proceed up the hill turning right into Marley Road. Continue into Jubilee Drive and take the first right turning into Vansittart Drive and then first left into Willoughby Close where the property will be found on the left hand side, clearly identified by our For Sale board.
what3words /// influencing.debate.boom
Notice
Please note we have not tested any apparatus, fixtures, fittings, or services. Interested parties must undertake their own investigation into the working order of these items. All measurements are approximate and photographs provided for guidance only.
Utilities
Electric: Mains Supply
Gas: Unknown
Water: Mains Supply
Sewerage: Unknown
Broadband: Unknown
Telephone: Unknown
Other Items
Heating: Electric Heaters
Garden/Outside Space: Yes
Parking: Yes
Garage: No

Agent Statistics (Based on 747 Reviews) :