The UK's Largest Customer Review Website for the Property Industry
The UK's Largest Customer Review Website for the Property Industry
Back to Property Listings
Wilburn Basin, Ordsall Lane, Manchester
Hibbert Homes are delighted to offer the rare opportunity to own this luxury Penthouse in the centre of Manchester, located within Wilburn Basin, Ordsall Lane! This brilliant property holds exceptional panoramic views of Manchester and offers modern characteristics throughout. Many benefits are included with this penthouse, such as underground gated parking for two vehicles, 24 hour concierge, on-site gym and office space. Wilburn Basin finds itself just a short walk away from Spinningfields, providing convenience to an array of amenities, bars, restaurants, while also benefiting those who work within the city centre too.
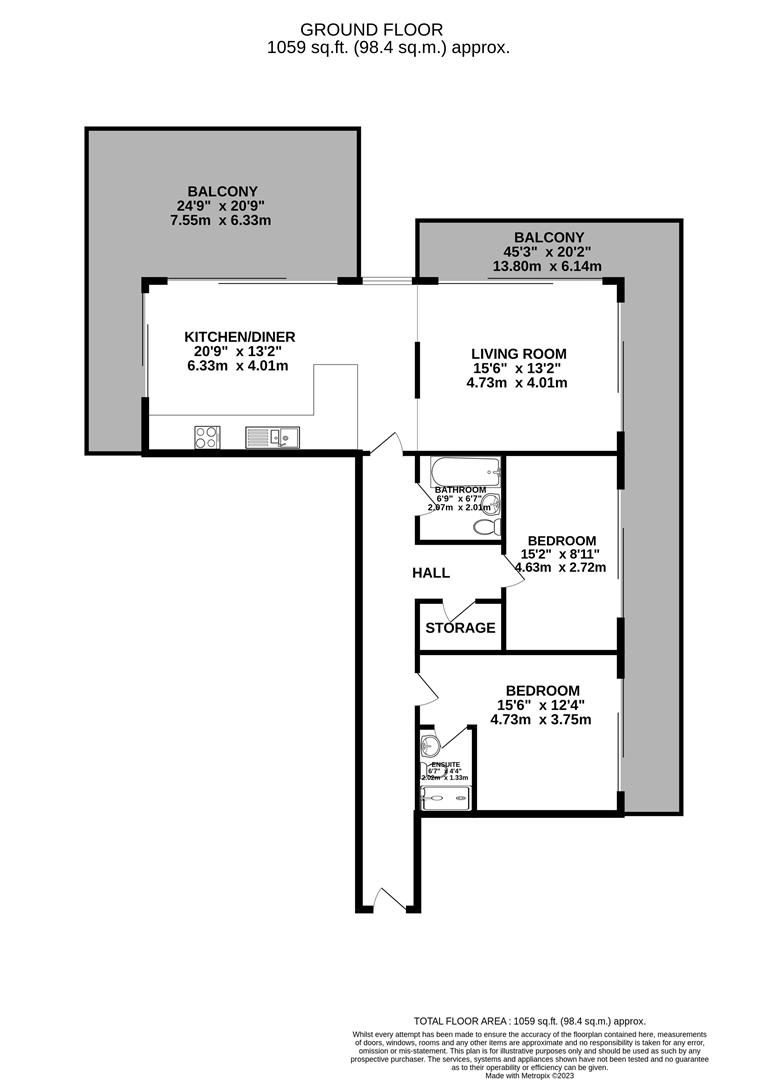
Wilburn Basin comprises from a large hallway upon entrance, two double bedrooms, both featuring access to the balcony, with the master bedroom featuring a modern en-suite with rain shower, a main bathroom further featuring a rain shower above bath and a slick tiled finish, an open-plan bespoke kitchen with integrated state-of the art appliances, and a cosy living space, with floor to ceiling windows drawing in excellent levels of natural light into the property.
A brilliant and rare feature to this property is the terrace on offer, offering incredible views of Manchester to enjoy, making this the perfect spot to host guests or enjoy for yourself!
This property is sold CHAIN FREE and is ready for anyone to move into immediately! Please contact Hibbert Homes Bramhall on 0161 480 0099 enquiries@hibberthomes.com to arrange your viewing today!
TASTEFULLY PRESENTED THROUGHOUT, AN ELEVENTH FLOOR PENTHOUSE OFFERING PRIVATE TERRACE AND TANDEM UNDERGROUND PARKING.....
Property Information - ADSLUnder 24Mbps100%
Superfast24-100Mbps100%
Ultrafast100-999Mbps100%
Gigabit1000Mbps100%
Briefly comprising of; Entrance hallway leading to family bathroom with over bath shower and separate utility room inclusive of a washer dryer. Master bedroom with en-suite shower room and access to the wrap around balcony. Second double bedroom also with balcony access. Open plan dual aspect living room with large sliding patio doors, leading out to a rare and generous terrace. Dining kitchen with integrated oven, hob, hood, dishwasher, fridge and freezer. Tastefully fully furnished. Council Tax band - D. EPC band - B. Available immediately.

Agent Statistics (Based on 193 Reviews) :