The UK's Largest Customer Review Website for the Property Industry
The UK's Largest Customer Review Website for the Property Industry
Back to Property Listings
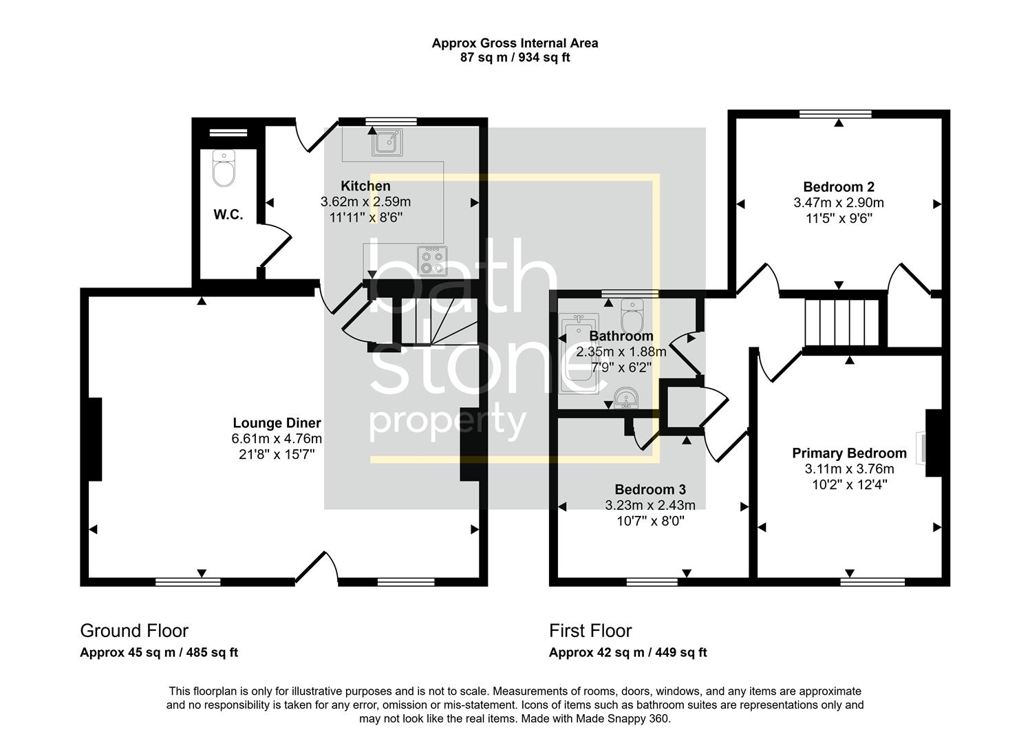
Whitehill Cottages, Shoscombe, Bath
THE PROPERTY being sold with no chain, in the village of Shoscombe, Bath. This Victorian characterful cottage offers a perfect blend of character and modern living. This mid-terrace property boasts three spacious double bedrooms, a lounge diner, downstairs WC, kitchen, driveway and a grand garden to the rear.
*SOLD WITH NO CHAIN* Located in the village of Shoscombe, Bath, this delightful Victorian cottage offers a perfect blend of character and modern living. This mid-terrace property boasts three spacious double bedrooms, making it an ideal home for families or those seeking extra space. The inviting reception room provides a warm and welcoming atmosphere, perfect for relaxation or entertaining guests.
One of the standout features of this cottage is the stunning views that can be enjoyed from various vantage points within the home. The driveway at the front of the cottage provides convenient parking, while the good-sized garden at the rear offers a private outdoor space for gardening, play, or simply enjoying the fresh air.
The entire downstairs features a stunning natural travertine stone floor, adding timeless character and a warm, rustic charm to the space. The stone's subtle colour variations and textured finish beautifully complement the exposed ceiling beams and traditional fireplace feature, creating a cozy yet elegant atmosphere.
Shoscombe is a tranquil village located approximately 7 miles South of Bath. Despite its small size, with a population of around 443, Shoscombe offers a rich blend of natural beauty, historical charm, and community spirit.
With its Victorian charm and modern amenities, this cottage is a rare find in a picturesque setting. Whether you are looking to settle down in a peaceful village or seeking a weekend retreat, this property is sure to impress. Don't miss the opportunity to make this lovely cottage your new home.

Agent Statistics (Based on 99 Reviews) :