The UK's Largest Customer Review Website for the Property Industry
The UK's Largest Customer Review Website for the Property Industry
Back to Property Listings
Whitehall Road, Uxbridge
Ideal investment opportunity! A spacious top-floor flat with unique layout, featuring second room directly off the main bedroom, perfect for a study, nursery or creative space.
Description - Set within a small, well-maintained development, this second-floor apartment is offered to the market with no upper chain. Ideally located just a short walk from Uxbridge Station and town centre shops, it also offers excellent road links with the A40 nearby, providing easy access to London and the M25.
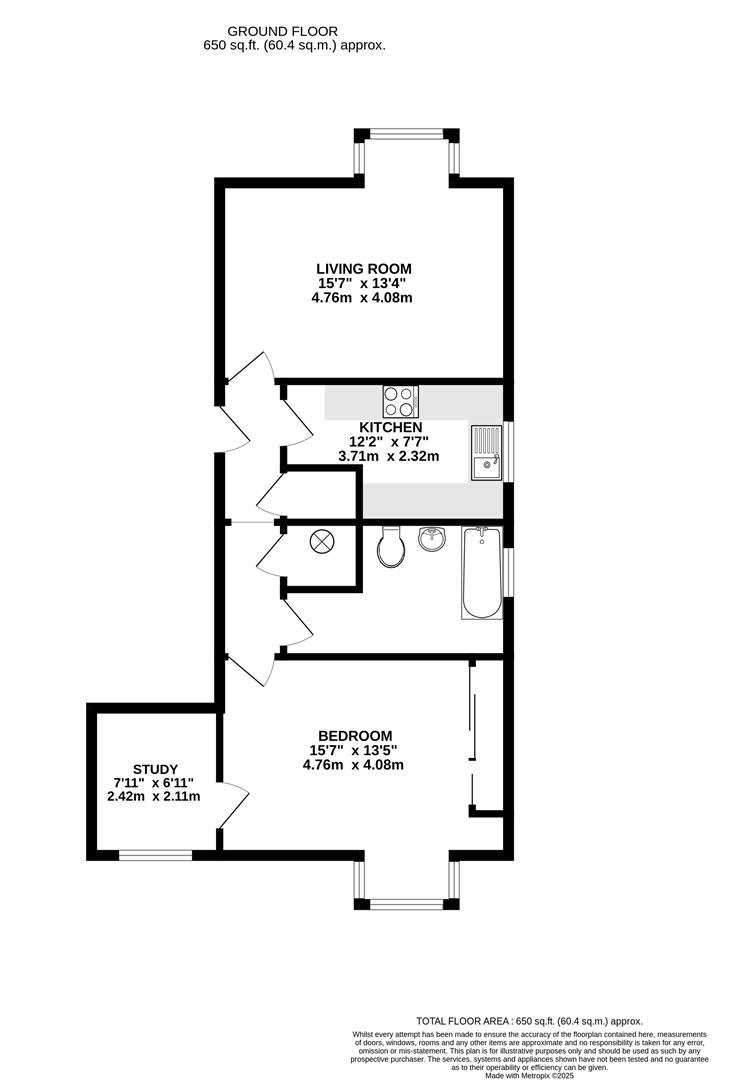
Accommodation - Providing accommodation that briefly comprises, entrance hall with large built in storage cupboards, the rear aspect reception room has a double glazed bay window overlooking the communal garden, the kitchen is fitted with storage units, drawers, and work surfaces with inset stainless steel sink, inset electric hob with electric oven below and extractor above, space for washing machine and fridge freezer, and a side aspect double glazed window. The spacious bathroom has an enclosed bath with mixer tap and shower attachment, vanity wash basin, WC, partly tiled walls and a side aspect double glazed window. The large bright and airy double bedroom has a front aspect double glazed bay window, and ample built in mirror fronted wardrobes, there is a door to the study/second bedroom which has a front aspect double glazed window.
Outside - To the rear of the property, there is a communal garden and private residents parking.
Situation - Kendal Mews is positioned in the heart of Uxbridge being a short walk from Uxbridge station with its Metropolitan and Piccadilly line station giving access to London, and Uxbridge shopping centre and High Street with a variety of shops, restaurants and bars. For the motorist the A40 is a short drive away giving access to London and the M25.
Terms And Notification Of Sale - Tenure: Leasehold
Local Authority: London Borough of Hillingdon
Council tax band: C
EPC rating: C
Lease: years from - Approximately 62 years remaining
Service charge: Approximately £1200 per annum
Ground rent: Peppercorn

This property is marketed by

Cameron Estate Agents - Uxbridge, Uxbridge, UB8
4.8/5 Rating
(1176) reviews
Agent Statistics (Based on 1176 Reviews) :