The UK's Largest Customer Review Website for the Property Industry
The UK's Largest Customer Review Website for the Property Industry
Back to Property Listings
Whitby Road, Lytham St Annes, FY8 3HA
THREE BEDROOM SEMI DETACHED HOUSE IN FANTASTIC LOCATION WITH DRIVEWAY, Open Plan Kitchen/Living & Dining Area, Two Bathrooms, Large Rear Garden, EPC Rating C, Council Tax Band D, Deposit ?1,269 - PLEASE REGISTER YOUR INTEREST ONLINE FOR A VIEWING
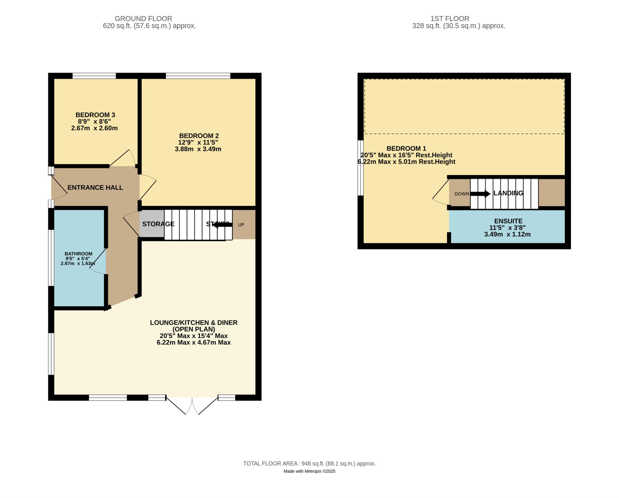
Entrance Hall
Double glazed composite entrance door and double glazed windows to the side, designer radiator, meter cupboard, storage cupboard, wood laminate flooring.
Lounge/Kitchen & Dining Area(open plan) - 20'5" (6.22m) Max x 15'4" (4.67m) Max
Double glazed patio doors to the rear and double glazed windows to the side and rear, designer radiator, modern fitted kitchen with wall and base units with work surface, built in oven and hob with extractor hood over, space for washing machine, integrated fridge, television point, wood laminate flooring.
Bedroom Two - 12'9" (3.89m) x 11'5" (3.48m)
Double glazed window, radiator, carpet.
Bedroom Three - 8'9" (2.67m) x 8'6" (2.59m)
Double glazed window, radiator, carpet.
Bathroom(downstairs) - 9'5" (2.87m) x 5'4" (1.63m)
Double glazed window, designer radiator, modern suite comprising: Panelled bath, vanity wash hand basin and close coupled W.C, complimentary wall and floor tiling.
Landing
Bedroom One - 20'5" (6.22m) Max x 16'5" (5m) Into Eaves
Double glazed window, radiator, walk-in wardrobe area, carpet.
En Suite - 11'5" (3.48m) x 3'8" (1.12m)
Modern suite comprising: Shower cubicle, vanity wash hand basin and close coupled W.C, designer radiator, complimentary wall and floor tiling.
Rear Garden
Large rear garden with lawned and patio areas.
Driveway
Driveway with ample parking for approximately three cars.
Notice
All photographs are provided for guidance only.
Redress scheme provided by: The Property Ombudsman (D01787)
Client Money Protection provided by: Propertymark Client Money Protection Scheme (C0132037)
Utilities
Electric: Mains Supply
Gas: Mains Supply
Water: Mains Supply
Sewerage: Mains Supply
Broadband: None
Telephone: None
Other Items
Heating: Gas Central Heating
Garden/Outside Space: Yes
Parking: Yes
Garage: No

This property is marketed by

Christie King Estate Agents - Blackpool, Blackpool, FY4
3.5/5 Rating
(2) reviews
Agent Statistics (Based on 2 Reviews) :