The UK's Largest Customer Review Website for the Property Industry
The UK's Largest Customer Review Website for the Property Industry
Back to Property Listings
Westfield Road, Caversham
Masons are proud to offer to the market this attractive three bedroom Victorian end terrace property presented for sale in good condition throughout and located in the centre Caversham and a short walk to Caversham & Reading centres, along with Reading mainline station. The property benefits from three double bedrooms, a 12ft dining room, a 12ft living room, a 10ft kitchen, a bathroom with a bath and separate shower. Further benefits include private rear garden and a garage with light & power. Viewing recommended.
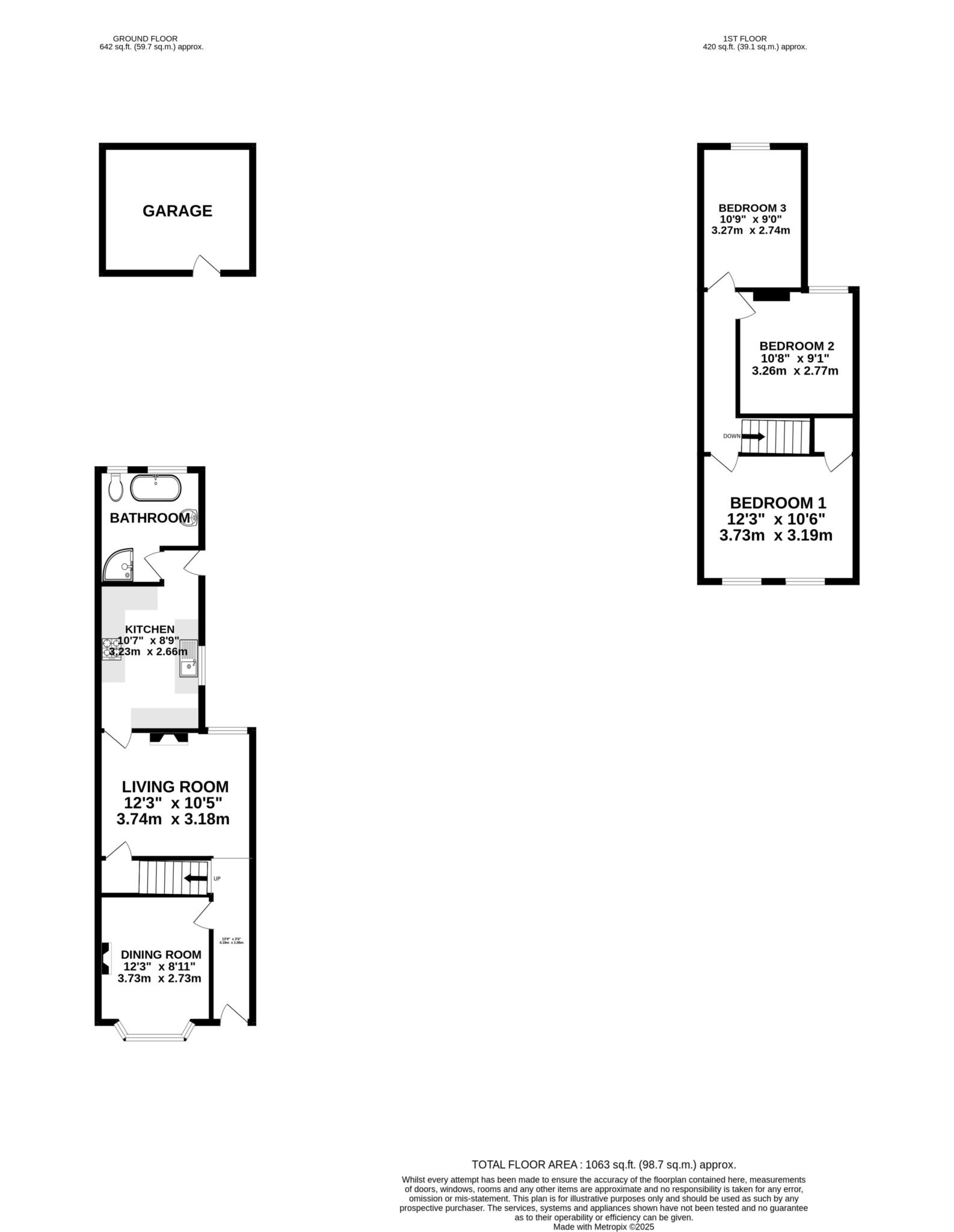
Front door to entrance hall, which has the stairs to the first floor and doors to:
Living room: 12`3" x 8`11" into double glazed bay window, feature ornamental fireplace.
Dining room: 12`3" x 10`" double glazed rear aspect, feature working fireplace, cupboard under the stairs. Opening to:
Kitchen: 10`7" x 8`9" double glazed side aspect, modern range of eye and base level units with roll edge tops and tiled surround, integrated oven, hob and extractor and space and plumbing for appliances.
Bathroom: double glazed rear aspect, free standing bath, separate shower cubicle, wash basin and low level wc.
First floor landing has doors to:
Bedroom 1: 12`3" x 10`6" twin double glazed front aspect, built-in cupboard.
Bedroom 2: 10`8" x 9`1" double glazed rear aspect.
Bedroom 3: 10`9" x 9`0" double glazed rear aspect.
Outside: To the front there is a small garden area with a path to the front door. To the rear the garden is mainly laid to lawn with a variety of plants and shrubs. There is established fruit bushes and raised beds and access to the rear of the garage, which has light and power and a roller door.
Notice
Whilst every care has been taken in the preparation of these particulars, and they are believed to be correct, they are not warranted and intending purchasers/lessees should satisfy themselves as to the correctness of the information given.Please note we have not tested any apparatus, fixtures, fittings, or services. Interested parties must undertake their own investigation into the working order of these items. All measurements are approximate and photographs provided for guidance only.
Council Tax
Reading Borough Council, Band C
Utilities
Electric: Unknown
Gas: Unknown
Water: Unknown
Sewerage: Unknown
Broadband: Unknown
Telephone: Unknown
Other Items
Heating: Not Specified
Garden/Outside Space: No
Parking: No
Garage: No

Agent Statistics (Based on 72 Reviews) :