The UK's Largest Customer Review Website for the Property Industry
The UK's Largest Customer Review Website for the Property Industry
Back to Property Listings
Western Drive, Blaby, Leicester
This well presented and good sized family home is situated on a generous plot offering ample off road parking, well proportioned rooms and a generous rear garden. The property offers scope for extension (STPP) and is well placed for major road and rail links with local amenities, shops and schools within walking distance. The accommodation comprises: Entrance hall, lounge, kitchen/diner, pantry, utility room, downstairs WC, two store rooms, three good sized bedrooms and family bathroom. Outside the property has a large block paved driveway and private rear garden.
Details - SUMMARY This well presented and good sized family home is situated on a generous plot offering ample off road parking, well proportioned rooms and a generous rear garden. The property offers scope for extension (STPP) and is well placed for major road and rail links with local amenities, shops and schools within walking distance. The accommodation comprises: Entrance hall, lounge, kitchen/diner, pantry, utility room, downstairs WC, two store rooms, three good sized bedrooms and family bathroom. Outside the property has a large block paved driveway and private rear garden.
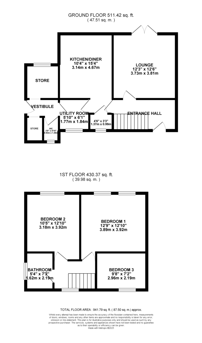
ENTRANCE HALL 12' 3" x 6' 1" (3.73m x 1.85m) Accessed via a UPVC double glazed front door. Doors off to: Lounge and kitchen/diner. Stairs rising to: First floor. UPVC double glazed window to front aspect on stairwell. Laminate wooden flooring. Radiator.
LOUNGE 12' 7" x 12' 6" (3.84m x 3.81m) UPVC double glazed 'French' doors out to: Rear garden. Feature fireplace. TV and telephone point. Laminate wooden flooring. Radiator.
KITCHEN/DINER 12' 6" x 10' 5" (3.81m x 3.18m) Having a selection of fitted base and wall units with a laminate worktop over. There is a space for a freestanding gas top 'range' style cooker (negotiable) and space for an under counter fridge. UPVC double glazed window to rear aspect. Door to: Pantry and utility room. Laminate wooden flooring. Radiator.
UTILITY Having fitted base units with a laminate worktop over. There is a UPVC double glazed window to the front aspect, space and plumbing for a freestanding washing machine and a storage cupboard. Door through to: Outhouse area and WC.
WC Comprising: Low level WC. UPVC double glazed window to front aspect.
OUTHOUSE ROOMS There are two further rooms ideal for storage with the larger rear room having a UPVC double glazed window benefitting from power and light.
LANDING Doors off to: Bedrooms and bathroom. UPVC double glazed window to front aspect. Loft hatch with drop down ladder.
BEDROOM ONE 12' 9" x 11' 4" (3.89m x 3.45m) Two UPVC double glazed windows to rear aspect. Built-in cupboard, TV point. Radiator.
BEDROOM TWO 11' 4" x 10' 5" (3.45m x 3.18m) UPVC double glazed window to rear aspect. Two built-in cupboards, one housing the recently installed boiler. TV point. Radiator.
BEDROOM THREE 9' 8" x 7' 4" (2.95m x 2.24m) UPVC double glazed window to front aspect. Built-in cupboard over the stairs. Radiator.
BATHROOM 7' 3" x 5' 4" (2.21m x 1.63m) Having been re-fitted benefitting from bath with mixer tap, electric power shower over, sink within a fitted vanity unit, low level WC. UPVC double glazed window to side aspect. LED spotlights. Extractor. Aqua boarding to walls. Laminate wooden flooring. Radiator.
OUTSIDE The property occupies a large plot having a generous frontage which is block paved and provides parking for multiple vehicles. There is a pedestrian side gate through to the rear. The large and private rear garden has two paved patio seating areas, lawn, raised planting beds, ornamental pond and well established planting.
SALES SUMMARY & MATERIAL INFORMATION •Price : £270,000
•Tenure : Freehold
•Length of lease : N/A
•Annual ground rent amount : N/A
•Ground rent review period : N/A
•Annual service charge amount : N/A
•Service charge review period : N/A
•Council tax band : B
• EPC Rating: TBC
•Shared Ownership : N/A
• Property type: Semi-detached - Ex local authority.
• Property construction: Brick
• Number and types of room: Please refer to floorplan
• Electricity supply: Mains
• Water supply: Metered
• Sewerage: Public sewer
• Heating: Gas boiler, gas central heating
• Broadband: Fibre broadband
• Mobile signal / coverage: refer to Ofcom mobile coverage checker
• Parking: Off road parking
• Building safety: No known hazards
• Restrictions:N/A
• Rights and easements: No known relevant rights or easements
• Coastal erosion risk: N/A
• Planning permission: No known planning permissions or proposals for development
• Accessibility/Adaptations: N/A
• Coalfield or mining area: No direct impact of any mining activity
THINKING OF SELLING? We would be delighted to provide you with a free market appraisal/valuation of your own property. Please contact Phillips George to arrange a convenient appointment on 01162168178.
BUYING TO LET? Phillips George are expert, ARLA qualified letting agents with experience of all kinds of rental property across city and county. Should you need a rental valuation for your new property or on any of your existing portfolio, or simply want some advice on the current rental market, call us now on 01162168178.
DISCLAIMER & IMPORTANT INFORMATION Phillips George Sales & Lettings for themselves and the vendors of this property whose agents they are, give notice that these particulars are not to be relied upon as a statement or representation of fact and do not constitute any part of an offer or a contract. Intending purchasers must satisfy themselves by inspection or otherwise as to the correctness of each and any statements contained in these particulars. The vendors do not make or give and neither do Phillips George Sales & Lettings (nor any person in their employment) have authority to make any representation or warranty whatsoever in relation to the property.
None of the services, systems or appliances listed or shown in this specification have been tested by us and no guarantee as to their operating ability or efficiency is given. All floorplans and dimensions have been provided as a guide for prospective buyers only, and should not be relied on as a true representation.
Current money laundering regulations require us to confirm proof of identity and residency of anyone intending to purchase. We ask for your co-operation in providing the necessary documentation in order to avoid delays in agreeing the sale.

This property is marketed by

Phillips George Estate Agents - Wigston, Leicester, LE18
4.9/5 Rating
(42) reviews
Agent Statistics (Based on 42 Reviews) :