The UK's Largest Customer Review Website for the Property Industry
The UK's Largest Customer Review Website for the Property Industry
Back to Property Listings
Westcliffe Road, Birkdale, Southport, Merseyside, PR8 2BN
Council tax band: TBC
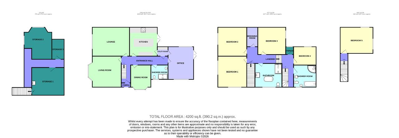
Situated in the highly sought after area of Birkdale, this outstanding five bedroom family home offers an exceptional amount of space, beautifully presented interiors and impressive outdoor areas, creating a truly remarkable property.
Upon entering the home, you are welcomed into a grand entrance hallway that immediately sets the tone for the rest of the house. At the front of the property are two beautifully presented and generously sized reception rooms, currently used as the main living room and lounge. Both spaces offer an abundance of natural light and provide ideal areas for relaxing or entertaining.
Moving through the property, you will find the well appointed kitchen. This good sized room offers plenty of counter space along with a central island, all finished to a high standard, creating a practical yet stylish space for everyday living. Just to the rear of the kitchen is a convenient utility room which neatly separates the kitchen from the office space.
The office is a bright and versatile room, easily large enough to serve multiple purposes such as a home workspace, playroom or additional reception area. Opposite the kitchen is the dining room, a wonderful space filled with natural light from the bay windows, making it the perfect setting for family meals and entertaining guests. Completing the ground floor is a modern shower room.
Upstairs, the spacious landing leads to three generously sized bedrooms, each filled with natural light. The exceptionally finished family bathroom on this level features a large walk in shower and a stunning freestanding bath, creating a luxurious and relaxing space. Also on this level is an ideal dressing room, offering ample space for wardrobes and storage.
On the lower section of the landing you will find another good sized bedroom which offers excellent versatility. Adjacent to this is an additional bathroom, again fitted with both a bath and shower, providing excellent convenience for family living.
The top floor of the property is home to the final bedroom, a lovely and private space at the top of the house, perfect as a guest bedroom, teenager's retreat or additional living area.
Externally, the property continues to impress. Double doors from both the kitchen and office open onto a decking area, creating the perfect outdoor seating space for relaxing or entertaining. Just outside the kitchen doors are stairs leading down to the cellar, which provides three good sized storage rooms. Steps also lead down towards the rear of the garden where you will find a raised lawn area along with a paved section, offering another excellent spot for outdoor seating.
The property also benefits from full access to the garage from both the rear garden and the front driveway. The front driveway itself is particularly impressive, providing ample parking and leading all the way to the garage, while electric front gates add both privacy and security.
Ideally located just a short walk and drive from both Southport Town Centre and Birkdale Village, the property is perfectly positioned to enjoy a wide range of popular restaurants, cafés, local shops and amenities. Highly regarded primary and secondary schools are also within close proximity, making this a fantastic choice for families.
Leave Bailey Estates Birkdale office and head down through the village. Continue over the train tracks and both sets of traffic lights into Weld Road. On arrival at Westcliffe Road junction turn right and continue to the very end. This property is located on the left hand side.
Living Room
19' 0'' x 16' 11'' (5.8m x 5.17m)
Lounge
15' 10'' x 20' 2'' (4.84m x 6.17m)
Kitchen
13' 8'' x 15' 1'' (4.2m x 4.61m)
Dining Room
16' 3'' x 14' 4'' (4.96m x 4.39m)
Office
13' 10'' x 18' 0'' (4.23m x 5.49m)
Shower Room
7' 8'' x 9' 4'' (2.35m x 2.86m)
Utility Room
5' 6'' x 4' 11'' (1.68m x 1.52m)
Bedroom 1
15' 6'' x 16' 10'' (4.73m x 5.15m)
Bedroom 2
14' 0'' x 16' 0'' (4.27m x 4.9m)
Bedroom 3
14' 11'' x 15' 2'' (4.55m x 4.63m)
Bedroom 4
12' 2'' x 9' 11'' (3.72m x 3.04m)
Bathroom
13' 0'' x 14' 7'' (3.97m x 4.47m)
Dressing Room
10' 9'' x 6' 1'' (3.28m x 1.87m)
Bathroom
13' 1'' x 7' 10'' (4m x 2.39m)
Bedroom 5
14' 4'' x 17' 11'' (4.38m x 5.47m)
Storage 1
15' 3'' x 15' 1'' (4.67m x 4.62m)
Storage 2
16' 0'' x 15' 3'' (4.88m x 4.67m)
Storage 3
10' 11'' x 6' 7'' (3.34m x 2.02m)

Agent Statistics (Based on 394 Reviews) :