The UK's Largest Customer Review Website for the Property Industry
The UK's Largest Customer Review Website for the Property Industry
Back to Property Listings
West Pennard, Glastonbury
A splendid Georgian House in mature grounds in this popular village. Not listed & PP to extend.
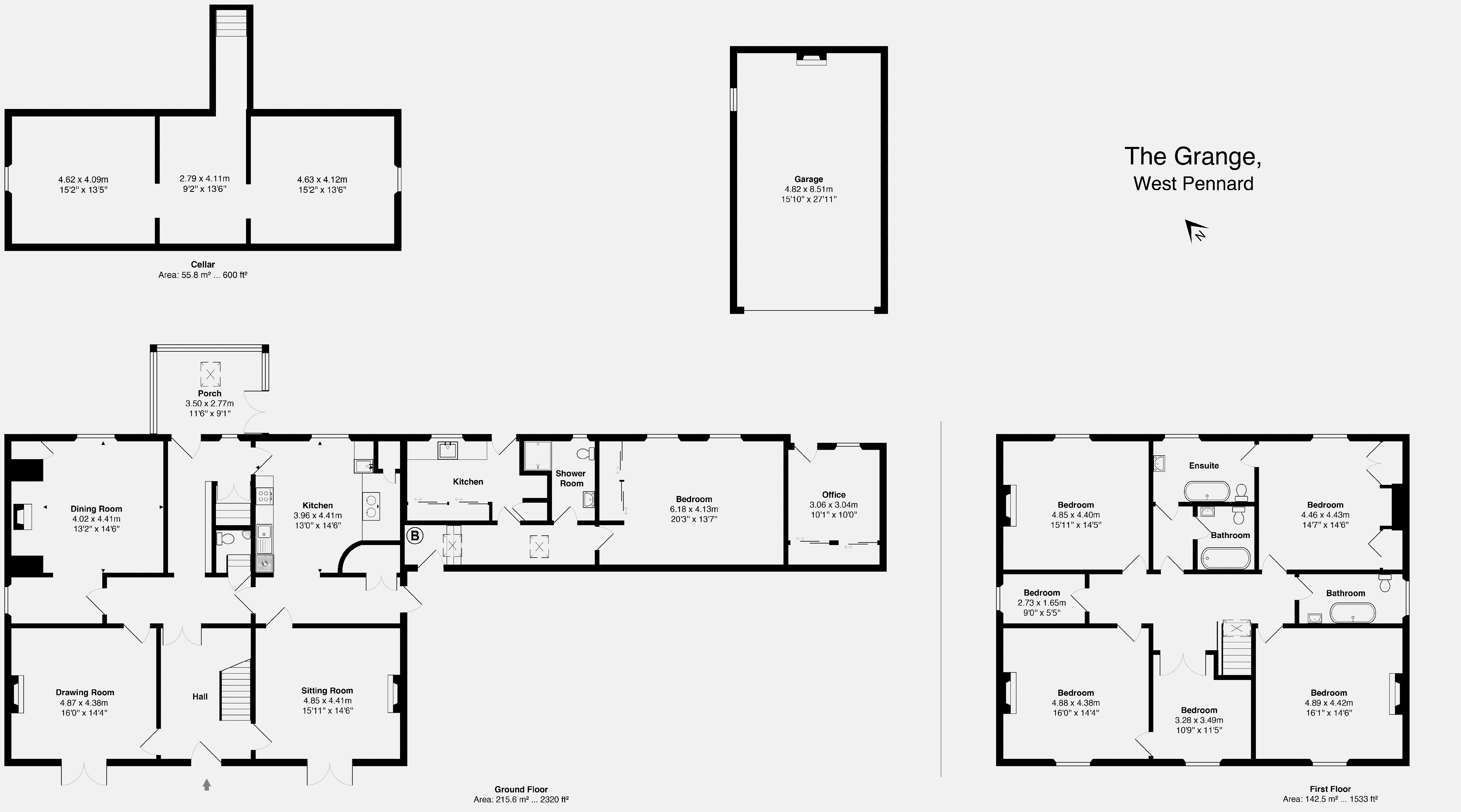
THE GRANGE, NEWTOWN, WEST PENNARD, GLASTONBURY, BA6 8NL
Summary
A charming Georgian house (not listed) standing in mature grounds in a quiet setting in his popular village under three miles from Glastonbury. The house has generous accommodation including a hall, cloakroom, three reception rooms, kitchen, porch, 5 bedrooms, 3 bathrooms plus cellars and a self-contained east wing with a bed-sitting room, shower room, kitchen and office. Detached garage block.The grounds of around an acre are partly walled, provide great privacy.N.B. planning consent has been obtained to substantially extend the property and to restore and improve the front drive.
Location
West Pennard is one of the most popular villages in the area, being close to both Glastonbury and Wells. It is within an easy drive of Millfield Prep and Senior Schools, Bruton and Castle Cary (rail link to London Paddington). The village has a church, primary school, an excellent pub and an active village hall. The Grange is in the heart of the village, well away from busy roads and enjoys great privacy.
Description
The Grange is a handsome house facing southwest across the gardens and is approached by a rear drive to a courtyard with access into the house with a large outer porch.The elegant accommodation is spacious and well proportioned. It has been little changed for many years whilst the owners have been designing and obtaining planning consents for extensive works. As such the house retains many period details including flagstone flooring, original floorboards, fireplaces together with good quality architraves, doors and window shutters.
Accommodation
The front hall at the centre of the house has a fine staircase and double doors to inner hallways. There are three reception rooms, all good sizes, and the drawing room and sitting room have splendid large windows with shutters. All three have fireplaces, with wood burners in the sitting and dining rooms, whilst the drawing room has a classic marble surround.The traditional kitchen has flagstone flooring, sink, cupboards and an Aga. Adjacent are a large outer porch, cloakroom and a staircase to extensive cellars.On the first floor the central landing serves 5 bedrooms, a small 6th bedroom (possible study or box room) and 3 bathrooms. One bedroom (northeast) has a range of fitted wardrobe and can use a bathroom as an en suite room.
South East wing
To the side of the house is a self-contained east wing. This has a hall, bedsitting room, kitchen and shower room. At the end of the building, with separate access is an office.
Outside
The property has a right of way over a side drive which leads into a courtyard flanked by the east wing and a substantial garage.The original front drive leads from the lane which passes the front of the property but has not been used for many years although the gateway remains. This opens to the grounds of around an acre which are mainly lawned with mature trees and shrubs and high stonewalls and hedgers giving great privacy. Plans have been drawn and consent obtained to re-instate the entrance and create a new impressive drive.
Planning consents obtained
Follow link below to full details https://publicaccess.mendip.gov.uk/online-applications/simpleSearchResults.do?action=firstPage
The consents include -
Consents 2023/2059/HSE and 2022/2404/HSE have been obtained -Re-instate the original driveway which will sweep through the grounds on the western side to the north of the house to a courtyard by the garage and to the back drive, entered through double gates set in high walls.Redevelopment of garage block to large 2 storey annexe. A second floor to be added to part of the east wing which will then provide a boot room, laundry 4 bedrooms and 2 bedrooms.Loft conversion, erection of single-storey side extension, single-storey orangery to rear and erection of gate following demolition of existing garage and south east wing .Addition of first floor onto the existing annexe; alterations to the house and construction of a new terrace.
Tenure and other points
Freehold and not listed.Mains water, electricity and drainage. Oil central heating. Council Tax Band G. EPC rating 42 Band (E).
Walks
Within yards of the garden is access to a footpath which is part of a vast network of footpaths through the beautiful Somerset countryside.
About the area
Glastonbury has been a religious center throughout history and back into the times of legends. The Celtic monastery evolved into one of England's wealthiest and most influential abbeys and the town grew up alongside it. Today it's a small but thriving town and a major tourist venue, welcoming thousands of visitors each year. Medieval Glastonbury - designated a conservation area - clusters around the evocative ruins of the Abbey.Just 5 miles from Glastonbury is Wells which is the smallest city in England (population 10,000). Its center is the marketplace (local markets twice a week) surrounded by many medieval buildings including the Cathedral and moated Bishops Palace.
*
Immediately to the south (2 miles) of Glastonbury is the more recent town of Street and these centers provide a huge range of facilities and amenities. There are excellent local schools, and the private sector includes Millfield, Wells Cathedral School, Downside, All Hallows and the Bruton schools. About 12 miles southeast is Castle Cary station with a main rail line to London. Hauser & Wirth contemporary art gallery with popular restaurant and the exceptional Newt in Somerset are both just 14 miles away.For more information on this area in general and individual schools visit our website www.roderickthomas.co.uk and locate this property by price order. Open full details and click on "schools".
Important Notes
Roderick Thomas, their clients and any joint agents state that these details are for general guidance only and accuracy cannot be guaranteed. They do not constitute any part of any contract. All measurements are approximate and floor plans are to give a general indication only and are not measured accurate drawings. No guarantees are given about planning permission or fitness for purpose. No apparatus, equipment, fixture or fitting has been tested. Items shown in photographs are not necessarily included. Buyers must rely on information passed between the solicitors about items included in the sale. Purchasers must satisfy themselves on all matters by inspection or otherwise. VIEWINGS. Interested parties are advised to check availability and current situation prior to travelling to see any property.All viewings are by appointment with the Agents.Roderick Thomas, 1 Priory Road, Wells, BA5 1SR.

Agent Statistics (Based on 1 Reviews) :