The UK's Largest Customer Review Website for the Property Industry
The UK's Largest Customer Review Website for the Property Industry
Back to Property Listings
Wesley Street, Ossett
*NO CHAIN* An ELEGANT four bedroom PERIOD HOME with double garage in a secluded Ossett location offered to the market with NO ONWARDS CHAIN. VIRTUAL TOUR AVAILABLE. EPC rating C70.
Tucked away in a desirable position, this exceptional four-bedroom semi detached period home combines timeless character with well proportioned living spaces. Showcasing charming features such as exposed beams, a spacious and versatile layout, a double garage and an attractive enclosed Yorkshire stone patio. Set within a typical Yorkshire textile mill that has been renovated to the highest standard, serving as a testament to Yorkshire tradition, it perfectly blends heritage with modern comfort.
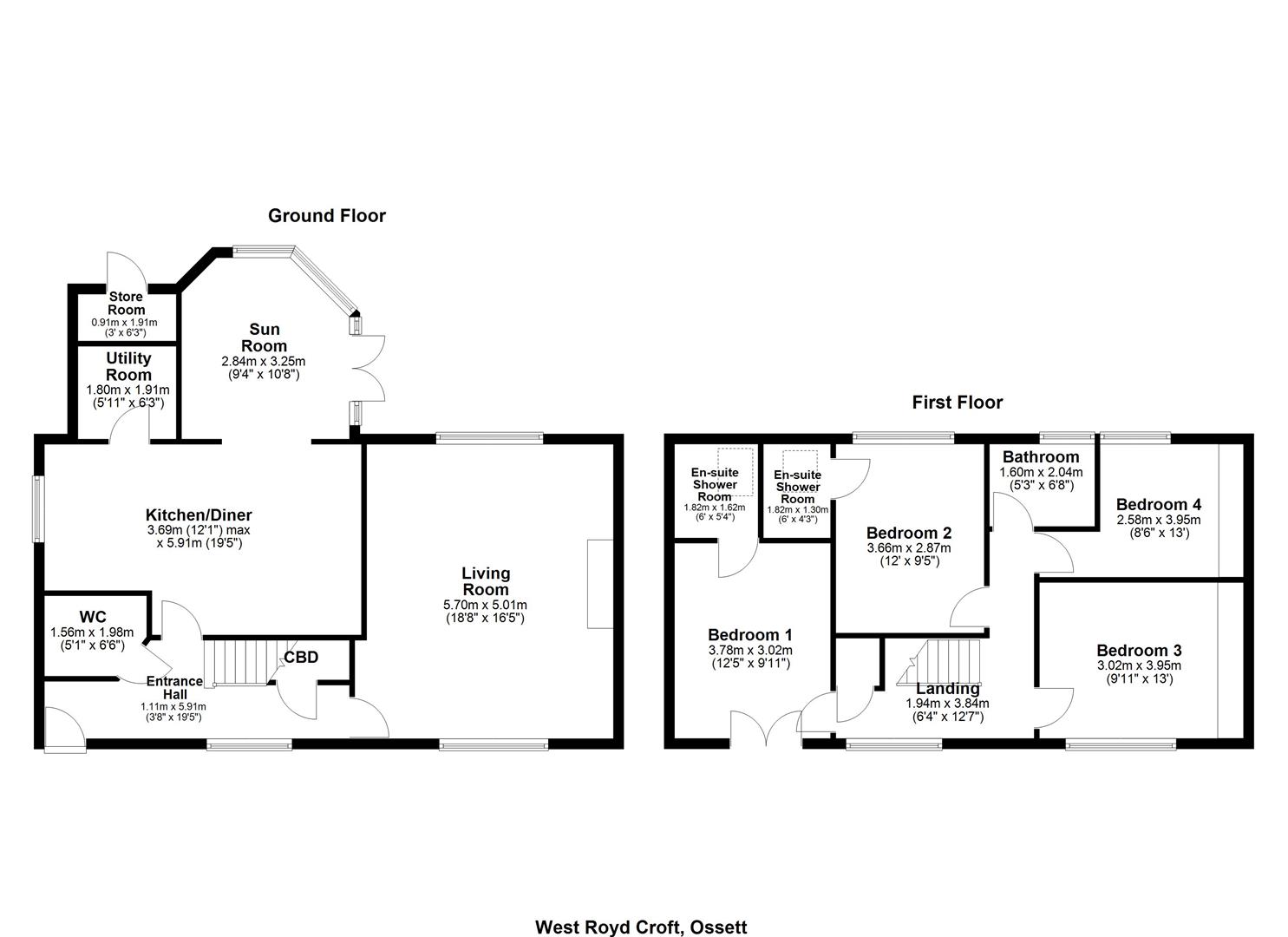
The accommodation is accessed via a welcoming entrance hall leading to a guest cloakroom/w.c., a well-appointed kitchen/diner with separate utility room, a bright sun room, and an inviting living room. To the first floor, the landing gives access to four generously sized bedrooms, two of which benefit from en suite shower rooms, along with a contemporary family bathroom. Externally, the property enjoys a block paved shared driveway leading to a double garage with electric door, power, lighting, water, as well as a Yorkshire stone pathway to the front entrance. There are four reserved parking spaces in the private courtyard. The rear garden boasts a Yorkshire stone patio wrapping around the sun room, complemented by low maintenance pebbled and raised planted borders, all enclosed by timber fencing and a solid wall. A timber door provides access to a useful store unit.
Situated in the highly desirable area of Ossett, the home is ideally placed for a range of local amenities including shops, schools and just a couple of minutes walking distance from Ossett Market Square, regular bus services, with excellent motorway connections for commuters.
Offered for sale with no onward chain, an early viewing is strongly recommended to fully appreciate the quality, charm, and setting of this superb home.
Accommodation -
Entrance Hall - 5.91m x 1.11m (min) x 1.91m (max) (19'4" x 3'7" (m - Solid wooden front entrance door, solid wooden floor, timber double glazed window overlooking the front aspect, exposed beams to the ceiling, inset spotlights, stairs to the first floor landing, central heating radiator and doors to the downstairs w.c., kitchen/diner, understairs storage cupboard and living room.
W.C. - 1.99m x 1.56m (6'6" x 5'1") - Solid wooden floor, low flush w.c., wash basin with tiled splash back, central heating radiator, inset spotlights and extractor fan.
Kitchen/Diner - 3.72m (max) x 2.82m (min) x 5.90m (12'2" (max) x 9 - Range of shaker style wall and base units with marble work surface over, stainless steel sink and drainer with swan neck mixer tap, integrated oven and grill with warming tray and microwave oven, five ring gas hob and cooker hood. Inset spotlights, breakfast bar with wine rack and integrated dishwasher. Central heating radiator, exposed beams to the ceiling, solid wooden floor, timber double glazed window to the side aspect, door to the utility room and feature archway into the sun room.
Utility - 1.80m x 1.91m (5'10" x 6'3" ) - Range of wall and base units with quartz work surface over, space and plumbing for a washing machine, space for a large fridge/freezer, extractor fan and solid wooden floor.
Sun Room - 3.55m x 3.26m (11'7" x 10'8") - Exposed sand stone wall, vaulted pitch sloping ceiling with inset spotlights within, two central heating radiators, solid wooden floor and timber double glazed windows and French doors to the rear garden.
Living Room - 5.01m x 5.78m (16'5" x 18'11") - Timber double glazed windows to the front and rear, two central heating radiators, exposed beams to the ceiling, feature gas fire on a decorative stone hearth with stone interior and detailed surround.
First Floor Landing - Exposed A-frame to the pitch sloping ceiling, timber double glazed window overlooking the front elevation with built in window seat, central heating radiator and doors to four bedrooms, bathroom and overstairs storage cupboard.
Bedroom One - 3.13m x 3.78m (10'3" x 12'4") - UPVC double glazed French doors to a juliet balcony overlooking the front elevation, exposed A-frame to the pitch sloping ceiling, two central heating radiators and door providing access to the en suite shower room.
En Suite Shower Room/W.C. - 1.93m x 1.63m (6'3" x 5'4") - Three piece suite comprising enclosed corner shower cubicle with mixer shower, low flush w.c. and pedestal wash basin. Pitch sloping ceiling with exposed beams, chrome ladder style radiator, extractor fan, UPVC double glazed velux window and shaver socket point.
Bedroom Two - 2.85m x 3.75m (9'4" x 12'3") - Pitch sloping ceiling with exposed beams, timber double glazed window overlooking the rear elevation with built in window seat, central heating radiator and door providing access to the en suite shower room.
En Suite Shower Room/W.C. - 1.37m x 1.92m (4'5" x 6'3") - Three piece suite comprising enclosed corner shower cubicle with mixer shower and jacuzzi style jets, pedestal wash basin and low flush w.c. Chrome ladder style radiator, extractor fan, pitch sloping ceiling with exposed A-frame and UPVC double glazed velux window.
Bedroom Three - 3.12m x 3.02m (10'2" x 9'10") - Three double fitted wardrobes, timber double glazed window overlooking the front elevation with built in window seat, central heating radiator and exposed A-frame to the pitch sloping ceiling.
Bedroom Four - 3.56m (max) x 2.41m (min) x 2.68m (11'8" (max) x 7 - Pitch sloping ceiling with exposed A-frame, timber double glazed window overlooking the rear elevation with built in window seat, central heating radiator, fitted double wardrobe and fitted library shelves with storage cupboards below.
Bathroom/W.C. - 2.04m x 1.60m (6'8" x 5'2") - Three piece suite comprising panelled bath with mixer tap, low flush w.c., pedestal wash basin with shower screen and mixer shower. Timber double glazed window to the rear, ladder style central heating radiator and extractor fan.
Outside - To the front the property is a block paved shared driveway leading to a double driveway in front of the double garage with electric quarter panelled door, power, light and water. There are four reserved parking spaces in the private courtyard. To the front is an attractive Yorkshire stone paved pathway to the front door. To the rear is a Yorkshire stone paved patio area, perfect for entertaining and dining purposes wrapping around the sun room with low maintenance pebbled edge borders and raised planted borders with planted features, surrounded by timber fencing and solid wall. A timber door provides access to a store unit.
Council Tax Band - The council tax band for this property is D.
Floor Plans - These floor plans are intended as a rough guide only and are not to be intended as an exact representation and should not be scaled. We cannot confirm the accuracy of the measurements or details of these floor plans.
Viewings - To view please contact our Ossett office and they will be pleased to arrange a suitable appointment.
Epc Rating - To view the full Energy Performance Certificate please call into one of our local offices.

This property is marketed by

Richard Kendall Estate Agent - Ossett, Ossett, WF5
4.9/5 Rating
(1653) reviews
Agent Statistics (Based on 1653 Reviews) :