The UK's Largest Customer Review Website for the Property Industry
The UK's Largest Customer Review Website for the Property Industry
Back to Property Listings
Wells Road, Glastonbury
Welcoming and elegant detached Victorian house and coach house with large garden and bags of parking within easy reach of Glastonbury High Street. Previously used as a B&B.
65 WELLS ROAD, GLASTONBURY, SOMERSET, BA6 9BY
A superb example of a detached 4 storey Victorian townhouse and Coach House, in an elevated position, with far-reaching views over rooftops to the Polden Hills in the west, plenty of parking and a large lawned garden. Located within easy reach of the High Street and all the facilities in the heart of the vibrant town of Glastonbury.
Summary
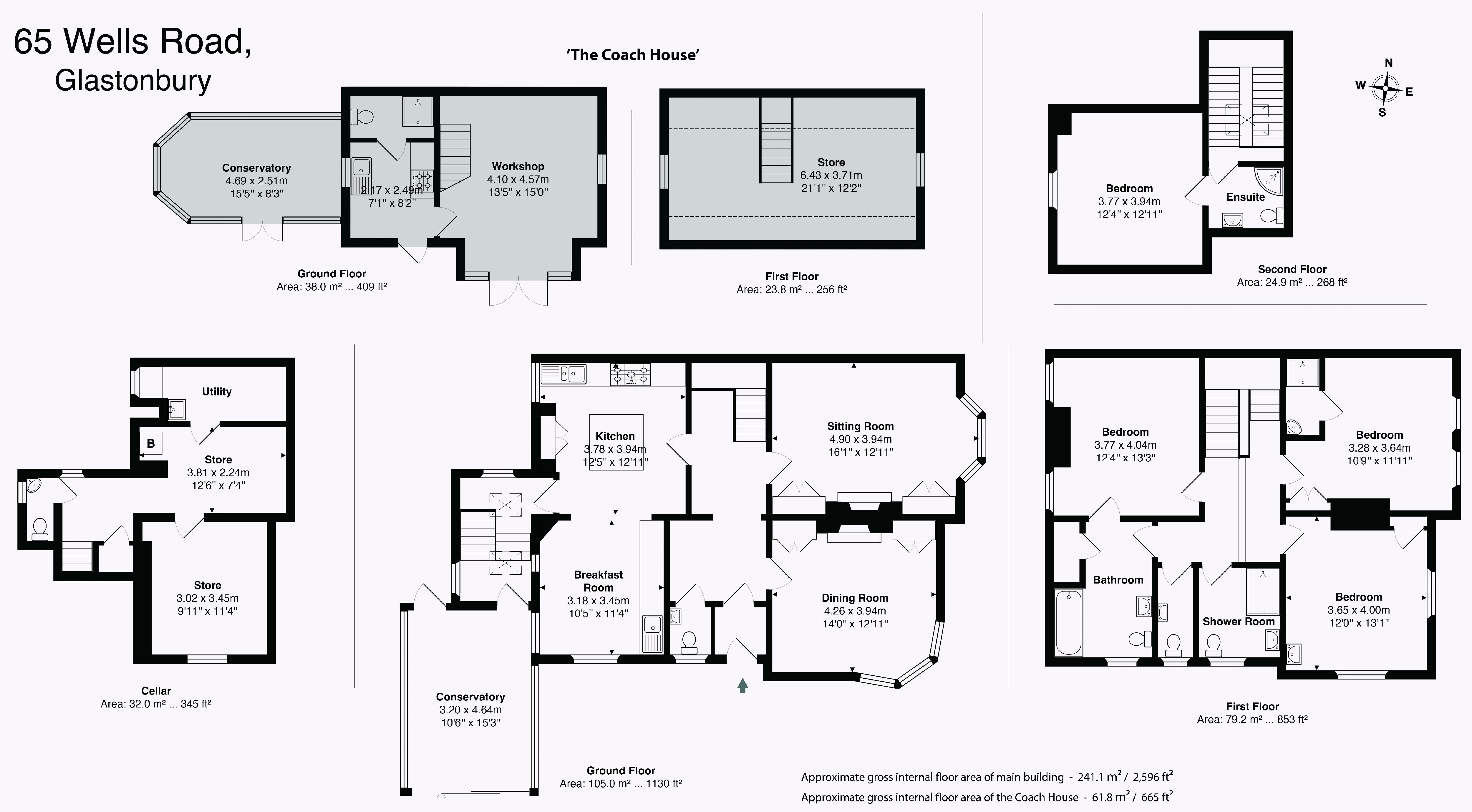
The house has a covered porch, an entrance hall, central hallway, cloakroom, dining room, sitting room, 22ft kitchen/breakfast room, conservatory and stairs to the cellar. In the cellar there is a snug/store, utility room and a further storeroom. On the first and second floor are 4 bedrooms and 4 bathrooms.Outside there is a gated drive, plenty of parking for up to 5 cars and mature gardens to the front, side and rear.The Coach House has a kitchen, shower room and sitting room/workshop on the ground floor and a 21ft second floor in the eaves. There is also an attached conservatory.
Location
Wells Road runs across the top of Glastonbury High Street, dissecting the town from North to South. As its name suggests it was historically the main route to Wells but the A39 now takes most of the traffic away from the centre of the town. The road is leafy and wide and retains a sense of importance. No. 65 is situated less than 500mts from the top of the High Street.Glastonbury is known for its spiritual and historic significance. It also has a vibrant High Street with avarious shops, café's, restaurants and pubs and it has a wide variety of inclusive and welcoming societies and clubs.
Description
A superb Victorian family home that has in recent years been used as a successful B&B. The house is spacious and gracious with high ceilings and plenty of light. Beautifully crafted original features including elegant doors and a very attractive staircase elevate the property above the norm. Apparently built for the owner of the building company there is a sense that this house and the craftsmanship within it mattered.It sits comfortably within a mature plot of approx. 0.3 acre which provides plenty of space to the front, side and rear. The Coach House offers potential.
Accommodation
Steps lead up to an attractive covered porch where the front door opens to an entrance hall. A half-glazed door opens from here to the central hallway. To the left is a downstairs cloakroom and to the right is a spacious dining room with attractive canted, corner bay window and a classic, tiled Victorian fireplace with open fire. The sitting room next door is of similar proportions with an east facing bay window and a charming fireplace. In the alcoves to the side of the chimney breast there are painted timber cupboards and shelves. Both rooms have exposed, pine floorboards.
*
Across the hall the kitchen/breakfast room has a working area at one end, with a double sink fitted units, granite type composite worksurface, space for a range cooker, dishwasher and fridge/freezer. A central island provides more worksurface and storage and in addition, there are fitted units along the side of the breakfast room and a second sink.This is a bright room with large sash widows to the south and west. A door opens to the rear hallway where stone steps lead down to the conservatory and cellar. The conservatory has doors to the driveway and the 3 rooms in the cellar are currently used as storage, a utility space and a snug.
**
On the first floor there is a principal bedroom with far reaching views, an ensuite bathroom and large linen cupboard along with 2 further bedrooms, one with an ensuite shower room and a separate w.c. and a shower room. The 4th bedroom is on the second floor with an ensuite shower room.
Outside
A gated, tarmac drive leads to the west side of the house. In front of the house there are well established gardens with mature trees and hedges and space for a car to park. To the south a small pond and further parking. Beyond the driveway, a path leads beside the Coach House past mature trees and shrubs to a large lawned garden which stretches to the west boundary where there is a summer house and a timber shed. To the south is a kitchen garden and the whole area is surrounded by a wide variety of shrubs, trees and floral beds and enjoys great privacy.
Coach House
An appealing redbrick building formally thought to be a stable and coach house, more recently used as a dwelling. A door opens to a kitchen with units and utilities. To the rear is a shower and w.c.. The original stable doorway leads to the sitting room/workshop which has double glazed French doors to the drive and a window to the east. Stairs rise to the second floor which is open plan with a window at either end. To the west there is an attached conservatory.
Tenure and other points
Freehold. Not listed. Mains gas, electricity, water and drainage. Council Tax band E. EPC E.Tree preservation orders on two large beech trees.
Directions
From Wells take the A39 to Glastonbury. At the Tin Bridge roundabout take the first exit onto Wells Road. Follow this for approx. 1 mile and No. 65 will be found on your right by a large beech tree.What3words:///quick.sing.education
About the area
Glastonbury has been a religious centre throughout history and back into the times of legends. The Celtic monastery evolved into one of England's wealthiest and most influential abbeys and the town grew up alongside it. Today it's a small but thriving town and a major tourist venue, welcoming thousands of visitors each year. Medieval Glastonbury - designated a conservation area - clusters around the evocative ruins of the Abbey.Just 5 miles from Glastonbury is Wells which is the smallest city in England (population 10,000). Its centre is the marketplace (local markets twice a week) surrounded by many medieval buildings including the Cathedral and moated Bishops Palace.
****
Immediately to the south (2 miles) of Glastonbury is the more recent town of Street and these centres provide a huge range of facilities and amenities. There are excellent local schools and the private sector includes Millfield, Wells Cathedral School, Downside, All Hallows and the Bruton schools. About 12 miles south east is Castle Cary station with a main rail line to London.For more information on this area in general and individual schools visit our website www.roderickthomas.co.uk and locate this property by price order. Open full details and click on "schools".
Important Notes
Roderick Thomas, their clients and any joint agents state that these details are for general guidance only and accuracy cannot be guaranteed. They do not constitute any part of any contract. All measurements are approximate and floor plans are to give a general indication only and are not measured accurate drawings. No guarantees are given with regard to planning permission or fitness for purpose. No apparatus, equipment, fixture or fitting has been tested. Items shown in photographs are not necessarily included. Buyers must rely on information passed between the solicitors with regard to items included in the sale. Purchasers must satisfy themselves on all matters by inspection or otherwise. VIEWINGS. Interested parties are advised to check availability and current situation prior to travelling to see any property.All viewings are by appointment with the Agents.Roderick Thomas, 1 Priory Road, Wells, BA5 1SR.

Agent Statistics (Based on 1 Reviews) :