The UK's Largest Customer Review Website for the Property Industry
The UK's Largest Customer Review Website for the Property Industry
Back to Property Listings
Wells Road, Bath
Unfurnished first floor flat on Wells Road, 5 minute walk into Bath city centre with private entrance and courtyard with storage for bikes. Will need to provide white goods. Available immediately to single, couple, or two sharers.
This two bedroom flat is neutrally decorated throughout and is offered unfurnished. Available immediately, it would suit a single person, couple, or two sharers looking to be close to Bath city centre. Professionals or students can be considered.
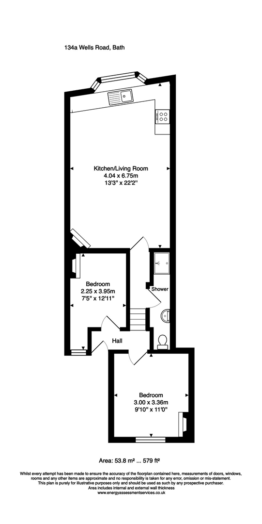
You enter the property via a secure locked gate on Wells Road, leading through to a side gate with access to the flat and a courtyard with shed, which tenants are welcome to make use of for keeping bikes or sitting outside in the summer. Ascending a staircase to the first floor, you enter to a hallway. There are two bedrooms at the back of the property set away from the street, each with a charming decorative fireplace. The shower room has a cubicle shower, WC, and basin. The living room is at the front of the property, and comprises of a large open plan reception area with decorative fireplace, space for dining, and brand new kitchen with a large bay window overlooking Wells Road.
Bear Flat was voted 'one of the best places to live in the UK in 2020' by The Times Newspaper. They commented 'High above the tourists in the city this village plateau is heaven for young families. It's a 10-minute downhill walk to Bath Spa station and a couple of minutes more to the city centre. It has a Co-op, a pharmacy and a range of independent shops and eateries. You can settle in, throw yourself into the lively local community and enjoy unbeatable views from the playground in Alexandra Park.' We couldn't agree more as Bear Flat is an ideal location for those who work in the city of Bath or are looking to commute to Bristol or London. Both Bath spa and Oldfield Park train stations are within walking distance from the property. Locally there is an abundance of amenities providing everything that one might need; cafes, restaurant, barbers, florist, Co-Op, newsagents, pharmacy, deli, wine merchant and public house. In addition the delightful nearby Moorland road hosts a plethora of shops, supermarket and renowned family butcher. Recreationally there is Alexandra Park, with quite possibly the best views over the city, Entry Hill golf club and Baskervilles gymnastic centre. Local schools include Beechen Cliff, Ralph Allen, Hayesfield Girls school, Moorlands and Widcombe Infant and junior schools.

Agent Statistics (Based on 99 Reviews) :