The UK's Largest Customer Review Website for the Property Industry
The UK's Largest Customer Review Website for the Property Industry
Back to Property Listings
Wellington Way, Renfrew, PA4
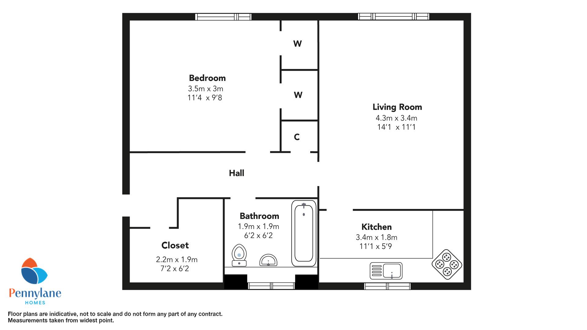
The property is accessed via a welcoming entrance hallway. The spacious lounge, to the front of the property, has a large window flooding the room with natural light and access to the kitchen, to the rear. The kitchen itself comprises a combination of wall and floor mounted units with ample appliance spaces. The spacious double bedroom has the added benefit of built in cupboards offering fantastic storage. The modern family bathroom comprises a three piece white suite with shower over the bath and glass shower screen as well as under sink vanity unit. There is a large walk in storage room off the hallway with a winow, which would make a fantastic home office.
The property benefits from gas central heating and double glazing throughout. Externally, there are spacious communal garden grounds to the rear and on street parking is available nearby.
Wellington Way is a popular residential location within the Arkleston area of Renfrew with all local amenities available within easy reach. The area`s close proximity to the M8 Motorway make this a popular location for commuters with easy access to Glasgow City Centre and Glasgow Airport.
Notice
Please note we have not tested any apparatus, fixtures, fittings, or services. Interested parties must undertake their own investigation into the working order of these items. All measurements are approximate and photographs provided for guidance only.
Council Tax
Renfrewshire Council, Band A
Utilities
Electric: Mains Supply
Gas: Mains Supply
Water: Mains Supply
Sewerage: Mains Supply
Broadband: Unknown
Telephone: Unknown
Other Items
Heating: Gas Central Heating
Garden/Outside Space: Yes
Parking: No
Garage: No

Agent Statistics (Based on 197 Reviews) :