The UK's Largest Customer Review Website for the Property Industry
The UK's Largest Customer Review Website for the Property Industry
Back to Property Listings
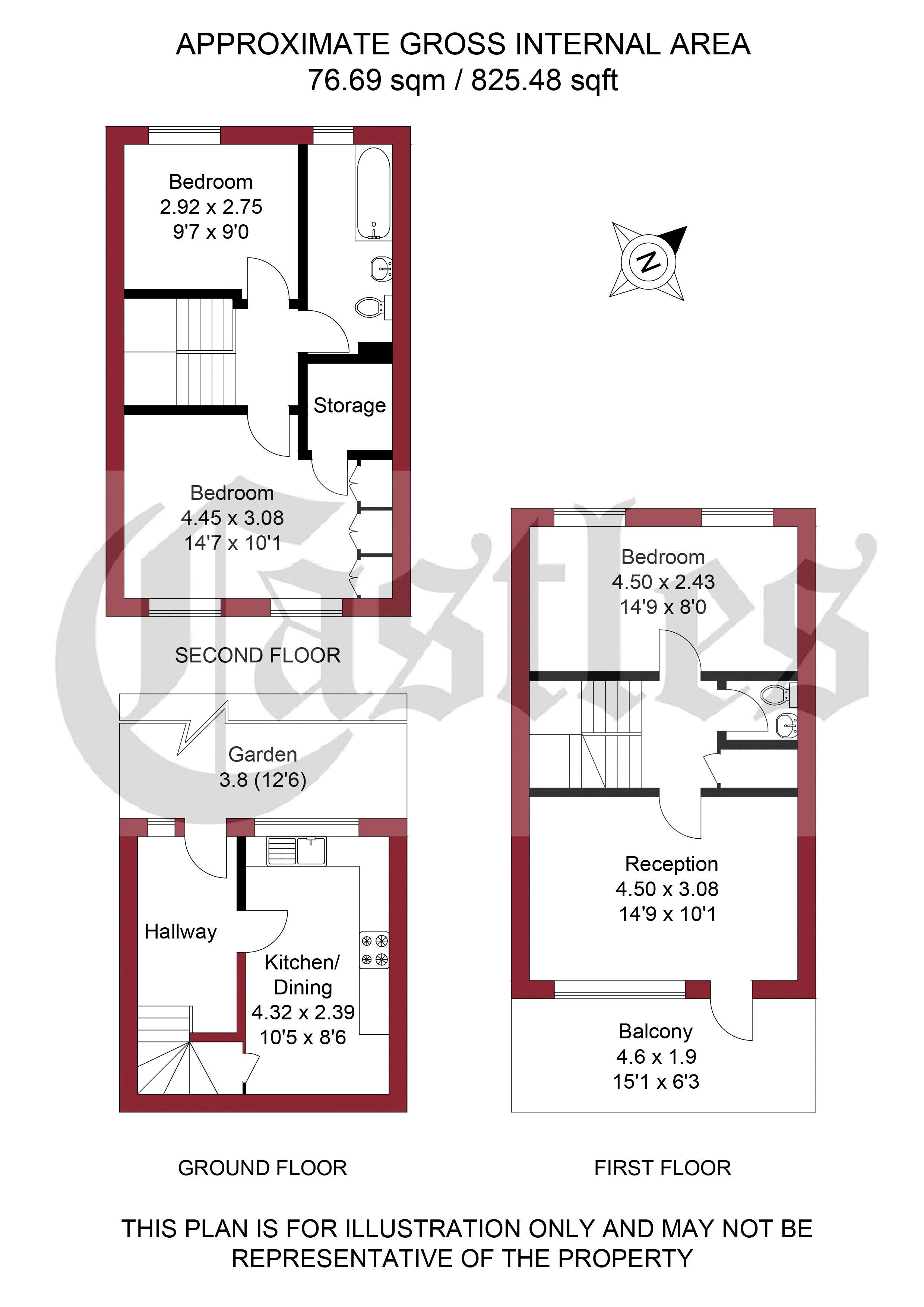
Waterloo Close, London
Located within a short walk of Chatsworth Road and Lower Clapton Road is this wonderful three bedroom maisonette. The property is arranged over three floors and boasts kitchen/diner on the ground floor, large lounge with access to private balcony, bedroom and wc to the first floor and two further bedrooms and family bathroom on the second floor. Located within walking distance of both Homerton and Clapton overground stations.

This property is marketed by

Castles Estate Agents (London) - Hackney, London, E5
5/5 Rating
(939) reviews
Agent Statistics (Based on 939 Reviews) :