The UK's Largest Customer Review Website for the Property Industry
The UK's Largest Customer Review Website for the Property Industry
Back to Property Listings
Vulcan Close, Beckton, E6 5NY
Bryants are proud to present this charming one-bedroom leasehold ground floor flat offering a combination of indoor comfort and outdoor space, perfect for first-time buyers, downsizers, or investors. Tucked away in a quiet residential area, the property benefits from a generously sized garden, ideal for entertaining, gardening, or simply relaxing in the open air.
The flat features a bright and airy living room, a good sized kitchen with ample storage, a spacious bright and airy double bedroom, and a modern bathroom that includes a three-piece bathroom suite, with adequate storage space. The large windows throughout provide plenty of natural light, creating a warm and welcoming atmosphere.
The property also offers secure off-street parking an increasingly valuable asset in this location.
Located within easy reach of Beckton DLR Station, allowing for convenient transport links into the City and Canary Wharf, as well as convenient access to local amenities, green spaces, and retail parks.
Contact Bryants today to arrange a viewing.
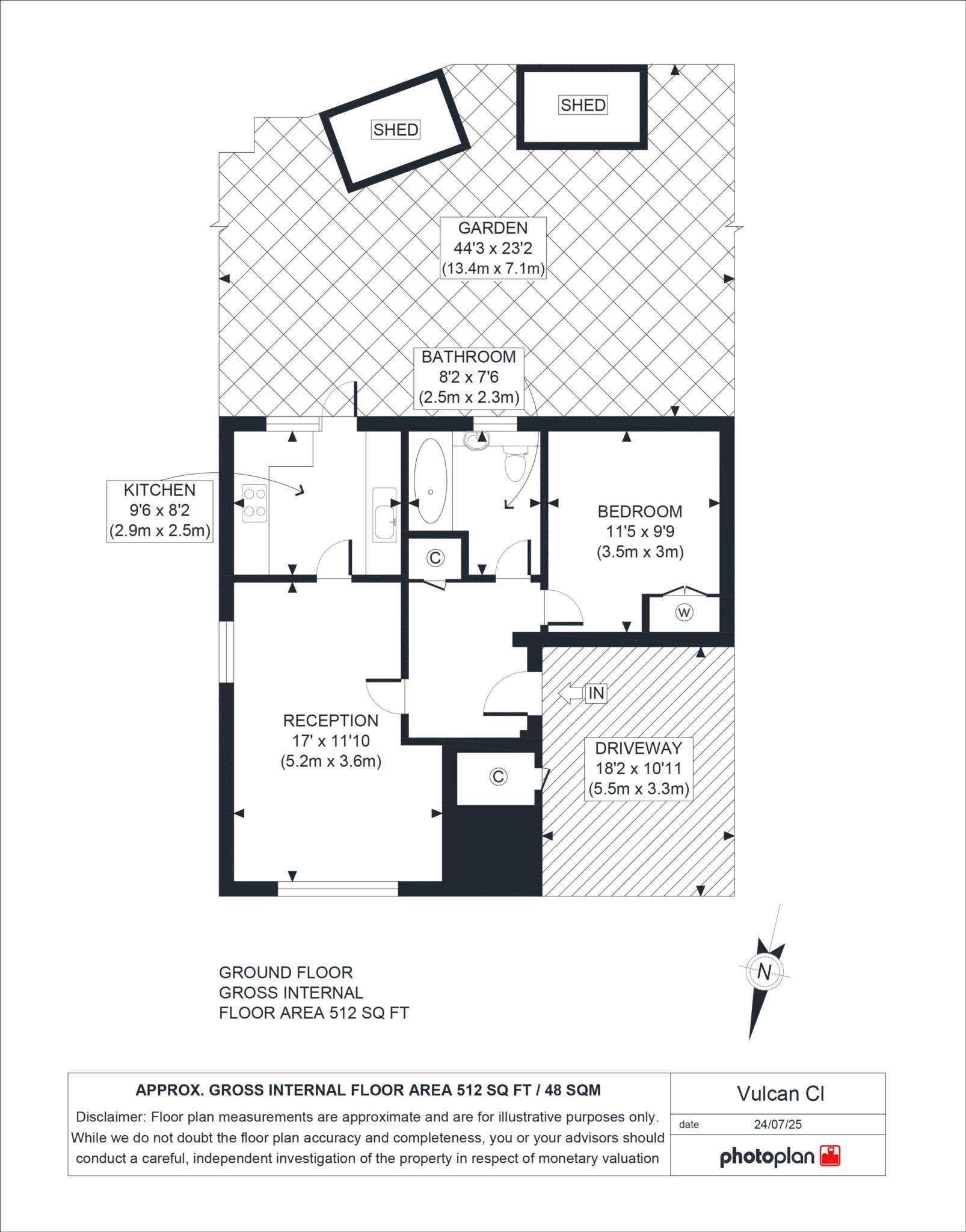
Reception - 17'0" (5.18m) x 11'10" (3.61m)
Kitchen - 9'6" (2.9m) x 8'2" (2.49m)
Bathroom - 8'2" (2.49m) x 7'6" (2.29m)
Bedroom - 11'5" (3.48m) x 9'9" (2.97m)
Driveway - 18'2" (5.54m) x 10'11" (3.33m)
Garden - 44'3" (13.49m) x 23'2" (7.06m)
what3words /// export.desire.relate
Notice
Please note we have not tested any apparatus, fixtures, fittings, or services. Interested parties must undertake their own investigation into the working order of these items. All measurements are approximate and photographs provided for guidance only.
Council Tax
London Borough Of Newham, Band B
Utilities
Electric: Mains Supply
Gas: Mains Supply
Water: Mains Supply
Sewerage: Mains Supply
Broadband: Unknown
Telephone: Unknown
Other Items
Heating: Not Specified
Garden/Outside Space: No
Parking: No
Garage: No

Agent Statistics (Based on 13 Reviews) :