The UK's Largest Customer Review Website for the Property Industry
The UK's Largest Customer Review Website for the Property Industry
Back to Property Listings
Vansittart Drive, Exmouth
Offered for sale in immaculate condition throughout, this three bedroom mid terraced house benefits from a good sized, southerly facing rear garden and a nearby garage.
The property features gas central heating (via a combi boiler) and uPVC double glazing.
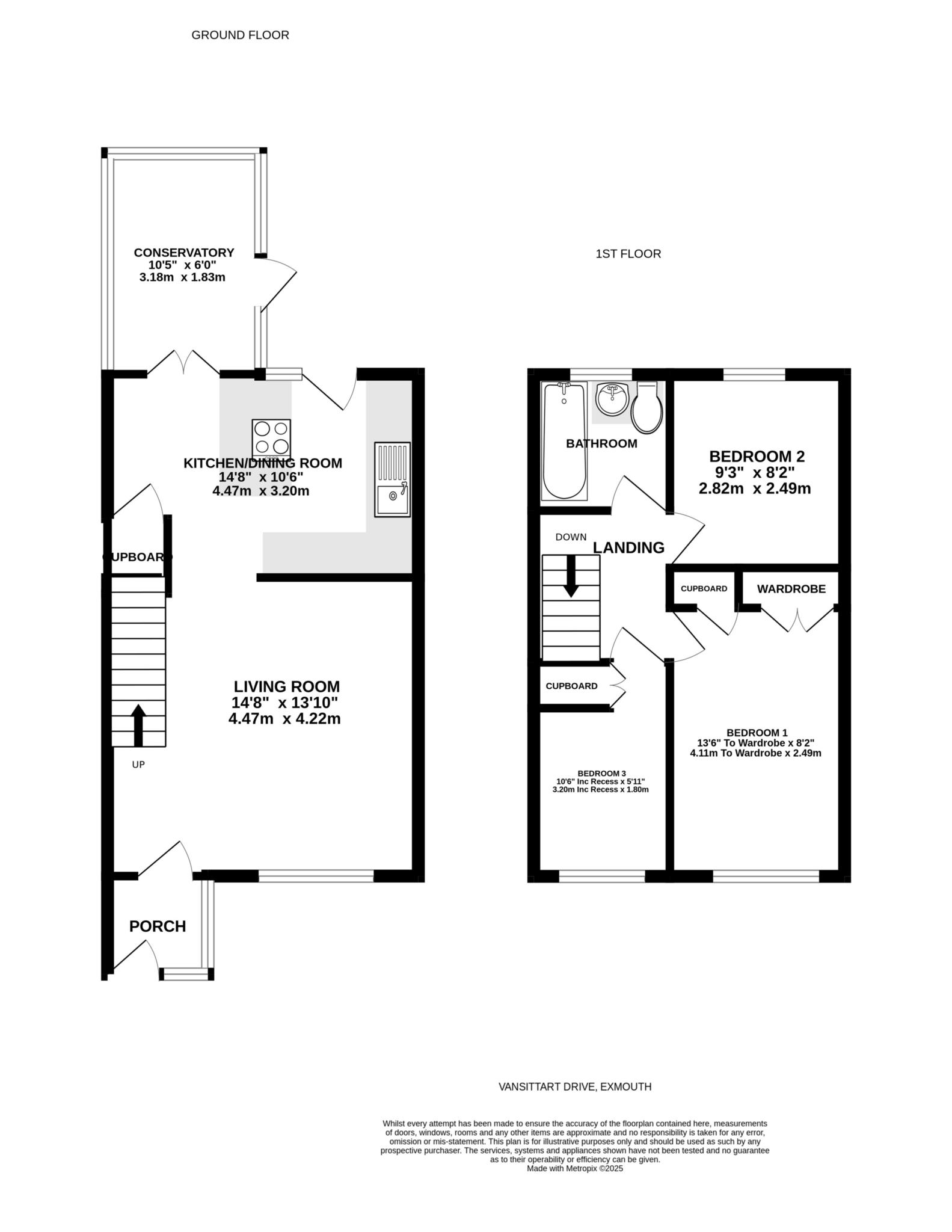
The ground floor comprises an entrance porch, living room, modern fitted kitchen/dining room, and a uPVC double glazed conservatory. On the first floor, there are three bedrooms and a modern fitted bathroom.
There are ample parking opportunities in the area, including in front of the garage. Conveniently located for Brixington shops and the primary school, this property would make an ideal family home.
Accommodation
Ground Floor
Step up to composite front entrance door leading to:
Entrance Porch
Obscure uPVC double glazed windows to front and side. Wall mounted electric trip switch fuse box. Half glazed door leading to:
Living Room - 14'5" (4.39m) x 13'10" (4.22m)
uPVC double glazed window to front. Staircase rising to first floor. Wall mounted electric fire. Radiator. Engineered Oak flooring. Smoke alarm. Wall mounted central heating thermostat. Open to:
Kitchen / Dining Room - 14'8" (4.47m) x 10'6" (3.2m)
uPVC double glazed external door leading to rear garden with uPVC double glazed window adjacent. Good range of modern fitted cupboard and drawer storage units with roll edged work surfaces and tiled splash back`s. Stainless steel single bowl sink and drain unit with mixer tap. Built - in slimline dishwasher, integrated fridge and freezer. Space and plumbing for washing machine. Radiator. Useful under stairs storage cupboard. Wall mounted gas fired Combi boiler that supplies the central heating and domestic hot water. Engineered Oak flooring to dining area. uPVC double glazed doors leading to:
Conservatory
uPVC double glazed windows to rear and side on rendered dwarf brick walls. uPVC double glazed external door to side that leads to rear garden. Radiator. Laminate flooring.
First Floor
Landing
Access to insulated and part boarded loft space via trap door with ladder. Doors leading to:
Bedroom 1 - 13'6" (4.11m) To Wardrobe x 8'2" (2.49m)
uPVC double glazed window to front. Built in double wardrobe. Useful linen storage cupboard with slatted shelving. Radiator.
Bedroom 2 - 9'3" (2.82m) x 8'1" (2.46m)
uPVC double glazed window to rear. Radiator.
Bedroom 3 - 10'6" (3.2m) Into Recess x 5'11" (1.8m)
uPVC double glazed window to front. Useful bulkhead storage cupboard. Radiator.
Bathroom
Obscure uPVC double glazed window to rear. Modern fitted white suite of panelled bath with thermostatically controlled shower unit over, including rainfall Waterhead, with tiling to ceiling height. Concealed cistern WC. Vanity wash hand basin. Heated towel rail. Extractor fan. Inset ceiling lights.
Externally
The property enjoys easy to maintain gardens. The Front Garden is laid to patio with pathway leading to front entrance door. External cupboard giving access to the gas and electric metres.
Southerly Facing Rear Garden
The property enjoys a larger than average, Southerly facing, enclosed and easy to maintain Rear Garden which consists of a patio area immediately adjacent the property with a further decking area, both being ideal for outdoor dining and sitting during the fine weather. The remainder of the gardens are then laid to artificial grass and stone chippings. Timber panelled fenced boundaries. Outside water tap. Outside power points. Rear pedestrian access via timber garden gate. Close by to the property is:
Garage - 16'10" (5.13m) x 8'3" (2.51m)
Up and over door front. Off road parking immediately to the front.
Tenure
The property is FREEHOLD
Services
All mains services are connected. The property is on a water meter. Council Tax Band C
Mortgage Assistance
We are pleased to recommend Meredith Morgan Taylor, who would be pleased to help no matter which estate agent you finally buy through. For a free initial chat please contact us on 01395 222350 to arrange an appointment
Your home may be repossessed if you do not keep up repayments on your mortgage
Meredith Morgan Taylor Ltd is an appointed representative of The Openwork Partnership, a trading style of Openwork Ltd which is authorised and regulated by the Financial Conduct Authority (FCA).
Agents Note
These are draft particulars and are awaiting vendors verification
Directions
From our prominent Town Centre office, proceed out of town along Marine Way and into Exeter Road. Take a right hand turning into Hulham Road signposted Honiton and Ottery St Mary. Proceed over the roundabout and take the next turning right into Marley Road. Take the 5th turning on the right into Vansittart Drive. As the road benda around to the left, the footpath to this property is on the right hand side..
Notice
Please note we have not tested any apparatus, fixtures, fittings, or services. Interested parties must undertake their own investigation into the working order of these items. All measurements are approximate and photographs provided for guidance only.
Utilities
Electric: Mains Supply
Gas: Mains Supply
Water: Mains Supply
Sewerage: Mains Supply
Broadband: None
Telephone: None
Other Items
Heating: Gas Central Heating
Garden/Outside Space: Yes
Parking: Yes
Garage: Yes

Agent Statistics (Based on 735 Reviews) :