The UK's Largest Customer Review Website for the Property Industry
The UK's Largest Customer Review Website for the Property Industry
Back to Property Listings
Valley Way, Exmouth
Offered for sale with NO ONWARD CHAIN, this beautifully renovated 3 bedroom detached bungalow is presented in excellent condition and benefits from a generous Southerly facing rear garden.
Having been comprehensively updated by the current owners, the property features extensive improvements including full re-plastering, re-wiring, re-plumbing, brand new floor coverings throughout, new central heating, new uPVC double glazing, new internal doors and tasteful neutral d?cor.
The well appointed accommodation comprises a bright living room with French doors opening onto the rear garden, a brand new fitted kitchen/dining room complete with integrated appliances, 3 well proportioned bedrooms, a stylish newly fitted family bathroom/WC and an additional cloakroom/WC.
Externally, the property offers an attached single garage and a brick-paved driveway providing ample off-road parking. The generous rear garden enjoys a sunny southerly aspect, ideal for outdoor entertaining and relaxation.
Being offered to the market for the first time since its construction in 1980, this is a rare opportunity to acquire a fully modernised bungalow in move-in ready condition. Early viewing is highly recommended.
Description
Offered for sale with NO ONWARD CHAIN, this beautifully renovated 3 bedroom detached bungalow is presented in excellent condition and benefits from a generous Southerly facing rear garden.
Having been comprehensively updated by the current owners, the property features extensive improvements including full re-plastering, re-wiring, re-plumbing, brand new floor coverings throughout, new central heating, new uPVC double glazing, new internal doors and tasteful neutral d?cor.
The well appointed accommodation comprises a bright living room with French doors opening onto the rear garden, a brand new fitted kitchen/dining room complete with integrated appliances, 3 well proportioned bedrooms, a stylish newly fitted family bathroom/WC and an additional cloakroom/WC.
Externally, the property offers an attached single garage and a brick-paved driveway providing ample off-road parking. The generous rear garden enjoys a sunny southerly aspect, ideal for outdoor entertaining and relaxation.
Being offered to the market for the first time since its construction in 1980, this is a rare opportunity to acquire a fully modernised bungalow in move-in ready condition. Early viewing is highly recommended.
Accommodation
Step up to uPVC double glazed front entrance door leading to:
Entrance Porch
uPVC double glazed window to front. Tiled flooring. Hardwood door with obscure glazed panes to side leading to:
Entrance Hall
Radiator. Wall mounted central heating thermostat. Smoke alarm. Inset ceiling lights. Useful storage cupboard that houses the newly fitted, gas fired Combi boiler that supplies the central heating and domestic hot water. Access to insulated loft space. Brand new fitted carpets. Doors leading to all rooms.
Cloakroom
Obscure uPVC double glazed window to side. Brand new fitted white suite of low level WC and wall mounted wash hand basin. Tiled flooring.
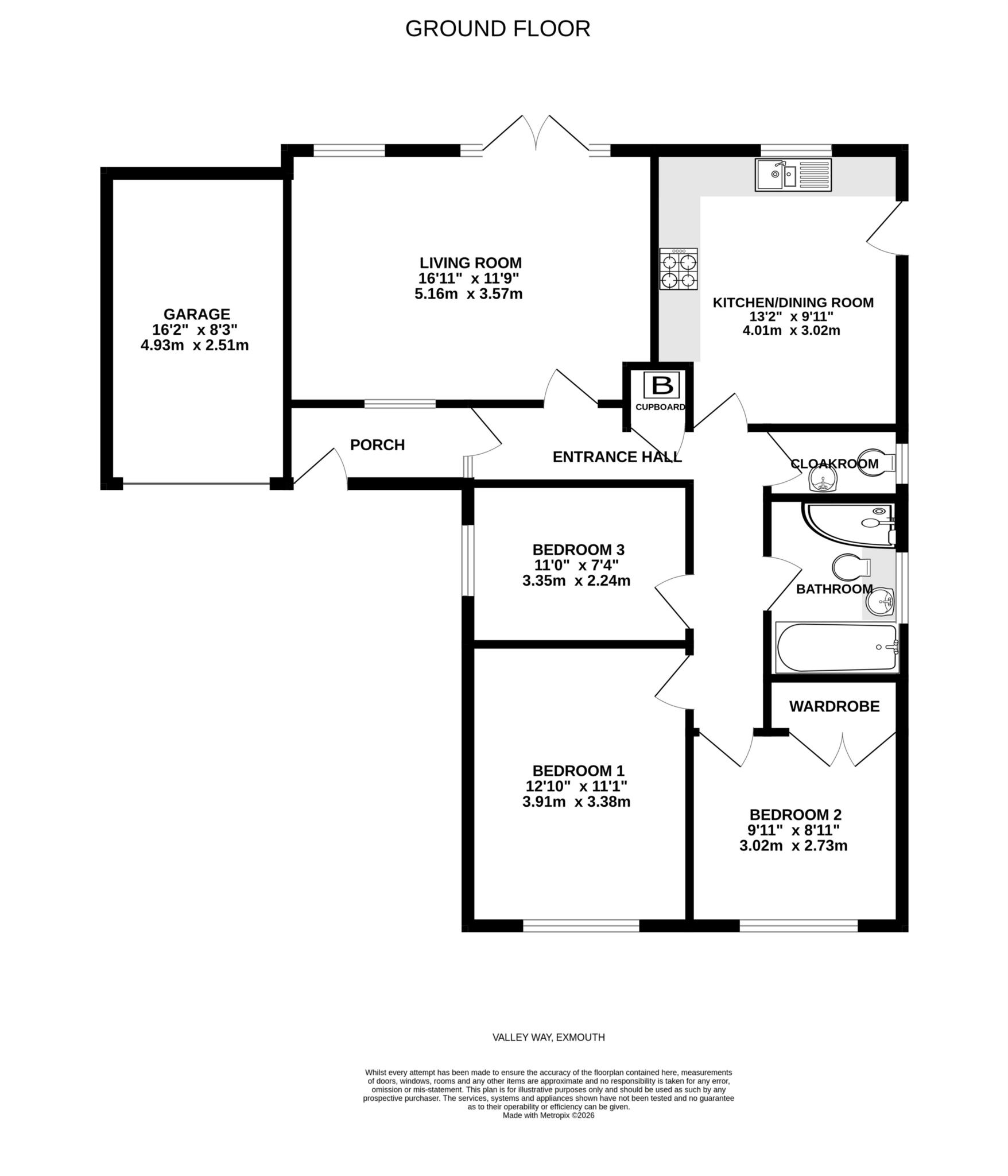
Living Room - 16'11" (5.16m) x 11'9" (3.58m)
uPVC double glazed French doors leading to rear garden with uPVC double glazed window to rear and uPVC double glazed window to front, overlooking the entrance porch. Radiator. Inset ceiling lights. Smoke alarm. Brand new fitted carpet.
Kitchen / Dining Room - 13'2" (4.01m) x 9'11" (3.02m)
uPVC double glazed external door to side leading to rear garden and UPVC double glazed window to rear. Good range of brand new fitted cupboard and drawer storage units with roll edged work surfaces and matching up stands. Stainless steel one and a half bowl sink with single drainer unit and mixer tap. Brand new, built - in 4 ring gas hob with electric oven below and filter hood above. Brand new integrated dishwasher and washing machine. The freestanding fridge freezer in situ plus dining table with 4 chairs are included in the sale. Radiator. Smoke alarm. Inset ceiling lights. Extractor fan.
Bedroom 1 - 12'10" (3.91m) x 11'1" (3.38m)
uPVC double glazed window to front. Radiator. Brand new fitted carpet.
Bedroom 2 - 9'11" (3.02m) x 8'11" (2.72m)
uPVC double glazed window to front. Radiator. Built - in double wardrobe. Brand new fitted carpet.
Bedroom 3 - 11'0" (3.35m) x 7'4" (2.24m)
uPVC double glazed window to side. Radiator. Brand new fitted carpet.
Bathroom
Obscure uPVC double glazed window to side. Brand new fitted white suite of panelled bath, corner shower cubicle with thermostatically controlled shower unit and tiling to ceiling height, concealed cistern WC and vanity wash hand basin. Heated towel rail. Inset ceiling lights. Tiled flooring. Extractor fan.
Externally
To the front of the property is an extensive and newly laid brick paved driveway providing ample off road parking for motor vehicles and caravans, with the remainder of the garden being laid to shingle. Outside lighting. Outside water tap.
Garage - 16'2" (4.93m) x 8'3" (2.51m)
Up and over door to front. Under eaves storage. The tumble dryer in situ is included in the sale. Power and light connected.
Rear Garden
The property has a Southerly facing and landscaped rear garden, which has a newly laid Flagstone patio area immediately adjacent the property, being ideal for outdoor dining and sitting during the fine weather. The remainder then being laid to lawn with shrub and herbaceous beds and borders that provide year round interest and colour. Outside lighting.Outside water tap. Outside meter boxes. Garden shed. Front pedestrian access to side of property, with outside power points, via timber garden gate.
Tenure
The property is FREEHOLD
Services
All mains services are connected. The property is on a water meter. Council Tax Band D
Mortgage Assistance
We are pleased to recommend Meredith Morgan Taylor, who would be pleased to help no matter which estate agent you finally buy through. For a free initial chat please contact us on 01395 222350 to arrange an appointment
Your home may be repossessed if you do not keep up repayments on your mortgage
Meredith Morgan Taylor Ltd is an appointed representative of The Openwork Partnership, a trading style of Openwork Ltd which is authorised and regulated by the Financial Conduct Authority (FCA).
Agents Note
These are draft particulars and are awaiting vendors verification
Directions
From our prominent Town Centre office, head down Rolle Street. Turn left at the first roundabout, then right at the next onto Marine Way, passing Exmouth Train Station. Continue onto Exeter Road, turn right onto Hulham Road (Signposted Ottery St Mary). Proceed along this road for approximately 1 mile. Before leaving Exmouth, at the roundabout, turn right into Dinan Way. Take the 5th turning on the right into Valley Way where the property will be found on the right hand side, just past Silverdale, clearly identified by our For Sale sign.
what3words /// prep.oldest.ever
Notice
Please note we have not tested any apparatus, fixtures, fittings, or services. Interested parties must undertake their own investigation into the working order of these items. All measurements are approximate and photographs provided for guidance only.
Utilities
Electric: Mains Supply
Gas: Mains Supply
Water: Mains Supply
Sewerage: Mains Supply
Broadband: Unknown
Telephone: Unknown
Other Items
Heating: Not Specified
Garden/Outside Space: Yes
Parking: Yes
Garage: Yes

Agent Statistics (Based on 741 Reviews) :