The UK's Largest Customer Review Website for the Property Industry
The UK's Largest Customer Review Website for the Property Industry
Back to Property Listings
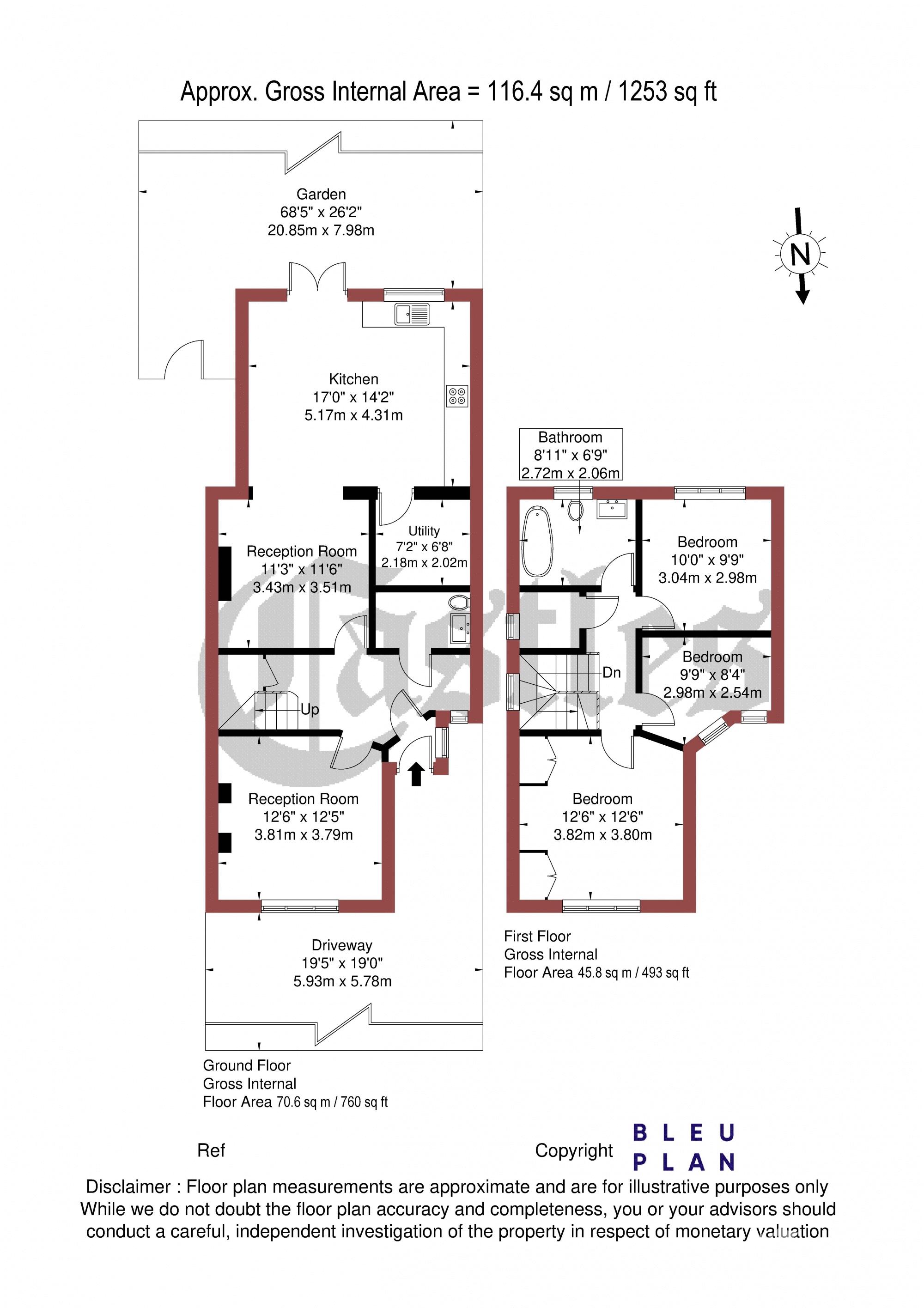
Upsdell Avenue, Palmers Green, N13
Rare to the market is this character filled three-bedroom, period, semi-detached, family home. Positioned on a much-favoured residential road off Green Lanes offering easy access to both Myddleton Road shops, Bowes Park British rail station and Wood Green underground station. The property has been totally refurbished throughout by the previous owners and offers bright and spacious rooms throughout with an enviable living accommodation incorporating private front reception, newly extended open plan rear reception and kitchen/diner which leads onto South facing rear garden. Further comprising utility room, downstairs W.C, new family bathroom and storage room/walk-in closet.

This property is marketed by

Castles Estate Agents (London) - Palmers Green, London, N13
4.9/5 Rating
(939) reviews
Agent Statistics (Based on 939 Reviews) :