The UK's Largest Customer Review Website for the Property Industry
The UK's Largest Customer Review Website for the Property Industry
Back to Property Listings
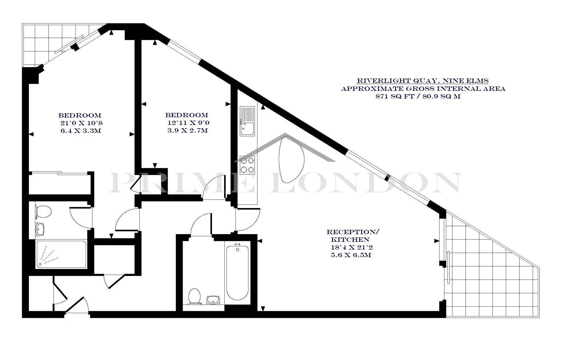
Two Riverlight Quay, Nine Elms, London
This fully furnished two bedroom two bathroom prow style apartment, which faces onto the River Thames with views from the balcony up towards the city and down towards Battersea Power Station, is available for lease though Prime London.
The 871 sq ft / 80.9 sq m property comprises a light-filled reception with open fully fitted kitchen, two balconies, family bathroom and en suite to master, two equally well sized double bedrooms. Everything is finished to a high specification level throughout, and the property further benefits from having comfort cooling and under floor heating.
An exclusive residents Clubhouse offers a unique third space between home and work which to socialise, exercise and be entertained, from a private screening room to virtual golf facilities; a residents club lounge and library and a 15m swimming pool, state-of-the-art gymnasium and spa.

This property is marketed by

Prime London Residential - Prime London, London, SE1
4.9/5 Rating
(314) reviews
Agent Statistics (Based on 314 Reviews) :