The UK's Largest Customer Review Website for the Property Industry
The UK's Largest Customer Review Website for the Property Industry
Back to Property Listings
Twill Close, off the Long Shoot, Nuneaton
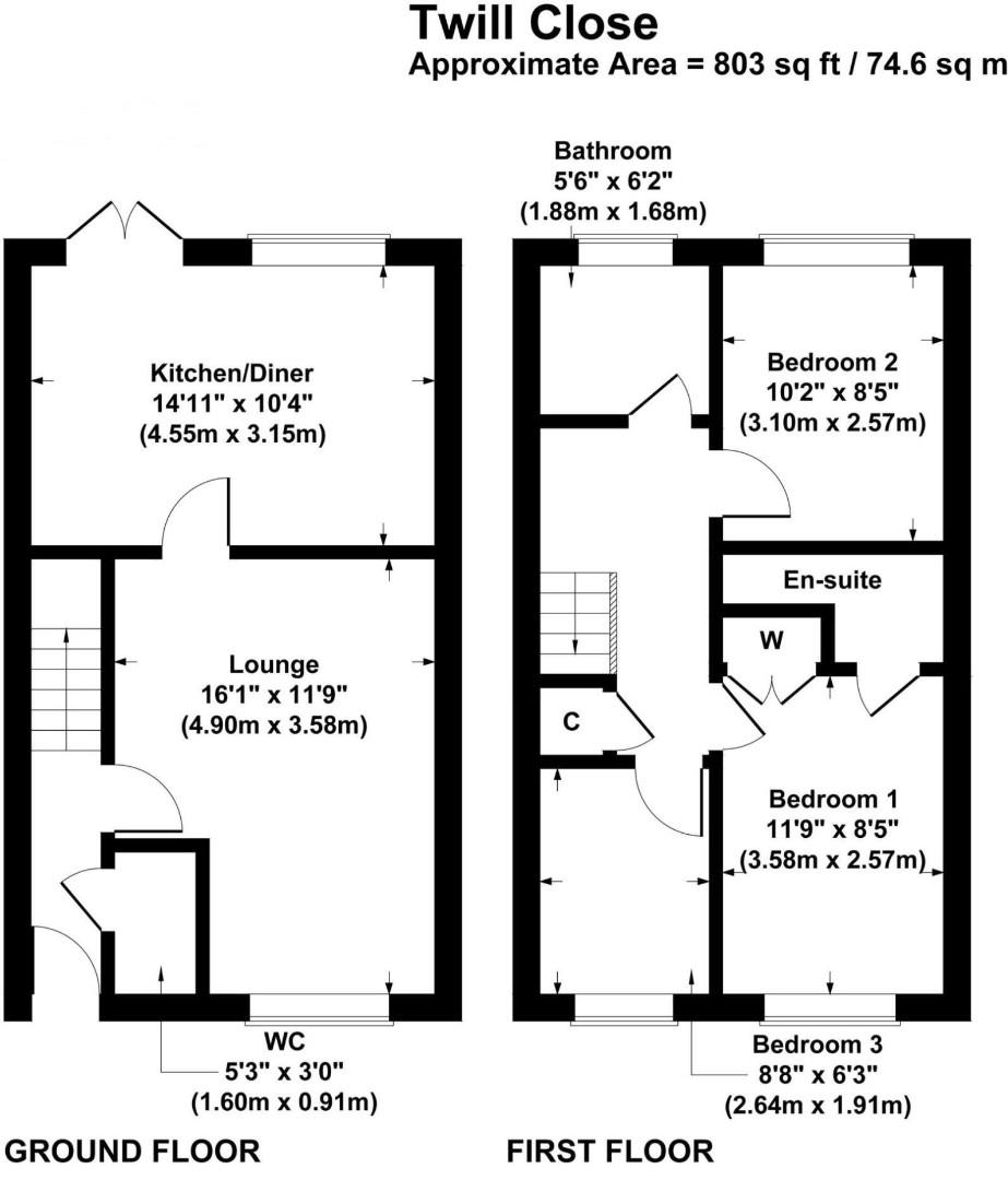
**LOVELY CONDITION THROUGHOUT - AVAILIABLE MID TO LATE OCTOBER 2025 - THREE BEDROOMS - TWO BATHROOMS + WC - DRIVEWAY PARKING** Located just off the Long Shoot is this modern style semi detached home, with beautiful field views to the rear! CHECK OUT THE FLOORPLAN to appreciate the accommodation on offer of this home located in a very sought after location for road links, amenities and schools.
Relevant Letting Fees And Tenant Information - As well as paying the rent, you may also be required to make the following permitted payments.
Before the tenancy starts (payable to Up Estates Ltd. 'the Agent')
Holding Deposit: 1 weeks rent
Deposit: 5 weeks rent
During the tenancy (payable to the Agent)
Payment of £50 inc. VAT if you want to change the tenancy agreement
Payment of interest for the late payment of rent at a rate of 3% above the BoE Base Rate
Payment of £50 inc. VAT for the reasonably incurred costs for the loss of keys/security devices
Payment of any unpaid rent or other reasonable costs associated with your early termination of the tenancy
We endeavour to make our particulars accurate and reliable, however, they do not constitute or form part of an offer or any contract and none is to be relied upon as statements of representation or fact. Any services, systems and appliances listed in this specification have not been tested by us and no guarantee as to their operating ability or efficiency is given. Please be advised that some of the photographs and particulars may have been used in previous listings. If you require clarification or further information on any points, please contact us, especially if you are traveling some distance to view. All properties are available for a minimum of six months, rent is to be paid in advance for each period agreed. It is the tenant's responsibility to insure any personal possessions.

Agent Statistics (Based on 666 Reviews) :