The UK's Largest Customer Review Website for the Property Industry
The UK's Largest Customer Review Website for the Property Industry
Back to Property Listings
Tweed Crescent, Renfrew, PA4
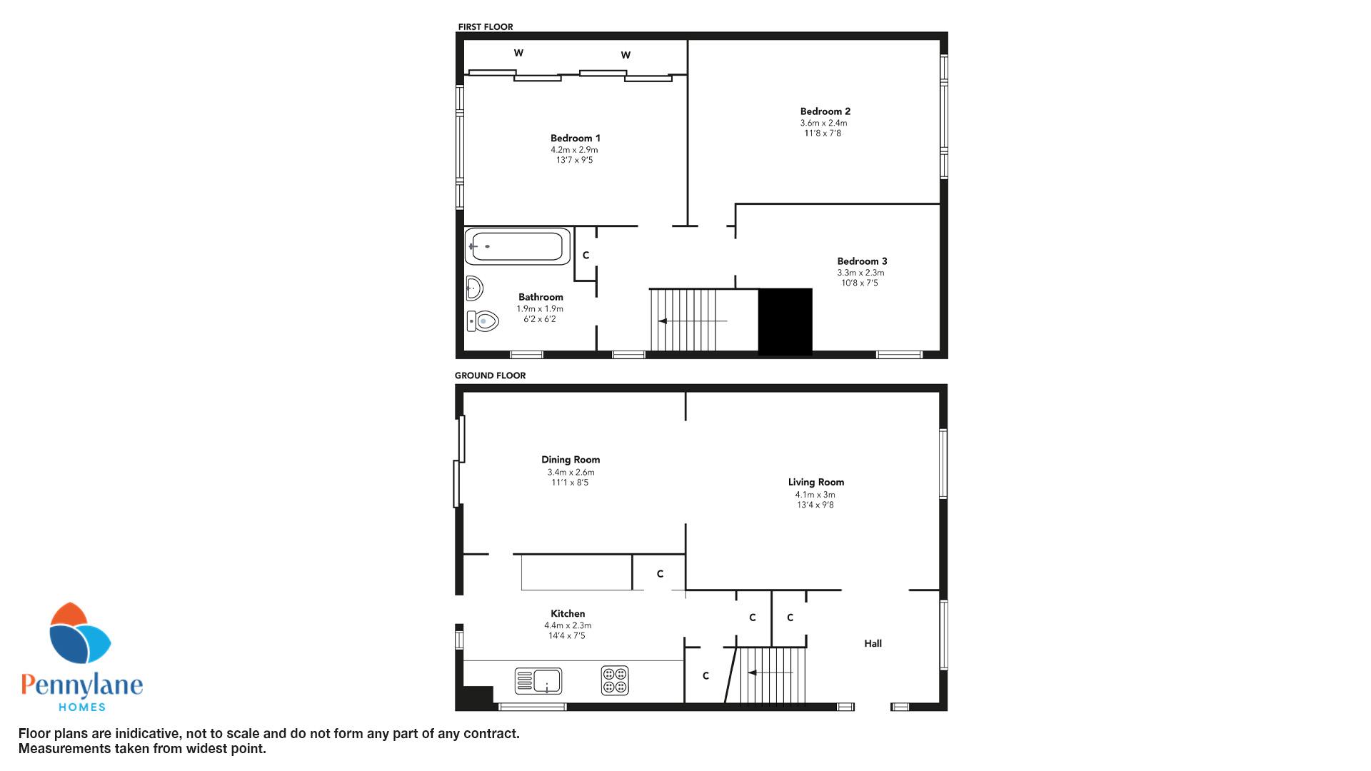
The property is accessed via a spacious and welcoming entrance hallway with storage cupboard and stairway to upper level. The immaculately presented lounge, overlooking the well maintained front garden, is spacious and bright with large window and arch way to the separate dining room with patio doors to the rear garden, creating a perfect space for entertaining with easy access to the rear garden.
The fully fitted kitchen, accessed via the dining room, comprises a combination of wall and floor mounted modern units with wall contrasting worktop with integrated appliances including oven, four burner gas hob, chimney style hood and fridge freezer. An external door within the kitchen allows access to the rear garden.
On the upper level there are two spacious double bedrooms and a smaller single offering fantastic family accommodation. Within the master bedroom, a large bank of mirror fronted fitted wardrobes provide essential storage.
The property benefits from gas central heating and double glazing throughout.
The property occupies a large corner plot and further benefits from both front and rear private garden grounds as well as single detached garage with monoblock driveway parking.
Tweed Crescent is a popular and well established residential street within the popular Deanpark area of Renfrew. All local amenities are available within a short distance and local schooling is readily available with Arkleston and Newmains Primary Schools and Trinity and Renfrew High Schools all within walking distance.
Notice
Please note we have not tested any apparatus, fixtures, fittings, or services. Interested parties must undertake their own investigation into the working order of these items. All measurements are approximate and photographs provided for guidance only.
Council Tax
Renfrewshire Council, Band E
Utilities
Electric: Mains Supply
Gas: Mains Supply
Water: Mains Supply
Sewerage: Mains Supply
Broadband: Unknown
Telephone: Unknown
Other Items
Heating: Gas Central Heating
Garden/Outside Space: Yes
Parking: Yes
Garage: Yes

Agent Statistics (Based on 197 Reviews) :