The UK's Largest Customer Review Website for the Property Industry
The UK's Largest Customer Review Website for the Property Industry
Back to Property Listings
Town Lane, Benington
Summary:
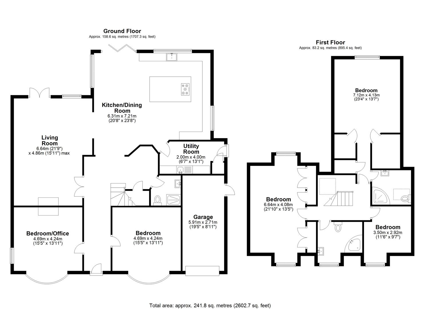
Simply Homes are delighted to bring to the market this charming detached family home in the popular village of Benington. The spacious and flexible accommodation comprises three bedrooms and two bathrooms on the first floor with the ability to comfortably configure two further rooms on the ground floor as bedrooms four and five, neatly serviced by a ground floor family shower room that conveniently doubles up as the guest cloakroom. A stunning kitchen/dining room links seamlessly out into the pretty rear garden which features a timber summer house with a lovely covered veranda. This attractive property is presented in immaculate decorative order inside and out, with creatively landscaped and painstakingly maintained gardens front and back and a useful integral garage.
Accommodation:
This is a very pretty house and that impression starts right at the front door, which is set slightly back under a protective roofed porch and features decorative stained glass diamond shapes set into leaded light opaque glass panels with matching windows either side. Inside is a generous L shaped entrance hall with an elegant tiled floor that sweeps around past the bottom of the bull nose staircase. Abundantly lit by a roof light at the top of the stairwell, the staircase is an absolutely superb exhibition of woodcarving, with intricate shapes and spirals turned into the spindles and newel posts, curving up to the galleried landing above. From the entrance hall doors lead into the front facing bedroom and bedroom/office as well as the ground floor shower room. Double doors open into the lovely living room and there is open access through to the generous rear facing kitchen/dining room.
Both of the front facing rooms are large rooms, but also enjoy nicely balanced proportions, being very close to fully square in shape, and both benefit from the abundant natural daylight flooding in unhindered through the lovely curved bay windows to the front aspect. These qualities give them a great usability and makes them equally capable of fulfilling many other roles as well as being spacious bedrooms if needed. Clearly they will each comfortably accept a king size bed along with wardrobes and other occasional furniture, but would serve just as well as a snug, TV room, office, study, playroom or a teenage hang out space. The layout of this house gives it a particular ability to serve a family who may have a member with restricted mobility, with the double doorways and open access between rooms combining extremely well with the ground floor bedrooms and shower room to really deliver under these circumstances. Indeed, these two rooms could combine to provide a separate lounge and bedroom for a relative who needs some support but also a degree of independence in their day to day lives.
Occupying the rear corner of the house is the capacious living room, which flows nicely together through the double doorway from the entrance hall and on via an open archway into the kitchen/dining room. This is a large room by any standards at nearly twenty-two feet long, yet it retains a light and airy feel thanks to the glazed internal doors, full height windows flanking the glazed French doors opening onto the patio, plus the additional separate window at the rear. A pretty stone fireplace and hearth grace one end of the room, with a flame effect log burner set within it, and an elegant dado rail lines the perimeter walls.
Buyers Information
In order to comply with the UK's Anti Money Laundering (AML) regulations, Simply Homes are required to confirm the identity of all prospective buyers once an offer being accepted. We use a third party, Identity Verification System to do so and there is a nominal charge of £48 (per person) including VAT for this service.

Agent Statistics (Based on 22 Reviews) :