The UK's Largest Customer Review Website for the Property Industry
The UK's Largest Customer Review Website for the Property Industry
Back to Property Listings
The Plaza, 1 Every Street, New Inslington
Goodwin Fish is delighted to offer for sale a penthouse apartment at the Plaza.
Situated in New Islington, voted one of the best places to live by The Sunday Times, the development is within walking distance to New Islington Marina and Cutting Room Square, artisan bakeries such as Pollen and Companio, craft beer at Cask, and Michelin-starred Mana. New Islington School, New Islington Medical Practice, a PureGym and two supermarkets are in walking distance, with excellent transport links including New Islington Metrolink and Piccadilly Train station.
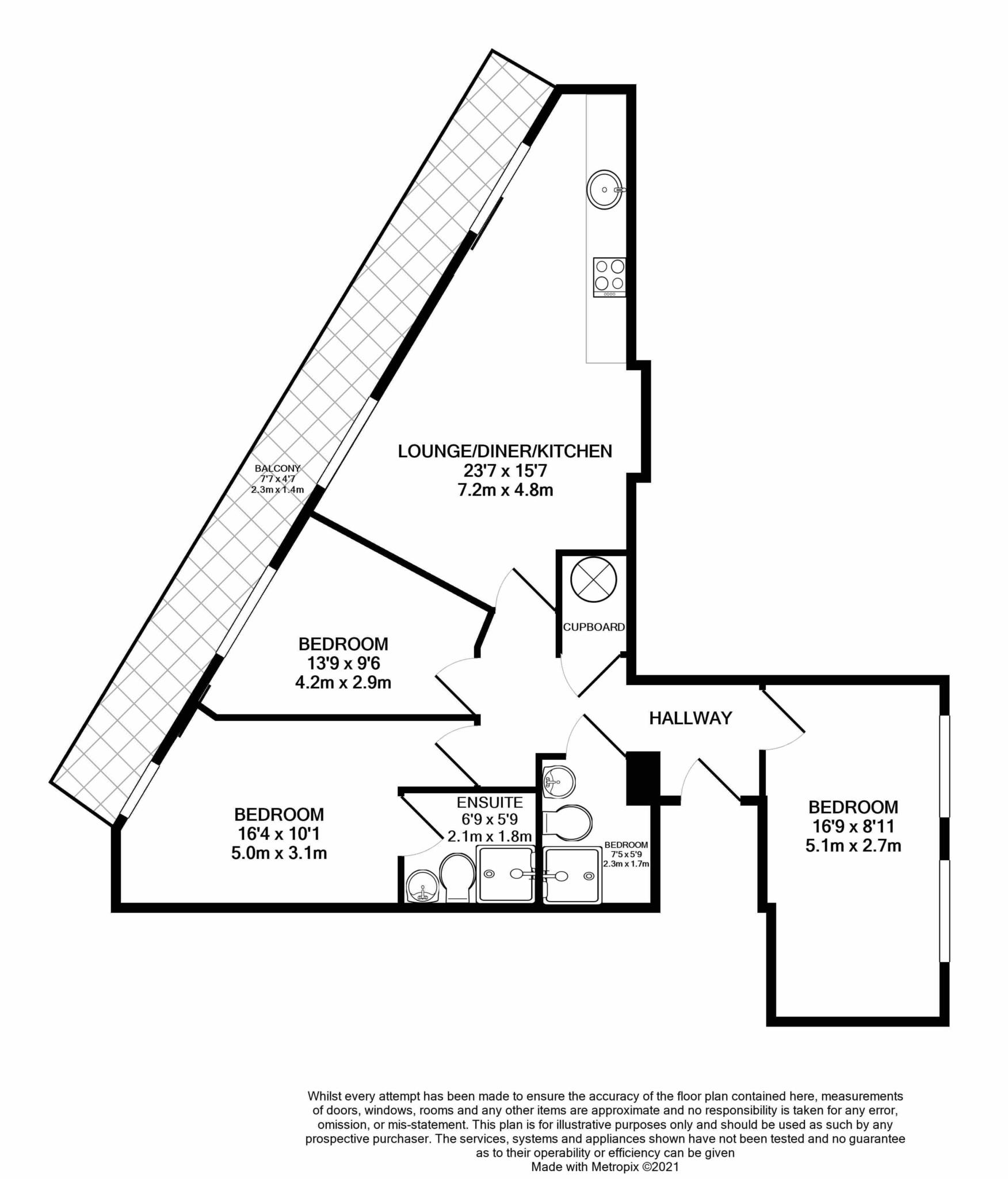
Sharing the top floor with one other penthouse apartment, this property benefits from fantastic skyline views from a full length balcony.
Property briefly comprises: entrance/hallway with access to storage cupboard; open plan lounge/diner; kitchen with integrated appliances; master bedroom with access to en-suite facilities; two additional double bedrooms; main bathroom with shower cubicle.
Available with vacant possession and the use of two allocated car parking spaces
The development benefits from an EWS1 form with B1 rating which may be required by lenders issuing a mortgage.
Annual service charge: ?3,659.92
Annual ground rent: ?470.15
Length of lease: 235 years from 2017
Est. rental income: ?2,100 pcm
Management company: Haymarket Block Management
Notice
Please note we have not tested any apparatus, fixtures, fittings, or services. Interested parties must undertake their own investigation into the working order of these items. All measurements are approximate and photographs provided for guidance only.
Council Tax
Manchester City Council, Band C
Utilities
Electric: Mains Supply
Gas: None
Water: Mains Supply
Sewerage: Mains Supply
Broadband: FTTC
Telephone: Landline
Other Items
Heating: Electric Heaters
Garden/Outside Space: No
Parking: Yes
Garage: No

Agent Statistics (Based on 23 Reviews) :