The UK's Largest Customer Review Website for the Property Industry
The UK's Largest Customer Review Website for the Property Industry
Back to Property Listings
The Marles, Exmouth
An immaculately presented, extended four bedroom link detached family home, offering spacious accommodation arranged over three floors and enjoying a wooded backdrop. The property further benefits from a delightful, mature rear garden with balcony, and an early viewing is strongly recommended to avoid disappointment.
The accommodation briefly comprises a spacious lounge opening into the dining room, a kitchen fitted with integrated oven and hob, four bedrooms, a family bathroom/WC, a separate shower room and a cloakroom/WC.
Externally, the property offers gardens to both the front and rear, a block-paved driveway and a single garage.
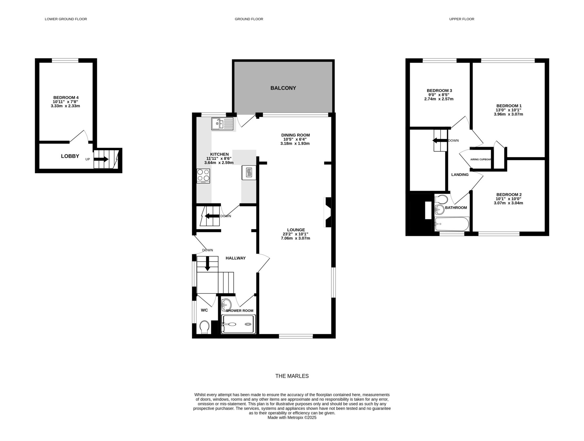
Accommodation
Ground Floor
Composite entrance door to:
Entrance Lobby
Double glazed window to the side. Stairs to upper floor. Stairs down to main ground hallway.
Cloakroom/WC
Double glazed window to the side. Close-coupled WC. Radiator.
Ground Floor Hallway
Built-in cupboard under stairs. Radiator. Stairs to lower ground floor. Doors to:
Lounge/Dining Room
Lounge Area - 23'2" (7.06m) x 10'1" (3.07m)
Double glazed windows to the front and side. 2 Radiators. Gas coal effect fire in stone surround. Open to:
Dining Area - 10'5" (3.18m) x 6'4" (1.93m)
Large double glazed window over looking the rear garden. Radiator. Open to:
Kitchen - 11'11" (3.63m) x 8'6" (2.59m)
Double glazed window to the rear. One and a half bowl sink unit. Roll edge work top surface. Base cupboard and drawer units. Eye-level units. Integrated double oven. Inset 4 ring electric hob. Concealed cooker hood. Plumbing for dishwasher. Space for fridge/freezer. Double glazed door to the rear. Door to hallway.
Lower Ground Floor
Lobby with door to:
Bedroom 4/Study - 10'11" (3.33m) x 7'8" (2.34m)
Double glazed window to the rear. Radiator. Wall shelves.
Upper Floor
Landing
Hatch to roof space. Built-in airing cupboard with radiator. Doors to:
Bedroom 1 - 13'0" (3.96m) x 10'1" (3.07m)
Double glazed window to the rear. Radiator. Comprehensive range of built-in wardrobes and bedroom furniture. Built-in linen cupboard.
Bedroom 2 - 10'1" (3.07m) x 10'0" (3.05m)
Double glazed window to the front. Radiator.
Bedroom 3 - 9'0" (2.74m) x 8'5" (2.57m)
Double glazed window to the rear. Radiator.
Bathroom/WC
Double glazed window to the front. Suite comprising panelled bath, wash hand basin, close-coupled WC, pedestal wash hand basin. Tiled walls. Recessed shelf with lighting.
Externally
Front Garden
Area of lawn with mature hedging and flower and shrub borders. Water tap. Path leading to side gated access into the rear garden. Block paved driveway leading to:
Garage - 16'1" (4.9m) x 8'6" (2.59m)
Up and over door. Power and light. Plumbing for washing machine. Vent for tumble dryer. Double glazed window to the rear. Glow Worm gas fired boiler.
Rear Garden
The rear garden is a particular feature of the property and comprises a spacious decked balcony accessed from the kitchen. Gated steps lead down from the balcony to the main rear garden which is stocked with a most attractive range of mature trees and shrubs including a selection of palm trees. Mature lawn and two decked sitting areas. Timber storage shed. Located to the rear of the garden is access to a lower area of wild garden. Useful under croft storage area. Further storage area under the balcony.
Tenure
The property is FREEHOLD
Services
All mains services are connected. Council Tax Band D
Mortgage Assistance
We are pleased to recommend Meredith Morgan Taylor, who would be pleased to help no matter which estate agent you finally buy through. For a free initial chat please contact us on 01395 222350 to arrange an appointment
Your home may be repossessed if you do not keep up repayments on your mortgage
Meredith Morgan Taylor Ltd is an appointed representative of The Openwork Partnership, a trading style of Openwork Ltd which is authorised and regulated by the Financial Conduct Authority (FCA).
Agents Note
Please note these are draft particulars and are awaiting vendors verification.
Directions
From our prominent Town Centre office, proceed down Rolle Street turning left at the first roundabout and right at the second, past the Train Station, into Marine Way. Continue through 2 sets of traffice lights and take a right hand turning into Hulham Road signposted Ottery St Mary. Continue up Hulham Road until you reach a mini roundabout and turn right into Pound Lane. Take the second left into The Marles, where the property can be found on the left hand side.
what3words /// stud.famous.bought
Notice
Please note we have not tested any apparatus, fixtures, fittings, or services. Interested parties must undertake their own investigation into the working order of these items. All measurements are approximate and photographs provided for guidance only.
Utilities
Electric: Mains Supply
Gas: Mains Supply
Water: Mains Supply
Sewerage: Unknown
Broadband: Unknown
Telephone: Unknown
Other Items
Heating: Not Specified
Garden/Outside Space: No
Parking: No
Garage: No

Agent Statistics (Based on 740 Reviews) :