The UK's Largest Customer Review Website for the Property Industry
The UK's Largest Customer Review Website for the Property Industry
Back to Property Listings
The Limes, Over
An excellent opportunity to acquire a building plot benefitting from detailed planning consent to erect a detached single storey dwelling.
Planning Consent - South Cambs Planning reference 24/03110/FUL was granted on 10th October 2024 for demolition of the existing outbuilding and the Sub-division of existing plot to form one separated new dwelling with drive and crossover and to create one shared drive and crossover with gated access to the remaining land.
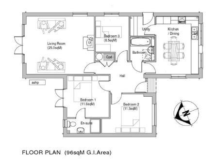
The proposed plans show a detached single-storey residence with 3 bedrooms, 2 bathrooms, kitchen/dining room and living room extending to approx. 96sq.m (1033 sq.ft) GIA 2no. parking spaces and secure bike store.
Location - The site occupies a prominent non-estate position in the desirable village of Over, located about 11 miles north west of Cambridge and ideally located for major road links. The village has a variety of local amenities including including a primary school, shop, public house, church and cricket club. Further facilities are available in the nearby villages of Willingham and Swavesey.
Material Information - Tenure- Freehold
Local Authority- South Cambs District Council
Council tax band- N/A

Agent Statistics (Based on 1543 Reviews) :