The UK's Largest Customer Review Website for the Property Industry
The UK's Largest Customer Review Website for the Property Industry
Back to Property Listings
The Green, West Drayton
A stunning four bedroom period home in a prime location
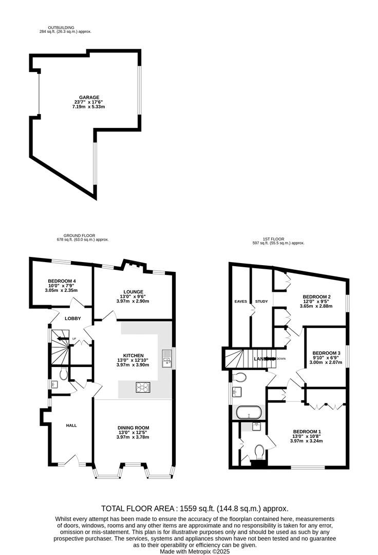
Description - This charming Grade II listed property enjoys an enviable position overlooking The Green in West Drayton. Behind its historic façade, the home offers beautifully designed contemporary interiors that sit seamlessly alongside an array of preserved period features. The accommodation is thoughtfully arranged, with generously proportioned rooms, modern finishes, and characterful details throughout. Its outlook across The Green provides a tranquil, picturesque setting while remaining conveniently close to local amenities and transport links.
Accommodation - Offering well-appointed accommodation throughout, the property briefly comprises an inviting entrance hall with tiled flooring, built-in storage and a ground-floor WC. The impressive open-plan kitchen/living area features an extensive range of storage units and drawers, solid wood work surfaces and a selection of integrated appliances including an AEG oven, dishwasher and freezer. A separate lounge provides an additional reception space, while a versatile ground-floor bedroom 4/study and an inner lobby with direct access to the rear garden.
To the first floor, the landing includes built-in storage and leads to the bedrooms. The spacious primary bedroom benefits from fitted wardrobes, eaves storage and a private en-suite WC. Bedroom Two is another generous double, also featuring fitted wardrobes, a study/walk-in wardrobe area and eaves storage. Bedroom Three is a well-proportioned single room with access to the loft. The family bathroom is fitted with an enclosed bath with shower over, vanity wash basin and WC, complemented by tiled flooring and partly tiled walls.
Outside - There is a private enclosed courtyard garden providing an ideal entertaining space.
A large L-shape garage that offers the possibility of conversion (subject to planning permission) has vehicular access from Church Road.
The Green operates residents permit parking, with up to 5 resident permits available.
Situation - Positioned within the sought after location of The Green in West Drayton offering all the benefits of being situated close to West Drayton High Street and West Drayton Elizabeth Line station, with direct train links to the West End, the City and Canary Wharf. whilst enjoying this idyllic setting. There is easy access to Heathrow and Stockley Business Park, and excellent road communications with the M4, M40 and M25 in close proximity.
Southlands Arts Centre is a short walk away and the new Platinum Jubilee leisure centre which is due to open shortly is also nearby.
Terms And Notification Of Sale - Tenure: Freehold
Local Authority: London Borough of Hillingdon
Council Tax: E
EPC Rating: C

This property is marketed by

Cameron Estate Agents - Uxbridge, Uxbridge, UB8
4.8/5 Rating
(1176) reviews
Agent Statistics (Based on 1176 Reviews) :