The UK's Largest Customer Review Website for the Property Industry
The UK's Largest Customer Review Website for the Property Industry
Back to Property Listings
The Green, West Drayton
A spacious three-bedroom detached home offering well-proportioned interiors and an enviable location.
Description - Ideally situated with views over The Green, this attractive detached home is available with no onward chain.
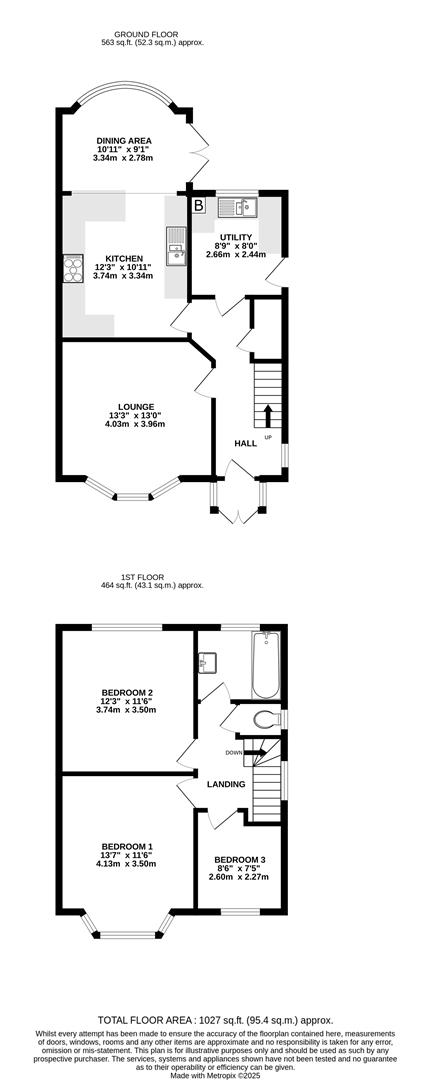
Accommodation - The accommodation briefly comprises an entrance porch opening into the entrance hall, which features stairs to the first floor and an understairs storage cupboard. The front reception room enjoys a bay window overlooking The Green, fitted with double-glazed sash-style windows. The extended kitchen/dining room overlooks and opens onto the rear garden and is fitted with a very good range of modern units and drawers with ample wooden work surfaces. There is a range cooker with extractor hood above, a rear-aspect double-glazed bay window, and doors opening onto the garden. A separate utility room provides space for appliances, fitted storage cupboards, additional work surfaces, a wall-mounted boiler, and a double-glazed door to the side.
To the first floor, there are three bedrooms. The primary bedroom features a bay window overlooking The Green with sash-style double-glazed windows. Bedroom two includes a range of fitted wardrobes and a double-glazed window overlooking the rear garden. Bedroom three is a single room with a sash-style double-glazed window overlooking The Green. The bathroom is fully tiled and fitted with an enclosed bath with shower over and a wash basin, and there is a rear-aspect double-glazed window. A separate WC completes the accommodation.
Outside - There is an attractive rear garden with mature shrubs and trees.
To the front there is an area of garden and hard standing providing off street parking.
The Green operates residents permit parking, with up to 5 resident permits available.
Situation - Positioned within the sought after location of The Green in West Drayton offering all the benefits of being situated close to West Drayton High Street and West Drayton mainline station, whilst enjoying this idyllic setting. There is access to the nearby Heathrow International Airport and Stockley Business Park and excellent road communications with the M4, M40 and M25 in close proximity.
Southlands Arts Centre is a short walk away and the new Platinum Jubilee leisure centre which is due to open shortly is also nearby.
Terms And Notification Of Sale - Tenure: Freehold
Local Authority: London Borough of Hillingdon
Council Tax: E
EPC Rating: D

This property is marketed by

Cameron Estate Agents - Uxbridge, Uxbridge, UB8
4.8/5 Rating
(1176) reviews
Agent Statistics (Based on 1176 Reviews) :