The UK's Largest Customer Review Website for the Property Industry
The UK's Largest Customer Review Website for the Property Industry
Back to Property Listings
The Crescent, Exmouth
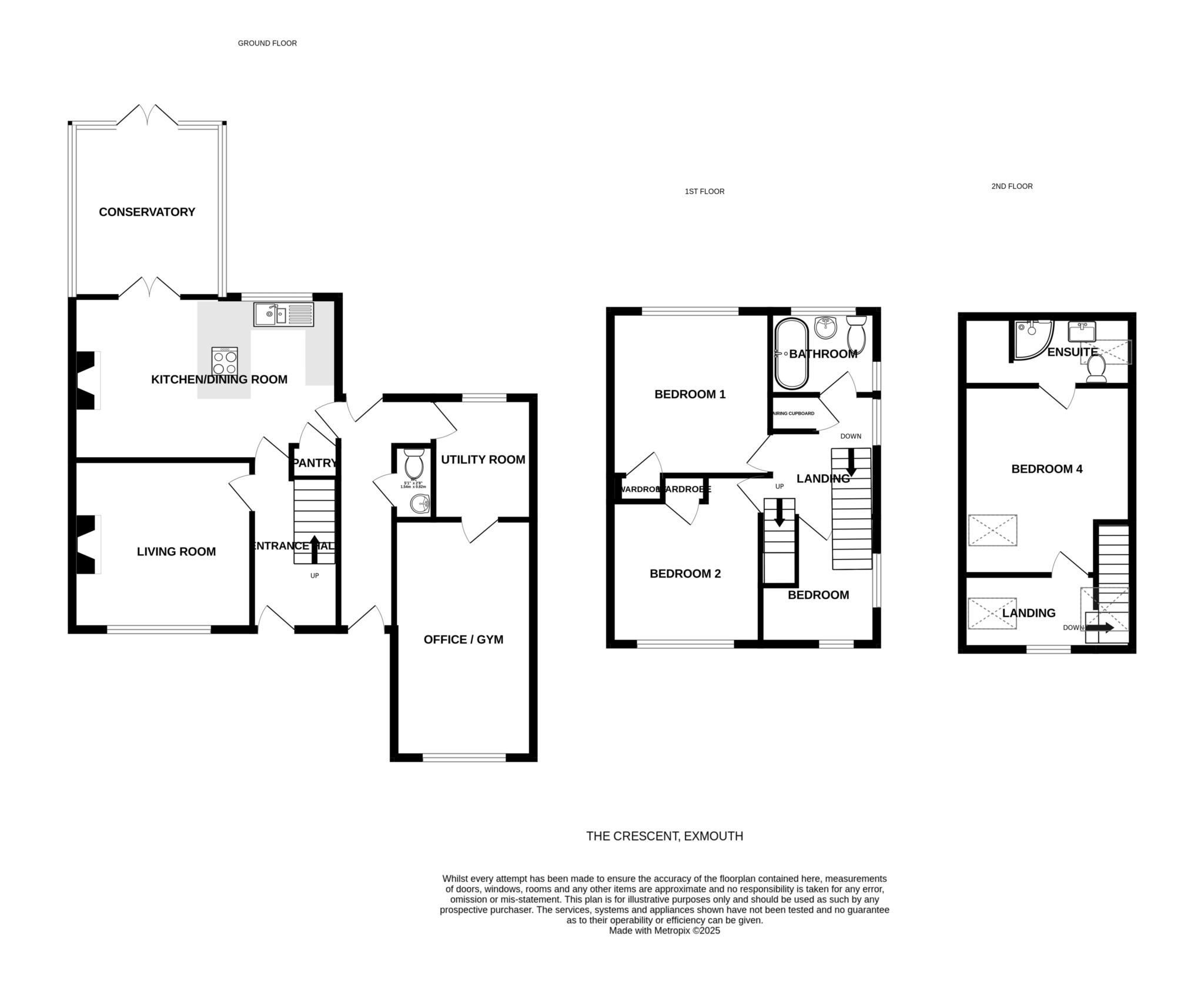
This impressive 4 bedroom detached family home enjoys an attractive outlook over a green area and boasts a superb, larger than average rear garden which is perfect for both relaxation and entertaining. Offering generous and versatile living space, the property truly deserves early internal inspection to appreciate its quality and appeal.
Beautifully presented throughout, the electrically heated and double glazed accommodation includes an inviting entrance hall, a spacious living room, and a stylish open plan kitchen/dining room that flows seamlessly into a feature conservatory. Additional ground floor benefits include a downstairs WC, a useful utility area, and a dedicated home gym.
The first floor offers 3 well proportioned bedrooms and a contemporary family bathroom/WC, while the second floor features a private fourth bedroom complete with its own en-suite shower room.
Externally, the home continues to impress with its extensive rear garden, an attractive front garden, and off road parking for 2 vehicles.
Accommodation
Ground Floor
Step up to uPVC double glazed front entrance door, beneath pitched and tiled storm canopy, leading to:
Entrance Hall
Staircase rising to first floor with useful under stairs storage cupboard. Cupboard housing the electric trip switch fuse box and meter. Radiator. Smoke alarm. Wooden flooring. Doors leading to kitchen / dining room and:
Living Room - 12'3" (3.73m) x 11'7" (3.53m)
uPVC double glazed window to front. Focal point of fireplace feature having a log burner on a Slate hearth with a wooden mantle and surround. Picture rail.
Kitchen / Dining Room - 18'8" (5.69m) x 11'1" (3.38m)
uPVC double glazed window to rear. Good range of modern fitted cupboard and drawer storage units with Granite work surfaces, including breakfast bar and matching upstands. Inset one and a half bowl sink unit with mixer tap. 4 zone venting induction hob, eye level hide and slide electric oven / microwave oven opposite. Integrated fridge and freezer. Useful pantry. Fireplace feature. Radiator. Picture rail. uPVC double glazed door leading to side passageway and uPVC double glazed French doors leading to:
Conservatory - 13'3" (4.04m) x 11'6" (3.51m)
uPVC double glazed windows to 3 sides on rendered dwarf brick walls. Radiator.
Side Passageway
uPVC double glazed external doors leading to front and rear. Control panel for solar panels. Cold water tap. Door leading to utility room and:
Cloakroom
White suite of low level WC and wall mounted wash hand basin.
Utilty - 7'10" (2.39m) x 6'5" (1.96m)
uPVC double glazed window to rear. Space and plumbing for washing machine. Further space for appliances. Door leading to:
Office / Gym - 15'6" (4.72m) x 8'0" (2.44m)
UPVC double glazed window to front. Radiator.
First Floor
Landing
UPVC double glazed window to side. Airing cupboard housing the hot water tank with slatted shelving. Radiator. Smoke alarm. Staircase rising to 2nd floor. Doors leading to:
Bedroom 1 - 11'1" (3.38m) x 10'11" (3.33m)
uPVC double glazed window to rear. Built in wardrobe. Radiator.
Bedroom 2 - 11'6" (3.51m) x 10'4" (3.15m)
uPVC double glazed window to front gaining views over parkland. Built - in wardrobe. Radiator.
Bedroom 3
Dual aspect having uPVC double glazed window to side and uPVC double glazed window to front gaining views over Parkland. Radiator. Wooden flooring.
Bathroom
Obscure uPVC double glazed windows to rear and side. White suite comprising Jacuzzi bath with thermostatically controlled shower unit over including rainfall Waterhead, low level WC and vanity wash hand basin. Fully tiled walls and floor. Heated towel rail. Extractor fan.
Second Floor
Landing
Triple aspect having uPVC double glazed window to front gaining Parkland views and double glazed skylights to either side, 1 gaining distant Countryside views. Door leading to:
Bedroom 4 - 13'0" (3.96m) Max x 12'11" (3.94m)
Double glazed Skylight to side gaining distant Countryside views. Sloped ceilings. Electric heater. Door leading to:
Shower Room
Double glazed Skylight window to side. White suite of shower cubicle with thermostatically controlled shower unit and tiling to ceiling height, low level WC and vanity wash hand basin. Useful storage cupboards. Extractor fan.
Externally
The property enjoys very good sized gardens. The enclosed Front Garden is laid mainly to lawn with shrub and herbaceous beds and borders. Timber panelled fenced boundaries. A double width driveway provides ample off road parking.
Rear Garden
A feature of this Home are the larger than average and enclosed Rear Garden. Immediately adjacent the property are 2 Patio areas, both being ideal for outdoor dining and sitting during the fine weather, there is also a further patio area to the rear of the garden. The remainder of the grounds are then laid to lawn with various shrub and herbaceous beds, borders and Specimen tree all providing year round interest and colour. Timber summerhouse. Timber garden shed. Timber panelled fenced boundaries. Outside power points. Outside lighting. There is a further shingle area to the side of the property with a timber garden gate giving front pedestrian access.
Tenure
The property is FREEHOLD
Services
Mains water, drainage and electric are connected. Council Tax Band C. Owned Solar panels providing an income.
Mortgage Assistance
We are pleased to recommend Meredith Morgan Taylor, who would be pleased to help no matter which estate agent you finally buy through. For a free initial chat please contact us on 01395 222350 to arrange an appointment
Your home may be repossessed if you do not keep up repayments on your mortgage
Meredith Morgan Taylor Ltd is an appointed representative of The Openwork Partnership, a trading style of Openwork Ltd which is authorised and regulated by the Financial Conduct Authority (FCA).
Agents Note
Please note these are draft particulars and are awaiting vendors verification.
Directions
From our prominent Town Centre office, proceed up Rolle Street, turning left at the roundabout into Salterton Road. Proceed through 2 sets of traffic lights, turning right into Magnolia Avenue, just before the third set of traffic lights and opposite Tesco. Turn limmediately right into The Crescent where the property will be found on the right hand side, clearly identified by our For Sale sign.
what3words /// steer.saving.repair
Notice
Please note we have not tested any apparatus, fixtures, fittings, or services. Interested parties must undertake their own investigation into the working order of these items. All measurements are approximate and photographs provided for guidance only.
Utilities
Electric: Mains Supply
Gas: None
Water: Mains Supply
Sewerage: Mains Supply
Broadband: Unknown
Telephone: Unknown
Other Items
Heating: Gas Central Heating
Garden/Outside Space: Yes
Parking: Yes
Garage: No

Agent Statistics (Based on 735 Reviews) :