The UK's Largest Customer Review Website for the Property Industry
The UK's Largest Customer Review Website for the Property Industry
Back to Property Listings
The Chapel, The Galleries, Brentwood
GUIDE PRICE - ?330,000 to ?350,000. A truly exceptional duplex apartment in The Chapel` at The Galleries.
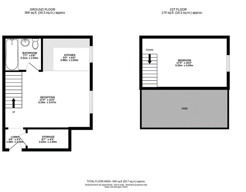
Situated within the iconic The Chapel`, part of the highly sought-after Galleries` development, this exceptional duplex apartment offers a rare opportunity to enjoy stylish and characterful open-plan living in a unique setting.
The interior boasts a bright and spacious vaulted reception area, flooded with natural light from striking two-storey feature windows, complete with elegant shutters. This stunning space perfectly blends historic charm with contemporary design.
The kitchen area is well-appointed with a range of wall and base units, generous worktop space, and integrated appliances, offering both functionality and style. A modern bathroom is also located on the lower level.
A set of stairs leads to a mezzanine-level double bedroom, complete with a glass-panelled balustrade that overlooks the living space below, enhancing the apartment`s open and airy feel. Additionally, there is a spacious storage cupboard, adding practicality to the unique layout.
Further benefits include allocated parking and access to a concierge service, making this an ideal home for professionals or those looking for a distinctive and low-maintenance lifestyle.
Notice
Please note we have not tested any apparatus, fixtures, fittings, or services. Interested parties must undertake their own investigation into the working order of these items. All measurements are approximate and photographs provided for guidance only.
Council Tax
Brentwood Borough Council, Band D
Ground Rent
?250.00 Yearly
Service Charge
?2,250.00 Yearly
Lease Length
150 Years
Utilities
Electric: Unknown
Gas: Unknown
Water: Unknown
Sewerage: Unknown
Broadband: Unknown
Telephone: Unknown
Other Items
Heating: Not Specified
Garden/Outside Space: No
Parking: No
Garage: No

Agent Statistics (Based on 0 Reviews) :