The UK's Largest Customer Review Website for the Property Industry
The UK's Largest Customer Review Website for the Property Industry
Back to Property Listings
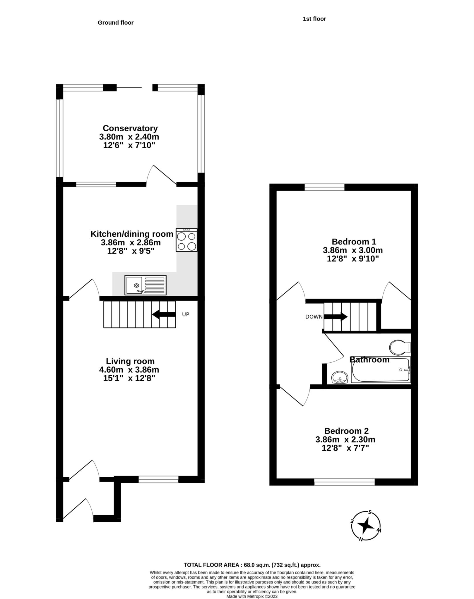
Sycamore Close, Watlington
A modern terraced property in a quiet residential area on the edge of Watlington. The ground floor accommodation includes hall, spacious living room, modern kitchen and a conservatory. The first floor includes two double bedrooms and a bathroom. There is a garden at the front, with path to the front door, and an enclosed garden to the rear which faces South/South East. The property has gas fired central heating and UPVC double glazing, EPC C. The property is unfurnished, with some white goods provided. The property also benefits from a garage.
Approach
Path up to front door. Front garden layed to lawn with shrubs.
Entrance
Door into hall with tiled floor, space for coats, boots etc
Sitting Room - 4.67m (15'4") x 3.86m (12'8")
Sitting room to the front, overlooking the garden, fitted carpet, radiator, stairs to first floor.
Kitchen - 3.86m (12'8") x 2.85m (9'4")
The kitchen is to the back and enjoys good natural light. There is a range of cupboards fitted with drawers and shelves. Worktop with sink and mixer tap, tiled floor and radiator. Appliances include electric cooker, undercounter fridge and washing machine. Space for dining table and chairs.
Conservatory - 3.05m (10'0") x 1.78m (5'10")
UPVC framed conservatory overlooking the garden, with external door to rear.
First floor
Stairs to landing
Front bedroom - 2.5m (8'2") x 3.86m (12'8")
Double bedroom overlooking the front with fitted carpet and radiator
Double bedroom - 2.85m (9'4") x 3.86m (12'8")
Double bedroom with aspect to the rear overlooking the garden and towards the local Parish Church. Fitted carpet and radiator, storage cupboard.
Bathroom
A modern fitted bathroom with white suite including bath with shower and screen over, basin and low level wc. tiling to walls and electric heater fan.
Garden
Fully enclosed garden to the rear with paving, gravelled area, borders with shrubs. Garage located nearby.
Availability
Available from 1st November 2025
Unfurnished with some white goods provided
Assured Shorthold Tenancy for a minimum of twelve months.
Sorry, not suitable for: smokers
Viewings
Viewings strictly by appointment: henley@griffithandpartners.co.uk / 01491 522800
Services
Services: Mains Gas / Electricity / Water / Mains drainage
Broadband: BT indicates 64-73 mbps download available (not checked or warranted)
Local Authority: South Oxfordshire District Council
Council Tax Band: C ?2,214.97 pa 2025 / 2026
EPC Rating: C73
Terms and Conditions
Management Status: The Landlord manages the property
Rent: payable per calendar month in advance. In addition the tenant shall be responsible for all Council Tax, Utility and Telephone / Broadband costs, including private drainage where applicable
Pets: Where a Landlord grants consent for a pet to be kept at the property, the Landlord may ask for a higher rent to be paid to reflect the additional wear and tear of a pet being kept at the property.
Security deposit payable: Five weeks rent where the rent is up to ?50,000 pa
Deposit amount: ?1,500.00 based on a rental amount of ?1,300.00 pcm
Holding deposit: A holding deposit of one week`s rent will be requested to secure the property following acceptance of an offer.
Holding deposit: ?300.00 based on a rental amount of ?1,300.00 pcm
Costs and Charges
The tenant may be asked to pay the following costs:
Alterations to the Agreement: Where tenant/s request a change to the terms of the tenancy agreement after the Agreement has been signed, a fee of up to ?50.00 including VAT may be charged for each alteration requested.
Early surrender: Where tenant/s request an early surrender of the tenancy or a change of joint tenant, consent may be granted subject to conditions, and the outgoing tenant will be required to pay agents fees and reletting costs.
Default fees: Loss of keys or security devices. The tenant will be asked to pay for replacement keys, locks or security devices where they are lost, damaged or broken by the tenant.
Rental payments: Where the tenant is in default of rent payments, a reasonable default charge may be made, based on the reasonable costs incurred in recovering the unpaid rent. Interest maybe charged at a maximum of 3.0% above Bank of England base rate.
Client Money Protection
Accreditation and Client Money Protection:
We are members of Safeagent
Accreditation Number A8457
https://safeagents.co.uk/
Deposit Protection:
We are members of the Tenancy Deposit Scheme Insured approved scheme for the protection of Tenant`s deposits. For more information: https://www.tenancydepositscheme.com/
Redress Scheme: We are members of The Property Ombudsman Redress Scheme.
For more information: https://www.tpos.co.uk/
what3words /// tricycle.dumpling.section
Notice
All photographs are provided for guidance only.
Redress scheme provided by: Property Ombudsman (N02334)
Client Money Protection provided by: Property Mark (C007439)
Utilities
Electric: Mains Supply
Gas: Mains Supply
Water: Mains Supply
Sewerage: Mains Supply
Broadband: None
Telephone: Landline
Other Items
Heating: Gas Central Heating
Garden/Outside Space: Yes
Parking: Yes
Garage: Yes

Agent Statistics (Based on 1 Reviews) :